Contacto
Cuéntenos sobre sus necesidades

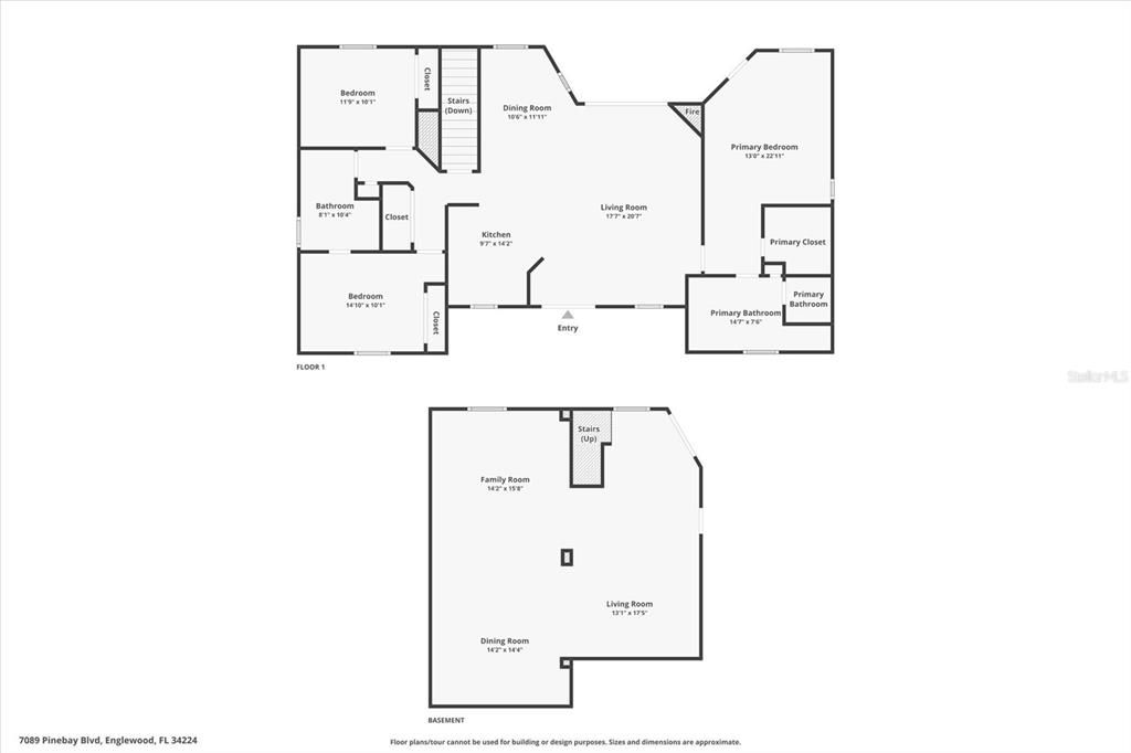
7089 PINEBAY BOULEVARD

Casa En Venta
$995,000

BTC: 14.76984938

ETH: 518.22916667

28 días
Frente al mar
3 camas
2 baños
1,570 sqft
Est. Rango de ventas estimado: $0 - $0
$0

Visión general

Custom Waterfront Retreat in Gated Community – Pines on the Bay Ideally situated in the private, gated enclave of Pines on the Bay, this custom-built residence offers the best of Southwest Florida living. Boasting 3 bedrooms, 2 baths, and expansive indoor and outdoor living areas, the home is perfectly positioned to take in panoramic views of Rocky Creek—with direct boating access to the Intracoastal Waterway and Gulf of Mexico via just one bridge. Enjoy easy use of the association boat ramp AND RV/trailer storage! Enjoy quiet mornings and colorful sunset skies from your private screened porch overlooking the water, or unwind in the swim spa while taking in the natural surroundings. The spacious layout offers additional flex living spaces both upstairs and down, ideal for a home office, entertainment area, or guest accommodations. An electric fireplace adds charm and warmth to the main living space. Constructed with durability and peace of mind in mind, this home features a standing seam metal roof, composite decking, Hardie Board Siding and hurricane shutters for added storm protection. Whether you're a boating enthusiast, nature lover, or simply seeking the tranquility of waterfront living in a secure neighborhood, this home delivers the ideal combination of privacy, comfort, and access. Pines on the Bay is known for its natural beauty, quiet surroundings, and close proximity to shopping, schools, dining, and area beaches—making this an exceptional opportunity to live the Florida coastal lifestyle.

Ubicación

Hechos y características

Tipo:
Residential
Estacionamiento:
Sin datos
Año de construcción:
2004
Lote:
0.23 Hectáreas
Calefacción:
Central / Electric
precio por sq. medidor:
$634
Enfriamiento:
Central Air
HOA:
$500
Más hechos y características
  • Piso

    • Ceramic Tile

    • Engineered Hardwood

    • Laminate

    Calefacción

    • Central

    • Electric

    Enfriamiento

    • Central Air

    Accesorios

    • Dishwasher

    • Dryer

    • Electric Water Heater

    • Microwave

    • Range

    • Refrigerator

    • Washer

    Otras características interiores

    • Ceiling Fan(s)

    • Eating Space In Kitchen

    • Kitchen/Family Room Combo

    • Living Room/Dining Room Combo

    • Split Bedroom

    • Stone Counters

    • Thermostat

    • Walk-In Closet(s)

    • Window Treatments

    Dormitorios y baños

    • Dormitorios: 3

    • Baños completos: 2

  • Propiedad

    • Pisos: One

    • Características Exteriores: French Doors / Hurricane Shutters / Lighting / Private Entrance / Rain Gutters / Sliding Doors / Storage

    Lote

    • Lote: 0.23 Hectáreas

    Otra Información de Propiedad

    • Número de Parcela: 412008104010

    • Zonificación: PD

  • Tipo y estilo

    • Tipo de propiedad: Residential

    • Subtipo de propiedad: Single Family Residence

  • Utilidad

    • Cable Connected

    • Electricity Connected

    • Propane

    • Public

    • Sewer Connected

    • Sprinkler Meter

    • Water Connected

  • Otra información financiera

    • HOA: $500

    • Frecuencia HOA: Annually

    • Importe anual de impuestos: $4,690

  • Detalles de la fuente

    • MLS ID: D6145143

    Otros hechos

    • Materiales de construcción: HardiPlank Type / Wood Frame

    • Detalles de la fundación: Stilt/On Piling

    • Características de la chimenea: Electric / Living Room

    • Características de lavandería: Inside / Laundry Closet

    • Características del lote: FloodZone / In County / Landscaped / Level / Private

    • Características del patio y el porche: Covered / Rear Porch / Screened

    • Características de la ventana: Shutters / Window Treatments

    • Caras de dirección: Southwest

    • Otras estructuras: Storage / Workshop

    • Estilo arquitectónico: Coastal / Custom / Elevated

    • Frente al mar: Si

    • Hogar: Si

    • Nombre del cuerpo de agua: ROCKY CREEK

    • Espacios de garaje: 2

    • Garaje adjunto: Si

    • Garaje: Si

    • Salón: 1570

    • Fuente de agua: Public

    • Nombre de subdivisión: PINES ON BAY

Casas similares

16 SOUTHWIND DRIVE placeholder 16 SOUTHWIND DRIVE
Nuevo
En Venta
Lotes / Tierras
$900,000
0 room(s)
16 SOUTHWIND DRIVE
918 EDGEWATER DRIVE placeholder 918 EDGEWATER DRIVE
2 días
En Venta
Casa
$800,000
3 camas 2 baños 1,496 sqft
918 EDGEWATER DRIVE
4078 PELICAN SHORES CIRCLE placeholder 4078 PELICAN SHORES CIRCLE
5 días
En Venta
Casa
$699,000
2 camas 2 baños 1,228 sqft
4078 PELICAN SHORES CIRCLE
4065 N BEACH ROAD UNIT A placeholder 4065 N BEACH ROAD UNIT A
10 días
En Venta
Casa
$839,000
2 camas 2 baños 1,118 sqft
4065 N BEACH ROAD UNIT A
6751 PORTSIDE LANE placeholder 6751 PORTSIDE LANE
12 días
En Venta
Casa
$1,195,000
3 camas 3 baños 3,156 sqft
6751 PORTSIDE LANE
2350 N BEACH ROAD UNIT 1B placeholder 2350 N BEACH ROAD UNIT 1B
18 días
En Venta
Condo / Coop
$825,000
2 camas 2 baños 800 sqft
2350 N BEACH ROAD UNIT 1B
2350 N BEACH ROAD UNIT 1A placeholder 2350 N BEACH ROAD UNIT 1A
18 días
En Venta
Condo / Coop
$820,000
1 camas 2 baños 800 sqft
2350 N BEACH ROAD UNIT 1A
1920 ILLINOIS AVENUE placeholder 1920 ILLINOIS AVENUE
21 días
En Venta
Casa
$749,000
2 camas 2 baños 1,338 sqft
1920 ILLINOIS AVENUE

The multiple listing information is provided by the Stellar MLS from a copyrighted compilation of listings. The compilation of listings and each individual listing are ©2026-present Stellar MLS. All Rights Reserved. The information provided is for consumers' personal, noncommercial use and may not be used for any purpose other than to identify prospective properties consumers may be interested in purchasing. All properties are subject to prior sale or withdrawal. All information provided is deemed reliable but is not guaranteed accurate, and should be independently verified. Listing courtesy of: PARADISE EXCLUSIVE INC