Contacto
Cuéntenos sobre sus necesidades

7244 COVENTRY COURT

Casa En Venta
$599,900

BTC: 19.99666667

ETH: 299.95000000

-$50K (2025/11/13)
114 días
Frente al mar
3 camas
2 baños
1,491 sqft
Est. Rango de ventas estimado: $0 - $0
$0

Visión general

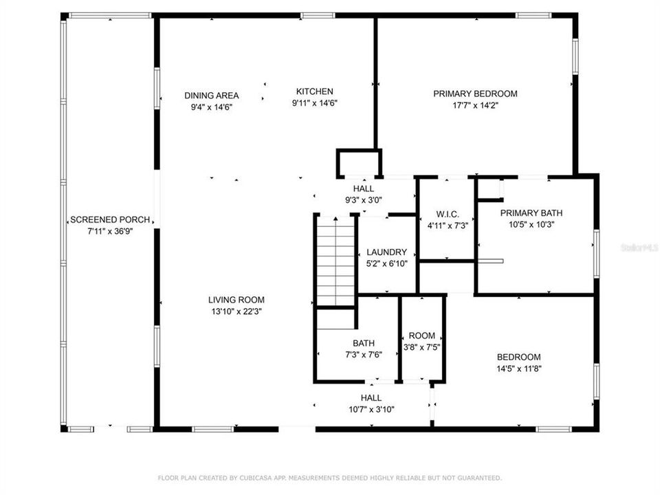
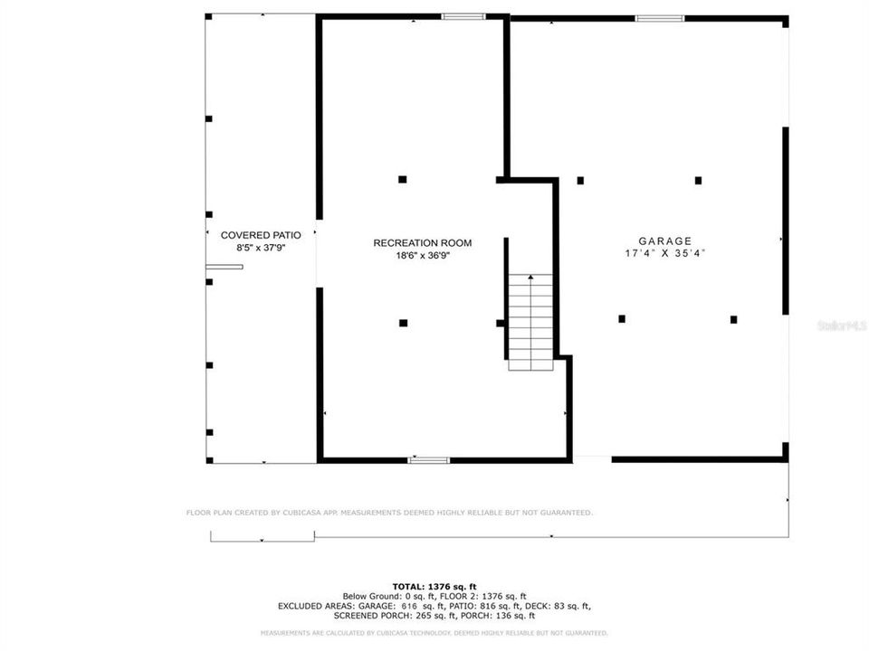
ACTIVE VACATION RENTAL WITH TRANSFERABLE RESERVATIONS. Welcome to your own piece of paradise on the Weeki Wachee River! This TURNKEY 3 bed, 2 bath home (with 2 bedrooms on the 2nd story and a 1st story flex area that can easily be used as a 3rd bedroom) offers easy access to the main river for endless paddling and swimming with manatees in the crystal blue water! With no short-term rental restrictions, this income-producing property is perfect for vacation rentals or your own personal retreat. The home features 1,491 SF of 2nd story living space, and an additional 666 SF 1st level flex area. The second level has 2 bedrooms and 2 bathrooms with an open floor plan that features a kitchen, dining, and living room combination with vaulted ceilings and plantation shutters. The oversized master bedroom has a walk-in closet, king-sized bed, desk, chair, and a large ensuite bathroom with jetted tub, walk-in shower, and plantation shutters. The guest bathroom has been recently remodeled with a shower and vanity. In addition to the king bed in the guest bedroom there is also a trundle bed in the living room. The 1491 SF 1st level has a 666 SF finished area and a separate 2 car garage are with spray foam insulation. There is plenty of parking in the driveway as well! The outdoor space on this property is one of a kind. There is a 2nd story screened in porch, covered 1st story patio, stationary dock, floating dock with kayak launch, and seawall with stairs to the river. The home is being sold turnkey with everything in the pictures, from additional linens, to games, kayaks, and a fully furnished kitchen. Additional upgrades to the home include recent outdoor apoxy floors, new exterior paint, roof (2018), new hot water heater (2025) and new vinyl flooring. Property has transferable flood insurance of 2300 dollars!! Weeki Wachee is famous for its crystal-clear spring-fed river, teeming with wildlife and offering a variety of water activities such as kayaking, paddleboarding, and fishing. Additionally, the area is home to the Weeki Wachee Springs State Park, where visitors can enjoy live mermaid shows and explore the underwater world in the park's submerged observatory. With its serene surroundings and close proximity to amenities, Weeki Wachee is the perfect place to call home or invest in a vacation rental property. Don't miss out on this opportunity to own a piece of waterfront heaven. Schedule your showing today!

Ubicación

Hechos y características

Tipo:
Residential
Estacionamiento:
Sin datos
Año de construcción:
1994
Lote:
0.11 Hectáreas
Calefacción:
Central
precio por sq. medidor:
$402
Enfriamiento:
Central Air
HOA:
Sin datos
Más hechos y características
  • Piso

    • Tile

    • Vinyl

    Calefacción

    • Central

    Enfriamiento

    • Central Air

    Accesorios

    • Dishwasher

    • Dryer

    • Gas Water Heater

    • Microwave

    • Range

    • Refrigerator

    • Washer

    Otras características interiores

    • Cathedral Ceiling(s)

    • Ceiling Fan(s)

    • Living Room/Dining Room Combo

    • Open Floorplan

    • PrimaryBedroom Upstairs

    • Split Bedroom

    • Thermostat

    • Window Treatments

    Dormitorios y baños

    • Dormitorios: 3

    • Baños completos: 2

  • Propiedad

    • Pisos: Two

    • Características Exteriores: Lighting / Outdoor Grill / Rain Gutters / Sliding Doors

    Lote

    • Lote: 0.11 Hectáreas

    Otra Información de Propiedad

    • Número de Parcela: R3222217397000000320

    • Zonificación: R1A

  • Tipo y estilo

    • Tipo de propiedad: Residential

    • Subtipo de propiedad: Single Family Residence

  • Utilidad

    • Cable Connected

    • Electricity Connected

    • Propane

    • Sewer Connected

    • Water Connected

  • Otra información financiera

    • Importe anual de impuestos: $7,765

  • Detalles de la fuente

    • MLS ID: TB8415278

    Otros hechos

    • Materiales de construcción: Vinyl Siding / Wood Frame

    • Detalles de la fundación: Stilt/On Piling

    • Características de lavandería: Laundry Room / Upper Level

    • Características del lote: Cleared / Cul-De-Sac / Flood Insurance Required / Near Marina / Street Dead-End

    • Características del patio y el porche: Patio / Rear Porch / Screened

    • Características de la ventana: Blinds / Drapes

    • Caras de dirección: West

    • Estilo arquitectónico: Elevated

    • Frente al mar: Si

    • Nombre del cuerpo de agua: WEEKI WACHEE RIVER

    • Espacios de garaje: 2

    • Garaje adjunto: Si

    • Garaje: Si

    • Salón: 1491

    • Fuente de agua: Public

    • Tamaño de la parcela: 54 x 86

    • Nombre de subdivisión: WEEKI WACHEE GARDENS

Casas similares

8448 BALM STREET placeholder 8448 BALM STREET
Nuevo
En Venta
Casa
$495,000
3 camas 2 baños 1,826 sqft
8448 BALM STREET
5253 SANDRA DRIVE placeholder 5253 SANDRA DRIVE
2 días
En Venta
Casa
$490,000
4 camas 3 baños 3,152 sqft
5253 SANDRA DRIVE
7294 SUNFISH CIRCLE placeholder 7294 SUNFISH CIRCLE
7 días
En Venta
Casa
$625,000
3 camas 3 baños 1,544 sqft
7294 SUNFISH CIRCLE
8123 RIVER COUNTRY DRIVE placeholder 8123 RIVER COUNTRY DRIVE
8 días
En Venta
Casa
$449,900
3 camas 3 baños 2,460 sqft
8123 RIVER COUNTRY DRIVE
4508 BAHAMA DRIVE placeholder 4508 BAHAMA DRIVE
15 días
En Venta
Casa
$750,000
3 camas 2 baños 2,610 sqft
4508 BAHAMA DRIVE
3616 FLAMINGO BOULEVARD placeholder 3616 FLAMINGO BOULEVARD
20 días
En Venta
Lotes / Tierras
$575,000
0 room(s)
3616 FLAMINGO BOULEVARD
4469 BAHAMA DRIVE placeholder 4469 BAHAMA DRIVE
23 días
En Venta
Casa
$699,000
2 camas 2 baños 1,686 sqft
4469 BAHAMA DRIVE
9121 BONNIE COVE DRIVE placeholder 9121 BONNIE COVE DRIVE
-$10K (2025/12/01)
En Venta
Casa
$464,900
3 camas 2 baños 2,161 sqft
9121 BONNIE COVE DRIVE

The multiple listing information is provided by the Stellar MLS from a copyrighted compilation of listings. The compilation of listings and each individual listing are ©2025-present Stellar MLS. All Rights Reserved. The information provided is for consumers' personal, noncommercial use and may not be used for any purpose other than to identify prospective properties consumers may be interested in purchasing. All properties are subject to prior sale or withdrawal. All information provided is deemed reliable but is not guaranteed accurate, and should be independently verified. Listing courtesy of: JT REALTY & ASSOCIATES