Contacto
Cuéntenos sobre sus necesidades

734 37TH AVENUE N

Casa En Venta
$699,000

BTC: 10.75384615

ETH: 367.89473684

5 días
3 camas
2 baños
1,258 sqft
Est. Rango de ventas estimado: $0 - $0
$0

Visión general

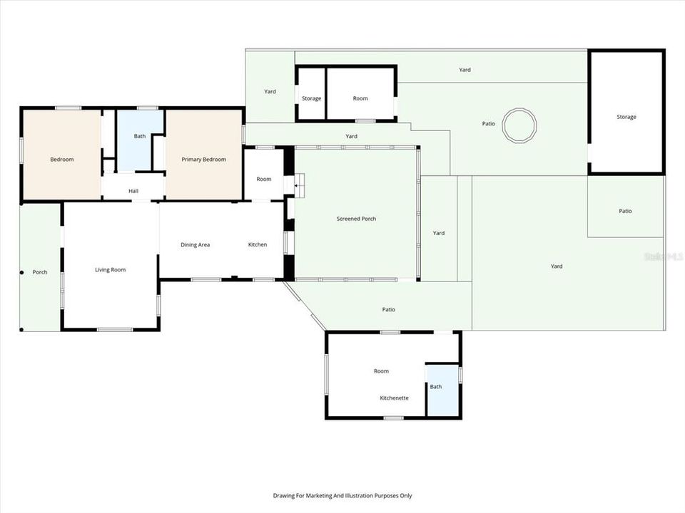
LOCATION, LOCATION, LOCATION! This gem won't last long! Sitting high and dry on an oversized 7,662 sq. ft. lot in a non-flood zone, this charming home offers flexibility, comfort, and income potential in one of St. Petersburg’s most desirable neighborhoods. MAIN HOUSE: Block construction - 2 bedrooms, 1 bathroom, and a huge screened-in patio perfect for entertaining or watching your favorite sport events with friends and family. Design your dream kitchen and refinish the original hardwood floors to your choice of color ($2,000 floor refinishing credit at closing). DETACHED MOTHER-IN-LAW SUITE: 1 bedroom, 1 bathroom with kitchenette and newly installed split AC/heat system—ideal for an elderly parent, teen independence, or rental income (~$1,500/month). ADDITIONAL SPACES: Detached 8' x 10' office/studio for remote work or hobbies and a 12' x 16' storage garage. OUTDOOR LIVING: Spacious backyard with cozy fire pit, towering oak trees, and a huge driveway that could easily be transformed into a carport or additional garage. UPGRADES & FEATURES: Gas tankless water heater, gas dryer, gas hookup for future range, water softener, well & sprinkler system. Located in the highly sought-after Allendale Terrace neighborhood, walking distance to Allendale Park, Publix, ALDI, Whole Foods, restaurants, and a local brewery. Enjoy evening strolls on quiet, brick- and tree-lined streets in this family-friendly, low-traffic neighborhood.

Ubicación

Hechos y características

Tipo:
Residential
Estacionamiento:
Boat / Converted Garage / Driveway / Guest / None / Other / Oversized / RV Parking
Año de construcción:
1946
Lote:
0.17 Hectáreas
Calefacción:
Central
precio por sq. medidor:
$556
Enfriamiento:
Central Air
HOA:
Sin datos
Más hechos y características
  • Piso

    • Tile

    • Hardwood

    Calefacción

    • Central

    Enfriamiento

    • Central Air

    Accesorios

    • Dryer

    • Gas Water Heater

    • Other

    • Refrigerator

    • Washer

    • Water Softener

    Otras características interiores

    • Ceiling Fan(s)

    • Crown Molding

    • Kitchen/Family Room Combo

    • Open Floorplan

    • Solid Surface Counters

    • Thermostat

    Dormitorios y baños

    • Dormitorios: 3

    • Baños completos: 2

  • Estacionamiento

    • Boat

    • Converted Garage

    • Driveway

    • Guest

    • None

    • Other

    • Oversized

    • RV Parking

    Propiedad

    • Pisos: One

    • Características Exteriores: Garden / Irrigation System / Private Mailbox / Rain Gutters / Storage

    Lote

    • Lote: 0.17 Hectáreas

    Otra Información de Propiedad

    • Número de Parcela: 073117005220040060

    • Zonificación: NT-2

  • Tipo y estilo

    • Tipo de propiedad: Residential

    • Subtipo de propiedad: Single Family Residence

  • Utilidad

    • Cable Available

    • Electricity Connected

    • Natural Gas Connected

    • Public

    • Sprinkler Well

    • Street Lights

    • Water Connected

  • Otra información financiera

    • Importe anual de impuestos: $3,809

  • Detalles de la fuente

    • MLS ID: TB8455226

    Otros hechos

    • Materiales de construcción: Block

    • Detalles de la fundación: Concrete Perimeter / Crawlspace

    • Características de la chimenea: Free Standing / Outside

    • Características de lavandería: Gas Dryer Hookup / Other / Outside

    • Características del lote: Landscaped / Oversized Lot

    • Características del patio y el porche: Covered / Front Porch / Patio / Porch / Screened

    • Caras de dirección: North

    • Otras estructuras: Guest House / Shed(s) / Storage / Workshop

    • Estilo arquitectónico: Historical / Patio / Traditional

    • Salón: 1258

    • Fuente de agua: Public

    • Tamaño de la parcela: 60 x 123

    • Nombre de subdivisión: ALLENDALE TERRACE BLKS A-B-1-2-3-4-5-6

Casas similares

1043 7TH AVENUE N placeholder 1043 7TH AVENUE N
Nuevo
En Venta
Multifamiliar
$560,000
4 camas 1,308 sqft
1043 7TH AVENUE N
1 BEACH DRIVE SE UNIT 1610 placeholder 1 BEACH DRIVE SE UNIT 1610
Nuevo
En Venta
Condo / Coop
$825,000
3 camas 2 baños 1,905 sqft
1 BEACH DRIVE SE UNIT 1610
1645 15TH STREET N placeholder 1645 15TH STREET N
2 días
En Venta
Casa
$599,000
3 camas 2 baños 1,146 sqft
1645 15TH STREET N
6001 19TH STREET NE placeholder 6001 19TH STREET NE
2 días
En Venta
Casa
$529,000
3 camas 2 baños 1,432 sqft
6001 19TH STREET NE
1043 7TH AVENUE N placeholder 1043 7TH AVENUE N
2 días
En Venta
$560,000
4 camas 2 baños 1,308 sqft
1043 7TH AVENUE N
5116 VENETIAN BOULEVARD NE placeholder 5116 VENETIAN BOULEVARD NE
4 días
En Venta
Casa
$489,900
3 camas 2 baños 1,703 sqft
5116 VENETIAN BOULEVARD NE
6072 15TH WAY N placeholder 6072 15TH WAY N
5 días
En Venta
Casa
$499,900
2 camas 2 baños 1,190 sqft
6072 15TH WAY N
 placeholder
5 días
En Venta
Comercial
$500,000
0 room(s) 494 sqft

The multiple listing information is provided by the Stellar MLS from a copyrighted compilation of listings. The compilation of listings and each individual listing are ©2026-present Stellar MLS. All Rights Reserved. The information provided is for consumers' personal, noncommercial use and may not be used for any purpose other than to identify prospective properties consumers may be interested in purchasing. All properties are subject to prior sale or withdrawal. All information provided is deemed reliable but is not guaranteed accurate, and should be independently verified. Listing courtesy of: DALTON WADE INC