Contacto
Cuéntenos sobre sus necesidades

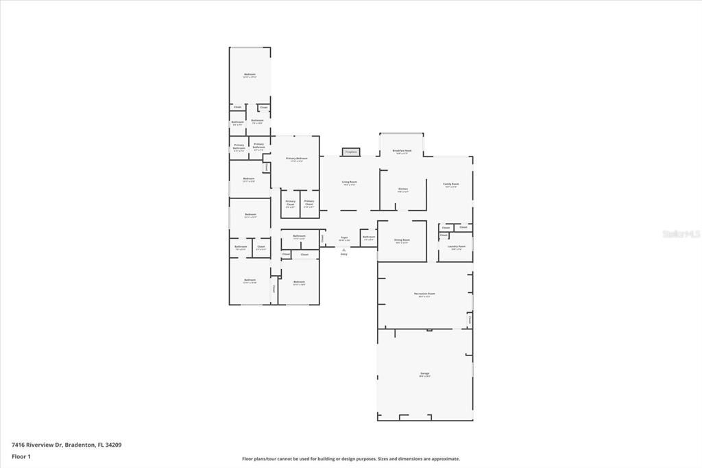
7416 RIVERVIEW DRIVE

Casa Activo con contrato
$2,999,999

BTC: 34.54230282

ETH: 1,499.99950000

-$200K (2025/07/11)
222 días
Frente al mar
6 camas
4 baños
4,529 sqft
Est. Rango de ventas estimado: $0 - $0
$0

Visión general

Under contract-accepting backup offers. One or more photo(s) has been virtually staged. ~ COME SEE THIS ESTATE HOME WITH SWEEPING VIEWS OF MANATEE RIVER AND THE SKYWAY BRIDGE ~ This never before listed residence is situated on a 1/2 Acre of land in NW Bradenton offering you 100' of direct water frontage. The water enthusiast will cherish this rare opportunity to secure a home that has been unaffected by hurricanes and storm surges in a non-flood X zone. At 13 feet this property is among the highest elevation along the Manatee River providing you with peace of mind. Meander out onto your dock to fish, sit a spell and capture the gorgeous sunsets at the mouth of the Manatee River. The night time views of the Skyway Bridge all lit up are simply spectacular. Come live the ultimate coastal lifestyle in this spacious 6 bedroom, 4.5 bath, 4529 sf home that's an easy stroll away from the famous DeSoto National Monument. An enormous 31x21 Media Room with skylights has room to spare so you can customize and transform this area for your workouts, billiards table, theatre center, mother-in-law living quarters and more. Once family and friends stay in guest studio suite overlooking the river with its own private entrance they'll never leave! Cool off from the hotter summer days and take a refreshing dip in your swimming pool as you relax in your chaise lounges in the privacy of your backyard watching the endless parade of boaters and dolphins. This home represents a personal sanctuary with a warm inviting floor-plan featuring spacious rooms throughout. The Primary Suite and main living areas are all complemented by waterfront views and natural daylight adding to the relaxing ambiance. A real wood burning fireplace can be found in the formal living room that opens to the casual dining area with fantastic views of the Westerly sunsets. This residence has incredible potential for you to customize it to your personal tastes. This location simply can't be improved upon. Host family get togethers as your guests lounge poolside in this private oasis. Four 4 ton Trane units service this home averaging $400/month. Electric hurricane roll down shutters are activated by the push of a button for hurricane rated sliding glass doors and large windows along with accordion shutters for added protection. This property is truly unique with its three-tiered retaining walls for added protection from the elements. The roof was installed in 2018. The water heater is brand new. The interior has been freshly painted and new carpeting has been installed. An irrigation system is in place as well. A newer 200' x 4' dock with water and a 35' x 20' terminal built in 2024 will make for great outdoor adventures. Delight your guests with endless hours of kayaking, fishing, crabbing and boating. Non-deed restricted with no HOA or CDD fees. Seize this opportunity to make this home yours... LOCATION REALLY IS EVERYTHING! Be sure to view the Virtual Tour.

Ubicación

Hechos y características

Tipo:
Residential
Estacionamiento:
Covered / Driveway / Garage Door Opener / Ground Level / Guest / Off Street / Oversized
Año de construcción:
1979
Lote:
0.53 Hectáreas
Calefacción:
Central
precio por sq. medidor:
$662
Enfriamiento:
Central Air
HOA:
Sin datos
Más hechos y características
  • Piso

    • Carpet

    • Slate

    Calefacción

    • Central

    Enfriamiento

    • Central Air

    Accesorios

    • Built-In Oven

    • Dishwasher

    • Disposal

    • Dryer

    • Electric Water Heater

    • Microwave

    • Range

    • Refrigerator

    • Washer

    Otras características interiores

    • Ceiling Fan(s)

    • Eating Space In Kitchen

    • Kitchen/Family Room Combo

    • Open Floorplan

    • Primary Bedroom Main Floor

    • Skylight(s)

    • Thermostat

    • Walk-In Closet(s)

    • Wet Bar

    Dormitorios y baños

    • Dormitorios: 6

    • Baños: 1

    • Baños completos: 4

  • Estacionamiento

    • Covered

    • Driveway

    • Garage Door Opener

    • Ground Level

    • Guest

    • Off Street

    • Oversized

    Propiedad

    • Pisos: One

    • Piscina Privada: Si

    • Características Exteriores: Courtyard / French Doors / Hurricane Shutters / Irrigation System / Lighting / Private Mailbox / Rain Gutters / Shade Shutter(s) / Sliding Doors

    Lote

    • Lote: 0.53 Hectáreas

    Otra Información de Propiedad

    • Número de Parcela: 3002500001

    • Zonificación: RSF3/CH

  • Tipo y estilo

    • Tipo de propiedad: Residential

    • Subtipo de propiedad: Single Family Residence

  • Utilidad

    • BB/HS Internet Available

    • Cable Available

    • Cable Connected

    • Electricity Connected

    • Public

    • Sewer Connected

    • Water Connected

  • Otra información financiera

    • Importe anual de impuestos: $9,242

  • Detalles de la fuente

    • MLS ID: A4636965

    Otros hechos

    • Materiales de construcción: Block / Stucco

    • Detalles de la fundación: Slab

    • Características de la chimenea: Living Room / Wood Burning

    • Características de lavandería: Electric Dryer Hookup / Inside / Laundry Room / Washer Hookup

    • Características del lote: In County / Level / Oversized Lot

    • Características del patio y el porche: Patio

    • Características de la piscina: Gunite / In Ground / Lighting / Outside Bath Access / Tile

    • Características de la ventana: Blinds / Double Pane Windows / Shutters

    • Caras de dirección: South

    • Otras estructuras: Guest House

    • Estilo arquitectónico: Custom

    • Frente al mar: Si

    • Hogar: Si

    • Nombre del cuerpo de agua: MANATEE RIVER

    • Espacios de garaje: 2

    • Garaje adjunto: Si

    • Garaje: Si

    • Salón: 4529

    • Fuente de agua: Public

    • Nombre de subdivisión: SHAWS POINT

Casas similares

No se han encontrado propiedades similares en la zona

The multiple listing information is provided by the Stellar MLS from a copyrighted compilation of listings. The compilation of listings and each individual listing are ©2025-present Stellar MLS. All Rights Reserved. The information provided is for consumers' personal, noncommercial use and may not be used for any purpose other than to identify prospective properties consumers may be interested in purchasing. All properties are subject to prior sale or withdrawal. All information provided is deemed reliable but is not guaranteed accurate, and should be independently verified. Listing courtesy of: WAGNER REALTY