Contacto
Cuéntenos sobre sus necesidades

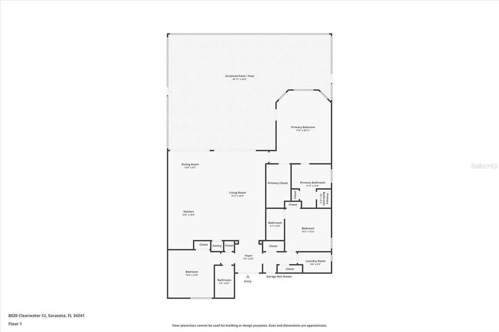
8020 CLEARWATER COURT

Casa En Venta
$834,000

BTC: 27.80000000

ETH: 417.00000000

-$15K (2025/11/25)
13 días
3 camas
3 baños
2,157 sqft
Est. Rango de ventas estimado: $0 - $0
$0

Visión general

This bespoke residence by Heritage Builders is designed for the discerning buyer, featuring high-end upgrades, premium natural gas amenities, and sophisticated automated privacy controls. Step into a light-filled open floor plan defined by a modern coastal aesthetic and superior craftsmanship. Wide-plank wood laminate, custom lighting, dramatic tray ceilings, and designer accent walls create a luxurious, move-in-ready environment. The kitchen features a natural gas cooktop, striking navy and white cabinetry, elegant quartz countertops, a large eat-in bar and high-end stainless steel appliances w/ integrated Wi-Fi capabilities. The living room is enhanced by expansive impact resistance sliding glass doors that disappear, making the screened lanai, pool, and spa feel like a natural extension of your main living space. The split bedroom floor plan strategically places the Primary Suite on its own side of the house, offering a private sanctuary completely separate from the guest bedrooms. The Primary Suite has direct access to the pool/lanai area, a spa-like en-suite bath, and a custom walk-in closet. Enjoy the convenience of automatic screen shutters that provide immediate privacy at the front entry door, along with similar automatic screens enclosing sides of the lanai. The lanai is pre-plumbed and ready for your dream outdoor kitchen, featuring gas and water hookups. Quick access to I-75, premier shopping, dining, and all of Sarasota's cultural and recreational amenities. This is a rare opportunity to own a unique, impeccably maintained custom home with superior features and an ideal Sarasota address. Motivated Seller!

Ubicación

Hechos y características

Tipo:
Residential
Estacionamiento:
Sin datos
Año de construcción:
2022
Lote:
0.18 Hectáreas
Calefacción:
Central
precio por sq. medidor:
$387
Enfriamiento:
Central Air
HOA:
$465
Más hechos y características
  • Piso

    • Laminate

    • Tile

    Calefacción

    • Central

    Enfriamiento

    • Central Air

    Accesorios

    • Dishwasher

    • Disposal

    • Dryer

    • Gas Water Heater

    • Microwave

    • Range

    • Range Hood

    • Refrigerator

    • Washer

    Otras características interiores

    • Ceiling Fan(s)

    • Eating Space In Kitchen

    • High Ceilings

    • Primary Bedroom Main Floor

    • Smart Home

    • Stone Counters

    • Thermostat

    • Walk-In Closet(s)

    Dormitorios y baños

    • Dormitorios: 3

    • Baños completos: 3

  • Propiedad

    • Pisos: One

    • Piscina Privada: Si

    • Características Exteriores: Irrigation System / Lighting / Sidewalk / Sliding Doors

    Lote

    • Lote: 0.18 Hectáreas

    Otra Información de Propiedad

    • Número de Parcela: 0281050033

    • Zonificación: RSF2

  • Tipo y estilo

    • Tipo de propiedad: Residential

    • Subtipo de propiedad: Single Family Residence

  • Utilidad

    • Electricity Connected

    • Sewer Connected

    • Water Connected

  • Otra información financiera

    • HOA: $465

    • Frecuencia HOA: Monthly

    • Importe anual de impuestos: $8,145

  • Detalles de la fuente

    • MLS ID: A4672945

    Otros hechos

    • Materiales de construcción: Block

    • Detalles de la fundación: Slab

    • Características de lavandería: Inside / Laundry Room

    • Características del patio y el porche: Screened

    • Características de la piscina: Heated / In Ground

    • Características de la ventana: Storm Window(s)

    • Caras de dirección: West

    • Espacios de garaje: 2

    • Garaje adjunto: Si

    • Garaje: Si

    • Salón: 2157

    • Fuente de agua: Public

    • Nombre de subdivisión: SANDHILL LAKE

Casas similares

8596 SNOWFALLL STREET placeholder 8596 SNOWFALLL STREET
1 días
En Venta
Casa
$599,069
4 camas 3 baños 2,881 sqft
8596 SNOWFALLL STREET
8600 SNOWFALLL STREET placeholder 8600 SNOWFALLL STREET
1 días
En Venta
Casa
$625,644
4 camas 3 baños 3,020 sqft
8600 SNOWFALLL STREET
8556 SNOWFALLL STREET placeholder 8556 SNOWFALLL STREET
2 días
En Venta
Casa
$606,539
4 camas 3 baños 2,881 sqft
8556 SNOWFALLL STREET
7543 HAWKSTONE DRIVE placeholder 7543 HAWKSTONE DRIVE
2 días
En Venta
Casa
$699,999
3 camas 2 baños 2,809 sqft
7543 HAWKSTONE DRIVE
9000 TEQUILA SUNRISE DRIVE placeholder 9000 TEQUILA SUNRISE DRIVE
3 días
En Venta
Casa
$625,000
4 camas 2 baños 1,783 sqft
9000 TEQUILA SUNRISE DRIVE
10016 LAKE WALES CIRCLE placeholder 10016 LAKE WALES CIRCLE
6 días
En Venta
Casa
$589,000
3 camas 2 baños 1,825 sqft
10016 LAKE WALES CIRCLE
6570 WILD ORCHID LANE placeholder 6570 WILD ORCHID LANE
11 días
En Venta
Casa
$970,000
3 camas 3 baños 3,103 sqft
6570 WILD ORCHID LANE
9669 CRYSTAL ISLES CIRCLE placeholder 9669 CRYSTAL ISLES CIRCLE
14 días
En Venta
Casa
$710,249
4 camas 2 baños 2,133 sqft
9669 CRYSTAL ISLES CIRCLE

The multiple listing information is provided by the Stellar MLS from a copyrighted compilation of listings. The compilation of listings and each individual listing are ©2025-present Stellar MLS. All Rights Reserved. The information provided is for consumers' personal, noncommercial use and may not be used for any purpose other than to identify prospective properties consumers may be interested in purchasing. All properties are subject to prior sale or withdrawal. All information provided is deemed reliable but is not guaranteed accurate, and should be independently verified. Listing courtesy of: CHIC PROPERTIES II LLC