Contacto
Cuéntenos sobre sus necesidades

821 AMHURST DRIVE

Casa En Venta
$418,000

BTC: 4.84076433

ETH: 142.85714286

Nuevo
5 camas
3 baños
2,601 sqft
Est. Rango de ventas estimado: $0 - $0
$0

Visión general

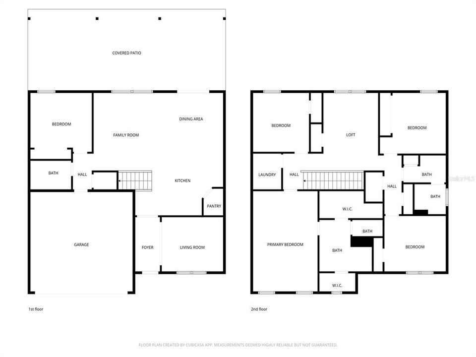
Welcome to 821 Amhurst Dr, a stunning 5-bedroom, 3-bath, 2,600 sq ft home offering the perfect blend of space, comfort, and outdoor living in the heart of Orange City. This bright, open-concept home features a modern kitchen with a large granite island, stainless-steel appliances, and seamless flow into the living and dining areas—ideal for everyday living and entertaining. A downstairs bedroom and full bath provide flexibility for guests, home office, or multi-generational living. Step outside to your fully fenced backyard oasis complete with a brand-new playground and beautiful gazebo, creating the perfect space for relaxing, hosting, and making memories. Located in a quiet, family-friendly community close to shopping, dining, and major roadways, this home offers exceptional value at $418,000. Homes with this much space and outdoor lifestyle don’t last—schedule your private tour today.

Ubicación

Hechos y características

Tipo:
Residential
Estacionamiento:
Sin datos
Año de construcción:
2024
Lote:
0.15 Hectáreas
Calefacción:
Central
precio por sq. medidor:
$161
Enfriamiento:
Central Air
HOA:
$100
Más hechos y características
  • Piso

    • Other

    Calefacción

    • Central

    Enfriamiento

    • Central Air

    Accesorios

    • Dishwasher

    • Disposal

    • Electric Water Heater

    • Microwave

    • Refrigerator

    Otras características interiores

    • Other

    Dormitorios y baños

    • Dormitorios: 5

    • Baños completos: 3

  • Propiedad

    • Pisos: Two

    • Características Exteriores: Awning(s) / Playground

    Lote

    • Lote: 0.15 Hectáreas

    Otra Información de Propiedad

    • Número de Parcela: 801440000090

    • Zonificación: RES

  • Tipo y estilo

    • Tipo de propiedad: Residential

    • Subtipo de propiedad: Single Family Residence

  • Utilidad

    • Cable Available

    • Electricity Available

    • Sewer Available

    • Street Lights

    • Underground Utilities

    • Water Available

  • Otra información financiera

    • HOA: $100

    • Frecuencia HOA: Monthly

    • Importe anual de impuestos: $1,026

  • Detalles de la fuente

    • MLS ID: O6369018

    Otros hechos

    • Materiales de construcción: Block / Stucco

    • Detalles de la fundación: Slab

    • Características de lavandería: Inside

    • Caras de dirección: North

    • Espacios de garaje: 2

    • Garaje adjunto: Si

    • Garaje: Si

    • Salón: 2601

    • Fuente de agua: Public

    • Nombre de subdivisión: PARC HILL-PH 4

Casas similares

623 WOODFORD DRIVE placeholder 623 WOODFORD DRIVE
7 días
En Venta
Casa
$435,000
4 camas 3 baños 2,305 sqft
623 WOODFORD DRIVE
439 FOXHILL DRIVE placeholder 439 FOXHILL DRIVE
10 días
En Venta
Casa
$410,000
3 camas 2 baños 1,901 sqft
439 FOXHILL DRIVE
675 S CEDAR AVENUE placeholder 675 S CEDAR AVENUE
13 días
En Venta
Casa
$365,000
3 camas 2 baños 1,600 sqft
675 S CEDAR AVENUE
1933 S VOLUSIA AVENUE placeholder 1933 S VOLUSIA AVENUE
+$30K (2025/12/18)
En Venta
Comercial
$425,000
0 room(s) 2,872 sqft
1933 S VOLUSIA AVENUE
480 CHESTNUT AVENUE placeholder 480 CHESTNUT AVENUE
-$5K (2025/12/24)
En Venta
Casa
$309,999
3 camas 2 baños 1,172 sqft
480 CHESTNUT AVENUE
1901 KNOLTON AVENUE placeholder 1901 KNOLTON AVENUE
15 días
En Venta
Casa
$307,500
3 camas 2 baños 1,532 sqft
1901 KNOLTON AVENUE
390 FOXHILL DRIVE placeholder 390 FOXHILL DRIVE
15 días
En Venta
Casa
$375,000
3 camas 2 baños 1,688 sqft
390 FOXHILL DRIVE
294 JARVIS AVENUE placeholder 294 JARVIS AVENUE
18 días
En Venta
Casa
$299,000
2 camas 2 baños 1,516 sqft
294 JARVIS AVENUE

The multiple listing information is provided by the Stellar MLS from a copyrighted compilation of listings. The compilation of listings and each individual listing are ©2025-present Stellar MLS. All Rights Reserved. The information provided is for consumers' personal, noncommercial use and may not be used for any purpose other than to identify prospective properties consumers may be interested in purchasing. All properties are subject to prior sale or withdrawal. All information provided is deemed reliable but is not guaranteed accurate, and should be independently verified. Listing courtesy of: FLORIDA HOMES REALTY & MORTGAGE