Contacto
Cuéntenos sobre sus necesidades

8381 56TH WAY N

Casa Activo con contrato
$535,000

BTC: 17.83333333

ETH: 267.50000000

13 días
4 camas
3 baños
2,312 sqft
Est. Rango de ventas estimado: $0 - $0
$0

Visión general

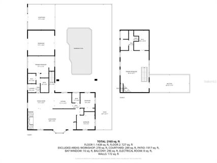
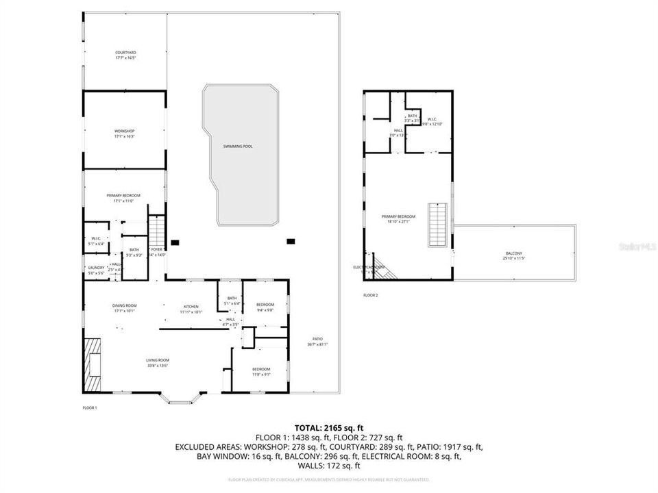
Welcome to your dream home in sunny Pinellas Park! This spacious 4-bedroom, 3-bath residence blends modern comfort with resort-style living with over 2,300 sq ft. The exterior has been freshly painted along with a brand new roof from 2025 and brand new gutters. Step inside to discover an open-concept layout filled with natural light, featuring a beautifully updated kitchen, generous living areas, and 3 bedrooms on the main floor to accommodate multi-generational living. The primary suite is your private retreat on the second floor (780 sq ft), with a fireplace complete with a spa-inspired bathroom. The shower exudes a luxurious, spa-like feel with a dramatic modern design including a built-in bench with body jets and handheld sprayer. The oversized walk-in closet is perfectly paired with built-in cabinetry for additional storage. Off of the primary bedroom, you will have direct access to an expansive rooftop patio—perfect for morning coffee or evening sunsets. Outside, the backyard is an entertainer’s paradise, boasting a giant sparkling pool surrounded by lush landscaping including fruit trees (hybrid citrus and mango) finished with pavers and a stylish concrete stamped patio and "Smart" outdoor color changing lighting near the pool. There is plenty of space for lounging or hosting gatherings. In the yard, you will also find access to the workshop (16X17) to accommodate your storage needs or woodworking you are considering. Additional storage shed in the backyard is 12X18. (AC 2017) (Hot Water Heater 2022) (Kitchen Appliances 2022) (Gutters 2025) (Exterior Paint 2025)(Vinyl fence 2022) (Pool Pump 2024) Roll Down shutters around the home for quick protection and peace of mind in this non-flood zone. 15 minutes to Madeira beach, 20 minutes to Tampa International Airport and 20 minutes to Armature Works. Don’t miss your chance to own this one-of-a-kind property—schedule your private showing today!

Ubicación

Hechos y características

Tipo:
Residential
Estacionamiento:
Sin datos
Año de construcción:
1959
Lote:
0.16 Hectáreas
Calefacción:
Central / Electric
precio por sq. medidor:
$231
Enfriamiento:
Central Air
HOA:
Sin datos
Más hechos y características
  • Piso

    • Carpet

    • Tile

    • Hardwood

    Calefacción

    • Central

    • Electric

    Enfriamiento

    • Central Air

    Accesorios

    • Dishwasher

    • Dryer

    • Electric Water Heater

    • Microwave

    • Range

    • Refrigerator

    • Washer

    • Water Softener

    Otras características interiores

    • Ceiling Fan(s)

    • Living Room/Dining Room Combo

    • PrimaryBedroom Upstairs

    • Solid Surface Counters

    • Thermostat

    Dormitorios y baños

    • Dormitorios: 4

    • Baños completos: 3

  • Propiedad

    • Pisos: Two

    • Piscina Privada: Si

    • Características Exteriores: Balcony / Irrigation System / Lighting / Private Mailbox / Rain Gutters / Sidewalk / Sliding Doors

    Lote

    • Lote: 0.16 Hectáreas

    Otra Información de Propiedad

    • Número de Parcela: 283016367920170060

  • Tipo y estilo

    • Tipo de propiedad: Residential

    • Subtipo de propiedad: Single Family Residence

  • Utilidad

    • BB/HS Internet Available

    • Cable Connected

    • Electricity Connected

    • Propane

    • Public

    • Sewer Connected

    • Street Lights

    • Water Connected

  • Otra información financiera

    • Importe anual de impuestos: $92

  • Detalles de la fuente

    • MLS ID: TB8436743

    Otros hechos

    • Materiales de construcción: Block / Stucco / Wood Siding

    • Detalles de la fundación: Block

    • Características de la chimenea: Gas / Living Room / Non Wood Burning / Master Bedroom / Stone / Wood Burning

    • Características de lavandería: Inside / Laundry Closet

    • Características del lote: Sidewalk

    • Características del patio y el porche: Front Porch / Porch / Rear Porch

    • Características de la piscina: In Ground

    • Caras de dirección: West

    • Otras estructuras: Shed(s)

    • Hogar: Si

    • Garaje adjunto: Si

    • Salón: 2312

    • Fuente de agua: Public

    • Tamaño de la parcela: 61 x 116

    • Nombre de subdivisión: HARMONY HEIGHTS SEC 4

Casas similares

3641 50TH AVENUE N placeholder 3641 50TH AVENUE N
1 días
Activo con contrato
Casa
$534,000
3 camas 2 baños 1,477 sqft
3641 50TH AVENUE N
4357 70TH AVENUE N placeholder 4357 70TH AVENUE N
2 días
Activo con contrato
Casa
$375,000
3 camas 3 baños 1,343 sqft
4357 70TH AVENUE N
7441 121ST TERRACE placeholder 7441 121ST TERRACE
3 días
Activo con contrato
Casa
$425,000
3 camas 2 baños 1,540 sqft
7441 121ST TERRACE
12142 77TH STREET placeholder 12142 77TH STREET
3 días
Activo con contrato
Casa
$399,900
3 camas 2 baños 1,164 sqft
12142 77TH STREET
11312 62ND STREET N placeholder 11312 62ND STREET N
4 días
Activo con contrato
Casa
$389,900
3 camas 2 baños 1,196 sqft
11312 62ND STREET N
4036 56TH AVENUE N placeholder 4036 56TH AVENUE N
5 días
Activo con contrato
Casa
$445,000
3 camas 2 baños 1,590 sqft
4036 56TH AVENUE N
4405 55TH AVENUE N placeholder 4405 55TH AVENUE N
5 días
Activo con contrato
Multifamiliar
$415,000
4 camas 1,536 sqft
4405 55TH AVENUE N
4380 55TH WAY N placeholder 4380 55TH WAY N
6 días
Activo con contrato
Casa
$399,000
3 camas 2 baños 1,274 sqft
4380 55TH WAY N

The multiple listing information is provided by the Stellar MLS from a copyrighted compilation of listings. The compilation of listings and each individual listing are ©2025-present Stellar MLS. All Rights Reserved. The information provided is for consumers' personal, noncommercial use and may not be used for any purpose other than to identify prospective properties consumers may be interested in purchasing. All properties are subject to prior sale or withdrawal. All information provided is deemed reliable but is not guaranteed accurate, and should be independently verified. Listing courtesy of: REAL BROKER, LLC