Contacto
Cuéntenos sobre sus necesidades

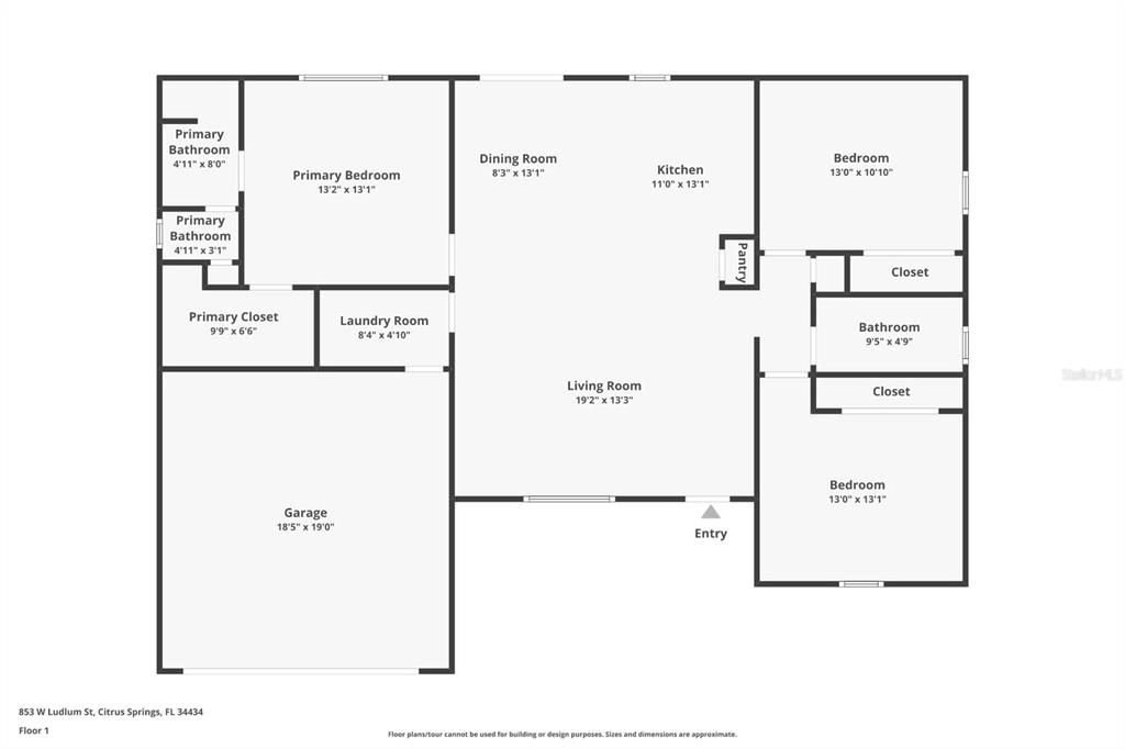
853 W LUDLUM STREET

Casa Activo con contrato
$255,000

BTC: 2.93609672

ETH: 127.50000000

14 días
3 camas
2 baños
1,447 sqft
Est. Rango de ventas estimado: $0 - $0
$0

Visión general

Under contract-accepting backup offers. One or more photo(s) has been virtually staged. Welcome to 853 W Ludlum Street in Citrus Springs, Florida — a stunning brand-new 2025 construction offering style, comfort, and quality living in the heart of Central Florida. This beautifully designed three-bedroom, two-bathroom home sits on a spacious .30-acre corner lot with no rear neighbor, creating the perfect blend of privacy and convenience. From the moment you arrive, the marble chip accent design enhances the curb appeal, setting the tone for the modern elegance found throughout. Step inside to discover a light, bright, and airy open floor plan featuring luxury vinyl flooring that flows seamlessly through the main living areas. The contemporary kitchen includes white shaker cabinetry, Corian countertops, stainless steel appliances, recessed lighting, and an inviting eat-in breakfast nook, perfect for everyday meals or entertaining guests. The split bedroom layout ensures privacy, with the spacious primary suite showcasing tray ceilings, an oversized walk-in closet, and a spa-like bathroom complete with dual vanities and a sleek step-in shower. Two additional guest bedrooms share a beautifully finished bathroom that mirrors the home’s clean, modern aesthetic. Additional highlights include an indoor laundry room, two-car garage, and energy-efficient features that add everyday convenience. Located near shopping, dining, medical offices, and top Citrus County schools, this home provides quick access to local favorites like Citrus Springs Golf & Country Club, Withlacoochee State Trail, and downtown Dunnellon’s restaurants and boutiques. Whether you’re a first-time buyer, investor, or relocating to enjoy the Florida lifestyle, this move-in ready home checks every box. Don’t miss your opportunity to own a brand-new 2025 home in beautiful Citrus Springs, FL — where modern living meets small-town charm in the heart of Central Florida.

Ubicación

Hechos y características

Tipo:
Residential
Estacionamiento:
Driveway / Ground Level / Off Street
Año de construcción:
2025
Lote:
0.30 Hectáreas
Calefacción:
Central / Electric
precio por sq. medidor:
$176
Enfriamiento:
Central Air
HOA:
Sin datos
Más hechos y características
  • Piso

    • Luxury Vinyl

    • Tile

    Calefacción

    • Central

    • Electric

    Enfriamiento

    • Central Air

    Accesorios

    • Dishwasher

    • Microwave

    • Range

    • Refrigerator

    Otras características interiores

    • Ceiling Fan(s)

    • Eating Space In Kitchen

    • High Ceilings

    • Open Floorplan

    • Primary Bedroom Main Floor

    • Split Bedroom

    • Stone Counters

    • Tray Ceiling(s)

    • Walk-In Closet(s)

    Dormitorios y baños

    • Dormitorios: 3

    • Baños completos: 2

  • Estacionamiento

    • Driveway

    • Ground Level

    • Off Street

    Propiedad

    • Pisos: One

    • Características Exteriores: Lighting / Sliding Doors

    Lote

    • Lote: 0.30 Hectáreas

    Otra Información de Propiedad

    • Número de Parcela: 18E17S100160096100090

    • Zonificación: PDR

  • Tipo y estilo

    • Tipo de propiedad: Residential

    • Subtipo de propiedad: Single Family Residence

  • Utilidad

    • Electricity Connected

    Energía verde

    • Appliances

    • Windows

  • Otra información financiera

    • Importe anual de impuestos: $150

  • Detalles de la fuente

    • MLS ID: OM712356

    Otros hechos

    • Materiales de construcción: Block / Concrete / Stucco

    • Detalles de la fundación: Slab

    • Características de lavandería: Inside / Laundry Room

    • Características del lote: Cleared / Corner Lot / Oversized Lot

    • Características del patio y el porche: Front Porch / Rear Porch

    • Características de la ventana: Double Pane Windows / ENERGY STAR Qualified Windows

    • Caras de dirección: South

    • Estilo arquitectónico: Florida

    • Espacios de garaje: 2

    • Garaje adjunto: Si

    • Garaje: Si

    • Salón: 1447

    • Fuente de agua: Public

    • Nombre de subdivisión: CITRUS SPGS UNIT 16

Casas similares

701 E OVERDRIVE LOT 16 CIRCLE placeholder 701 E OVERDRIVE LOT 16 CIRCLE
Nuevo
Activo con contrato
Lotes / Tierras
$292,645
0 room(s)
701 E OVERDRIVE LOT 16 CIRCLE
665 E NEMO DRIVE placeholder 665 E NEMO DRIVE
2 días
Activo con contrato
Casa
$289,000
4 camas 2 baños 1,473 sqft
665 E NEMO DRIVE
8984 N GRECO TERRACE placeholder 8984 N GRECO TERRACE
4 días
Activo con contrato
Casa
$234,900
3 camas 2 baños 1,405 sqft
8984 N GRECO TERRACE
6005 N DARLINGTON DRIVE placeholder 6005 N DARLINGTON DRIVE
-$1K (2025/11/18)
Activo con contrato
Casa
$258,900
3 camas 2 baños 1,530 sqft
6005 N DARLINGTON DRIVE
8489 N BOLDER DRIVE placeholder 8489 N BOLDER DRIVE
12 días
Activo con contrato
Casa
$272,990
4 camas 2 baños 1,708 sqft
8489 N BOLDER DRIVE
275 W BRIMSON PLACE placeholder 275 W BRIMSON PLACE
-$5K (2025/12/04)
Activo con contrato
Casa
$234,900
3 camas 2 baños 1,405 sqft
275 W BRIMSON PLACE
7229 N GIBRALTER DRIVE placeholder 7229 N GIBRALTER DRIVE
14 días
Activo con contrato
Casa
$279,900
4 camas 2 baños 1,833 sqft
7229 N GIBRALTER DRIVE
742 W DEACON PLACE placeholder 742 W DEACON PLACE
14 días
Activo con contrato
Casa
$289,900
4 camas 2 baños 1,487 sqft
742 W DEACON PLACE

The multiple listing information is provided by the Stellar MLS from a copyrighted compilation of listings. The compilation of listings and each individual listing are ©2025-present Stellar MLS. All Rights Reserved. The information provided is for consumers' personal, noncommercial use and may not be used for any purpose other than to identify prospective properties consumers may be interested in purchasing. All properties are subject to prior sale or withdrawal. All information provided is deemed reliable but is not guaranteed accurate, and should be independently verified. Listing courtesy of: ASHLEY YATES REALTY