Contacto
Cuéntenos sobre sus necesidades

8556 TAVISTOCK LAKES BOULEVARD

Casa En Venta
$949,000

BTC: 10.92688543

ETH: 474.50000000

-$50K (2025/12/18)
52 días
5 camas
4 baños
3,146 sqft
Est. Rango de ventas estimado: $0 - $0
$0

Visión general

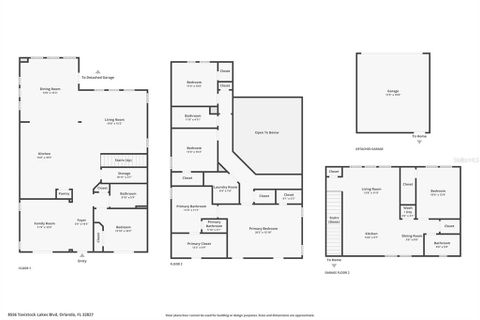
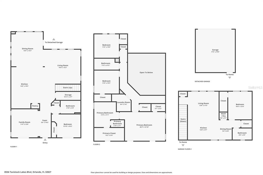
Investors Dream! Located in the heart of the community in the highly sought-after community of Laureate Park. Built by renowned builder David Weekley Homes, this stunning Southhaven model offers over 3,100 square feet of thoughtfully designed living space that perfectly blends modern comfort with timeless charm. Featuring five bedrooms and four full baths, this home provides flexibility and function for families of all sizes. From the moment you arrive, the inviting Craftsman-style façade, meticulous landscaping, and covered front porch with a second-floor balcony set the tone for the beauty that continues inside. Step through the front door to find tile flooring throughout the main living areas, high ceilings, and abundant natural light streaming through large windows. The versatile front room can serve as a formal living space or home office, while the open-concept layout connects the kitchen, dining, and family rooms—ideal for everyday living or entertaining guests. The chef’s kitchen features rich mocha cabinetry extending into the dining area, a large center island with breakfast seating, and elegant pendant lighting. From here, step outside to the covered porch and fenced grass area, creating a seamless indoor-outdoor flow. Upstairs, the wood-tread staircase leads to four spacious bedrooms, including the owner’s suite with a private balcony, walk-in closets, and a luxurious en suite bath with dual sinks, granite countertops, a garden tub, and a separate shower. Three additional bedrooms, two full bathrooms, and a media room complete the second floor, offering space for everyone to unwind. Outdoor living shines with a covered rear porch and open yard—perfect for weekend barbecues or quiet evenings under the stars. The detached three-car garage includes a one-bedroom apartment above, offering potential rental income, a private guest suite, or a dedicated workspace. Located just steps from the Laureate Park Aquatic Center, residents also enjoy access to LP Fit, dog parks, and neighborhood restaurants. With 44+ miles of scenic trails, proximity to Lake Nona Medical City, and easy access to shopping, dining, entertainment, and major highways, this home truly embodies convenience and luxury living. Tenant in place in home until July 2028, Garage rented until 2026!

Ubicación

Hechos y características

Tipo:
Residential
Estacionamiento:
Alley Access / Converted Garage / Curb Parking / Garage Door Opener / Garage Faces Rear / Ground Level / Open
Año de construcción:
2015
Lote:
0.13 Hectáreas
Calefacción:
Central / Electric
precio por sq. medidor:
$302
Enfriamiento:
Central Air
HOA:
$170
Más hechos y características
  • Piso

    • Carpet

    • Ceramic Tile

    • Hardwood

    Calefacción

    • Central

    • Electric

    Enfriamiento

    • Central Air

    Accesorios

    • Dishwasher

    • Disposal

    • Electric Water Heater

    • Exhaust Fan

    • Microwave

    • Range

    • Refrigerator

    Otras características interiores

    • Cathedral Ceiling(s)

    • Ceiling Fan(s)

    • Eating Space In Kitchen

    • High Ceilings

    • Kitchen/Family Room Combo

    • Living Room/Dining Room Combo

    • Open Floorplan

    • PrimaryBedroom Upstairs

    • Solid Wood Cabinets

    • Split Bedroom

    • Stone Counters

    • Thermostat

    • Tray Ceiling(s)

    • Walk-In Closet(s)

    • Window Treatments

    Dormitorios y baños

    • Dormitorios: 5

    • Baños completos: 4

  • Estacionamiento

    • Alley Access

    • Converted Garage

    • Curb Parking

    • Garage Door Opener

    • Garage Faces Rear

    • Ground Level

    • Open

    Propiedad

    • Pisos: Two

    • Características Exteriores: Balcony / French Doors / Irrigation System / Lighting / Sidewalk

    Lote

    • Lote: 0.13 Hectáreas

    Otra Información de Propiedad

    • Número de Parcela: 302431485003370

    • Zonificación: PD/AN

  • Tipo y estilo

    • Tipo de propiedad: Residential

    • Subtipo de propiedad: Single Family Residence

  • Utilidad

    • Public

  • Otra información financiera

    • HOA: $170

    • Frecuencia HOA: Monthly

    • Importe anual de impuestos: $15,736

  • Detalles de la fuente

    • MLS ID: O6356546

    Otros hechos

    • Materiales de construcción: Block / Stone / Stucco

    • Detalles de la fundación: Slab

    • Características de lavandería: Inside / Laundry Room

    • Características del lote: Landscaped / Level / Sidewalk

    • Características del patio y el porche: Covered / Front Porch / Rear Porch

    • Características de la ventana: Blinds

    • Caras de dirección: North

    • Otras estructuras: Guest House

    • Estilo arquitectónico: Craftsman

    • Espacios de garaje: 3

    • Garaje: Si

    • Salón: 3146

    • Fuente de agua: Public

    • Nombre de subdivisión: LAUREATE PARK

Casas similares

14161 CENTERLINE DRIVE placeholder 14161 CENTERLINE DRIVE
2 días
En Venta
Casa
$699,000
4 camas 3 baños 2,367 sqft
14161 CENTERLINE DRIVE
12077 ULETA LANE placeholder 12077 ULETA LANE
3 días
En Venta
Casa
$980,000
5 camas 4 baños 4,093 sqft
12077 ULETA LANE
4185 CARDINAL LANE placeholder 4185 CARDINAL LANE
3 días
En Venta
$1,200,000
2 camas 2 baños 1,188 sqft
4185 CARDINAL LANE
18730 PLANETREE STREET placeholder 18730 PLANETREE STREET
4 días
En Venta
Casa
$760,000
5 camas 4 baños 3,504 sqft
18730 PLANETREE STREET
13701 CHAUVIN AVENUE placeholder 13701 CHAUVIN AVENUE
6 días
En Venta
Casa
$765,000
3 camas 2 baños 2,401 sqft
13701 CHAUVIN AVENUE
18907 RAWSON STREET placeholder 18907 RAWSON STREET
6 días
En Venta
Casa
$698,000
3 camas 2 baños 2,427 sqft
18907 RAWSON STREET
9952 RODBELL ST placeholder 9952 RODBELL ST
10 días
En Venta
Casa
$759,000
3 camas 2 baños 2,385 sqft
9952 RODBELL ST
13957 DESTIN BEACH LANE placeholder 13957 DESTIN BEACH LANE
16 días
En Venta
Casa
$1,150,000
3 camas 3 baños 2,743 sqft
13957 DESTIN BEACH LANE

The multiple listing information is provided by the Stellar MLS from a copyrighted compilation of listings. The compilation of listings and each individual listing are ©2025-present Stellar MLS. All Rights Reserved. The information provided is for consumers' personal, noncommercial use and may not be used for any purpose other than to identify prospective properties consumers may be interested in purchasing. All properties are subject to prior sale or withdrawal. All information provided is deemed reliable but is not guaranteed accurate, and should be independently verified. Listing courtesy of: REAL BROKER, LLC