Contacto
Cuéntenos sobre sus necesidades

860 EAGLE CLAW COURT

Casa Activo con contrato
$675,000

BTC: 7.81702374

ETH: 230.69036227

-$45K (2025/11/06)
77 días
4 camas
3 baños
2,861 sqft
Est. Rango de ventas estimado: $0 - $0
$0

Visión general

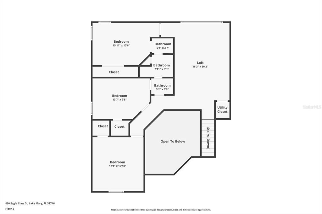
One or more photo(s) has been virtually staged. SELLER OFFERING $10K CREDIT! Located in the renowned Timacuan Golf Community in the heart of Lake Mary. Recently updated with a NEW ROOF, NEW Carrier High Efficiency AC, and NEW carpet! From the moment you enter through the double doors and into the grand 2-story foyer, you'll be impressed by the spacious, light-filled layout, REAL WOOD FLOORING, and CROWN MOLDING throughout every room. The formal living and dining room provide an elegant space for entertaining. The Living Room is also perfect as an office. **Stylish tile floors lead you to the expansive family room and open-concept GOURMET KITCHEN, which overlooks the sparkling SALTWATER POOL with a Newer variable speed pump and a covered lanai. NO REAR NEIGHBORS create a private oasis.** The kitchen features granite countertops, a center cook island with a downdraft fan, a snack bar, breakfast nook, BUILT IN OVENS, and newer appliances—including a NEW cooktop, NEW dishwasher, and Newer refrigerator (2 yrs).**The luxurious primary suite is located on the first floor with views of the the pool and backyard. The Master boasts NEW CARPET, volume ceilings, an expansive walk-in closet, soaking tub, dual vanities, and a separate shower. Next to the Master is the full-size pool bath with an updated vanity top and a tiled shower for added convenience.**Upstairs, you’ll find three generously sized bedrooms, each with crown molding, LARGE CLOSETS, and plenty of natural light. A LARGE LOFT provides flexible living space, while the thoughtfully designed Jack and Jill bathroom includes two separate sink areas and a shared shower separated by 2 doors for added privacy.**Additional highlights include DOUBLE PANE WINDOWS, NEWER SLIDING DOORS in the family room & kitchen, wooden blinds, ceiling fans in nearly every room, crown molding throughout, and lush landscaping with an irrigation system.**This immaculate home offers comfort, functionality, and style—all in a prime location and with a NEW ROOF for peace of mind. Don’t miss your opportunity to own this exceptional property in one of Lake Mary’s premier golf course communities! ** Check out the Virtual Tour Link for a 3D walking tour!

Ubicación

Hechos y características

Tipo:
Residential
Estacionamiento:
Sin datos
Año de construcción:
1995
Lote:
0.26 Hectáreas
Calefacción:
Central / Heat Pump / Zoned
precio por sq. medidor:
$236
Enfriamiento:
Central Air / Zoned
HOA:
$312
Más hechos y características
  • Piso

    • Carpet

    • Ceramic Tile

    • Hardwood

    Calefacción

    • Central

    • Heat Pump

    • Zoned

    Enfriamiento

    • Central Air

    • Zoned

    Accesorios

    • Cooktop

    • Dishwasher

    • Disposal

    • Electric Water Heater

    • Microwave

    • Refrigerator

    Otras características interiores

    • Ceiling Fan(s)

    • Crown Molding

    • Eating Space In Kitchen

    • Kitchen/Family Room Combo

    • Primary Bedroom Main Floor

    • Solid Wood Cabinets

    • Split Bedroom

    • Stone Counters

    • Walk-In Closet(s)

    • Window Treatments

    Dormitorios y baños

    • Dormitorios: 4

    • Baños completos: 3

  • Propiedad

    • Pisos: Two

    • Piscina Privada: Si

    • Características Exteriores: Irrigation System / Rain Gutters / Sliding Doors

    Lote

    • Lote: 0.26 Hectáreas

    Otra Información de Propiedad

    • Número de Parcela: 05203050600000150

    • Zonificación: PUD

  • Tipo y estilo

    • Tipo de propiedad: Residential

    • Subtipo de propiedad: Single Family Residence

  • Utilidad

    • Cable Connected

    • Electricity Connected

    • Public

  • Otra información financiera

    • HOA: $312

    • Frecuencia HOA: Quarterly

    • Importe anual de impuestos: $5,391

  • Detalles de la fuente

    • MLS ID: O6331708

    Otros hechos

    • Materiales de construcción: Block / Stucco / Wood Frame

    • Detalles de la fundación: Slab

    • Características de lavandería: Inside / Laundry Room

    • Características del lote: City Lot / Near Golf Course

    • Características del patio y el porche: Covered / Enclosed / Patio / Porch / Screened

    • Características de la piscina: Gunite / In Ground / Salt Water / Screen Enclosure

    • Características de la ventana: Blinds / Rods

    • Caras de dirección: South

    • Estilo arquitectónico: Traditional

    • Espacios de garaje: 2

    • Garaje adjunto: Si

    • Garaje: Si

    • Salón: 2861

    • Fuente de agua: Public

    • Nombre de subdivisión: TIMACUAN UNIT 17

Casas similares

847 ASHBROOKE COURT placeholder 847 ASHBROOKE COURT
Nuevo
Activo con contrato
Casa
$757,000
4 camas 2 baños 2,258 sqft
847 ASHBROOKE COURT
881 PICKFAIR TERRACE placeholder 881 PICKFAIR TERRACE
Nuevo
Activo con contrato
Casa
$617,000
4 camas 3 baños 2,214 sqft
881 PICKFAIR TERRACE
5415 FAWN LAKE COURT placeholder 5415 FAWN LAKE COURT
1 días
Activo con contrato
Casa
$829,000
3 camas 3 baños 2,866 sqft
5415 FAWN LAKE COURT
1254 CHESSINGTON CIRCLE placeholder 1254 CHESSINGTON CIRCLE
3 días
Activo con contrato
Casa
$560,000
3 camas 2 baños 1,552 sqft
1254 CHESSINGTON CIRCLE
204 TEAKWOOD COURT placeholder 204 TEAKWOOD COURT
7 días
Activo con contrato
Casa
$475,000
3 camas 2 baños 1,728 sqft
204 TEAKWOOD COURT
860 PRESERVE TERRACE placeholder 860 PRESERVE TERRACE
+$10K (2025/12/04)
Activo con contrato
Casa
$839,999
4 camas 3 baños 2,676 sqft
860 PRESERVE TERRACE
908 GARDEN GLEN LOOP placeholder 908 GARDEN GLEN LOOP
34 días
Activo con contrato
Casa
$525,000
4 camas 2 baños 2,142 sqft
908 GARDEN GLEN LOOP
1715 W LAKE MARY BOULEVARD placeholder 1715 W LAKE MARY BOULEVARD
-$40K (2025/11/06)
Activo con contrato
Casa
$629,000
4 camas 3 baños 3,118 sqft
1715 W LAKE MARY BOULEVARD

The multiple listing information is provided by the Stellar MLS from a copyrighted compilation of listings. The compilation of listings and each individual listing are ©2025-present Stellar MLS. All Rights Reserved. The information provided is for consumers' personal, noncommercial use and may not be used for any purpose other than to identify prospective properties consumers may be interested in purchasing. All properties are subject to prior sale or withdrawal. All information provided is deemed reliable but is not guaranteed accurate, and should be independently verified. Listing courtesy of: KELLER WILLIAMS ADVANTAGE REALTY