Contacto
Cuéntenos sobre sus necesidades

8725 QUAIL RUN DRIVE

Casa En Venta
$580,000

BTC: 8.60956044

ETH: 302.08333333

9 días
3 camas
3 baños
1,444 sqft
Est. Rango de ventas estimado: $0 - $0
$0

Visión general

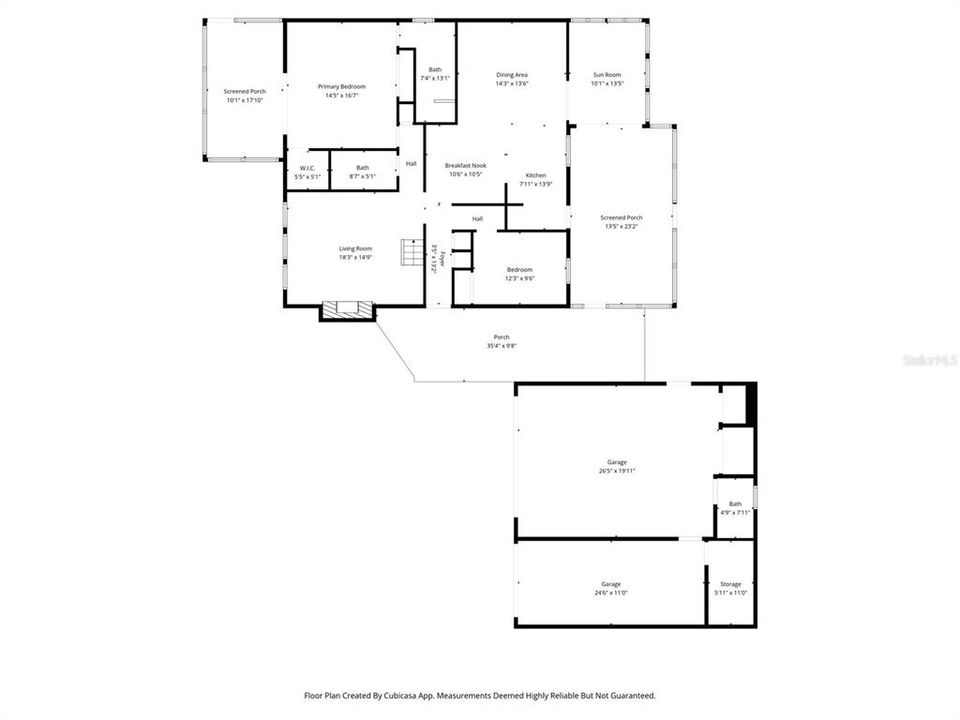
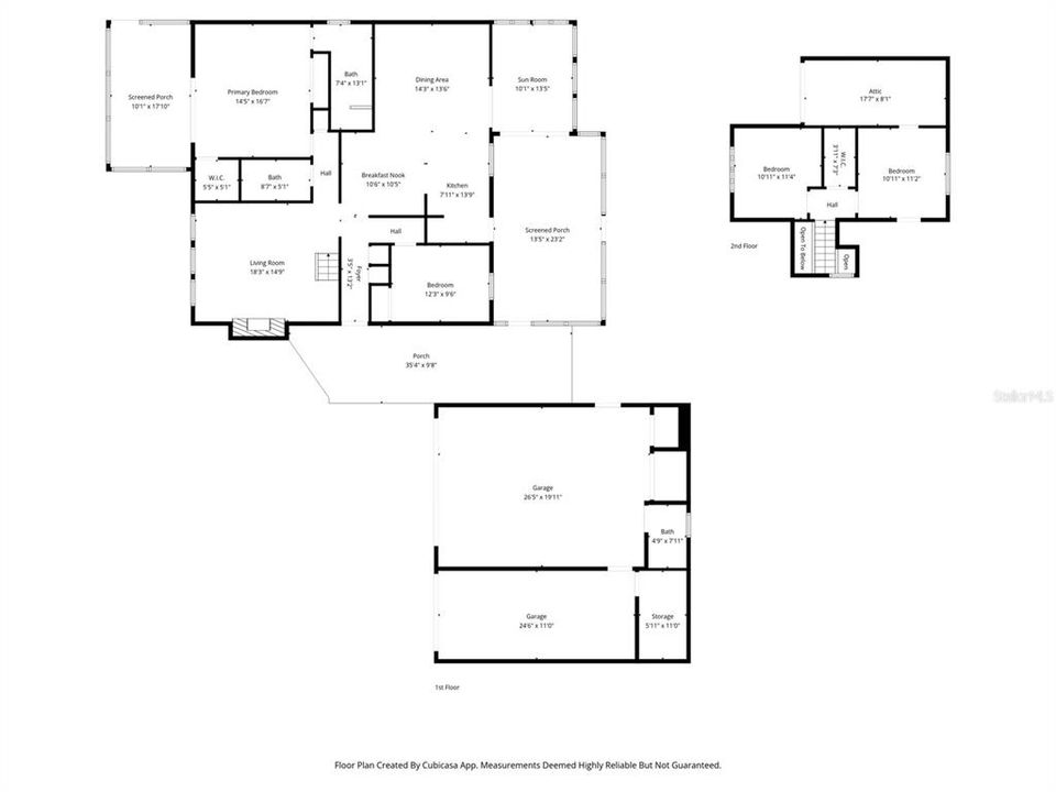
Welcome to this light and bright 3-bedroom, 3-bath, two-story home set on a peaceful and private 1.71-acre wooded lot. Surrounded by nature and wildlife, this property offers a quiet, serene setting while still providing the space and functionality today’s buyers are looking for. The home features a spacious 3-car garage, a screened porch for enjoying the outdoors year-round, and an enclosed Florida room filled with abundant natural light. Inside, the kitchen is equipped with stainless steel appliances, a double oven, and generous workspace — ideal for both everyday living and entertaining. A cozy wood-burning stove adds warmth and charm, creating an inviting atmosphere throughout the main living areas. The primary bedroom en suite offers dual vanities and a walk-in shower. With its combination of privacy, natural beauty, and thoughtful features, this home is perfect for those seeking a tranquil retreat with modern comforts.

Ubicación

Hechos y características

Tipo:
Residential
Estacionamiento:
Sin datos
Año de construcción:
1985
Lote:
1.71 Hectáreas
Calefacción:
Central / Electric
precio por sq. medidor:
$402
Enfriamiento:
Central Air
HOA:
Sin datos
Más hechos y características
  • Piso

    • Carpet

    • Tile

    Calefacción

    • Central

    • Electric

    Enfriamiento

    • Central Air

    Accesorios

    • Dishwasher

    • Range

    • Range Hood

    • Refrigerator

    • Water Softener

    Otras características interiores

    • Ceiling Fan(s)

    • Eating Space In Kitchen

    • Primary Bedroom Main Floor

    • Skylight(s)

    • Split Bedroom

    • Vaulted Ceiling(s)

    • Walk-In Closet(s)

    Dormitorios y baños

    • Dormitorios: 3

    • Baños completos: 3

  • Propiedad

    • Pisos: Two

    • Características Exteriores: Lighting / Rain Gutters / Sliding Doors

    Lote

    • Lote: 1.71 Hectáreas

    Otra Información de Propiedad

    • Número de Parcela: 1925260030000000320

    • Zonificación: AR

  • Tipo y estilo

    • Tipo de propiedad: Residential

    • Subtipo de propiedad: Single Family Residence

  • Utilidad

    • Cable Available

    • Electricity Connected

  • Otra información financiera

    • Importe anual de impuestos: $2,711

  • Detalles de la fuente

    • MLS ID: A4676431

    Otros hechos

    • Materiales de construcción: Wood Frame / Wood Siding

    • Detalles de la fundación: Slab

    • Características de la chimenea: Wood Burning

    • Características de lavandería: In Garage / Laundry Closet

    • Características del patio y el porche: Enclosed / Front Porch / Rear Porch / Screened

    • Caras de dirección: Southeast

    • Otras estructuras: Shed(s)

    • Hogar: Si

    • Espacios de garaje: 3

    • Garaje adjunto: Si

    • Garaje: Si

    • Salón: 1444

    • Fuente de agua: Well

    • Nombre de subdivisión: QUAIL RUN ESTATES

Casas similares

26334 LAWRENCE AVENUE placeholder 26334 LAWRENCE AVENUE
27 días
En Venta
Casa
$595,000
3 camas 2 baños 2,308 sqft
26334 LAWRENCE AVENUE
26838 DEACON LOOP placeholder 26838 DEACON LOOP
28 días
En Venta
Casa
$550,000
3 camas 3 baños 2,282 sqft
26838 DEACON LOOP
27380 GOLF COURSE LOOP placeholder 27380 GOLF COURSE LOOP
32 días
En Venta
Casa
$650,000
4 camas 2 baños 1,900 sqft
27380 GOLF COURSE LOOP
6227 GENTLE BEN CIRCLE placeholder 6227 GENTLE BEN CIRCLE
34 días
En Venta
Casa
$450,000
3 camas 2 baños 2,272 sqft
6227 GENTLE BEN CIRCLE
28412 RICE ROAD placeholder 28412 RICE ROAD
48 días
En Venta
Casa
$424,900
3 camas 2 baños 1,512 sqft
28412 RICE ROAD
27944 GREEN WILLOW RUN placeholder 27944 GREEN WILLOW RUN
-$900 (2026/01/02)
En Venta
Casa
$499,000
3 camas 2 baños 1,684 sqft
27944 GREEN WILLOW RUN
 placeholder
-$30K (2025/11/25)
En Venta
Casa
$530,000
5 camas 3 baños 2,605 sqft
27211 HAWKS NEST CIRCLE placeholder 27211 HAWKS NEST CIRCLE
-$90K (2025/12/19)
En Venta
Casa
$535,000
4 camas 3 baños 2,665 sqft
27211 HAWKS NEST CIRCLE

The multiple listing information is provided by the Stellar MLS from a copyrighted compilation of listings. The compilation of listings and each individual listing are ©2026-present Stellar MLS. All Rights Reserved. The information provided is for consumers' personal, noncommercial use and may not be used for any purpose other than to identify prospective properties consumers may be interested in purchasing. All properties are subject to prior sale or withdrawal. All information provided is deemed reliable but is not guaranteed accurate, and should be independently verified. Listing courtesy of: 365 REALTY GROUP INC