Contacto
Cuéntenos sobre sus necesidades

9089 SE 177TH BELMONT PLACE

Casa En Venta
$299,999

BTC: 3.36155932

ETH: 149.99950000

Nuevo
2 camas
2 baños
1,283 sqft
Est. Rango de ventas estimado: $0 - $0
$0

Visión general

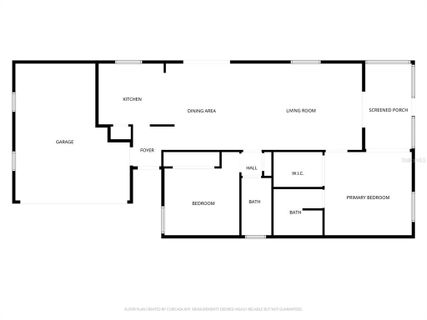
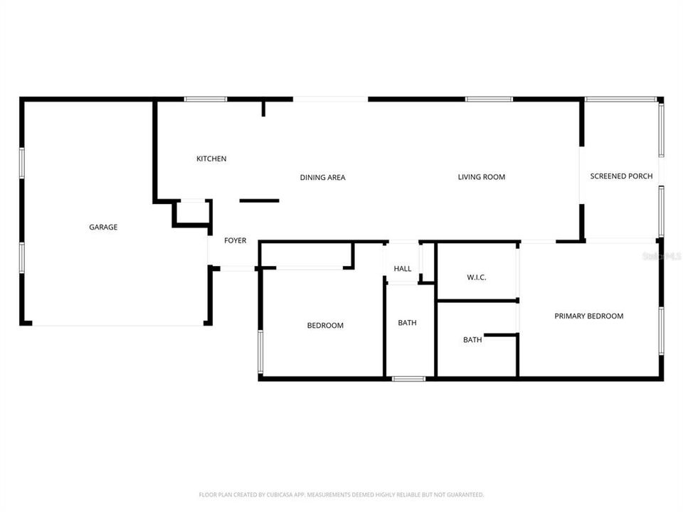
Step into this exquisite 2-bedroom, 2-bathroom Marathon Courtyard Villa in the coveted Fairlawn Villas of Springdale. Nestled on a rare corner lot with gated access on both sides, this home offers exceptional privacy and an expansive yard, perfect for outdoor enjoyment or entertaining. The interior boasts bright, open-concept living and dining spaces with laminate flooring, a ceiling fan, and seamless flow. The kitchen features a deep pantry, laminate countertops, and ample storage. The primary suite delights with luxury vinyl flooring, an oversized walk-in closet, ceiling fan, and sliding doors to the screened lanai, while the ensuite bath impresses with a tiled walk-in shower with pebble flooring and modern finishes. The guest suite is equally inviting with vinyl floors, built-in closet, and elegant bath finishes. Additional highlights include a car garage with painted floors, workbench, laundry tub, and Samsung washer/dryer, along with recent upgrades: 2020 roof, 2023 HVAC, 2022 Defender water heater. Ideally located near country clubs, recreation centers, shopping, dining, and medical facilities, this villa combines comfort, convenience, and Florida-style living at its finest.

Ubicación

Hechos y características

Tipo:
Residential
Estacionamiento:
Sin datos
Año de construcción:
2001
Lote:
0.12 Hectáreas
Calefacción:
Central
precio por sq. medidor:
$234
Enfriamiento:
Central Air
HOA:
Sin datos
Más hechos y características
  • Piso

    • Laminate

    • Tile

    Calefacción

    • Central

    Enfriamiento

    • Central Air

    Accesorios

    • Dishwasher

    • Dryer

    • Microwave

    • Range

    • Refrigerator

    • Washer

    Otras características interiores

    • Ceiling Fan(s)

    • Kitchen/Family Room Combo

    • L Dining

    • Living Room/Dining Room Combo

    • Open Floorplan

    • Primary Bedroom Main Floor

    • Solid Surface Counters

    • Solid Wood Cabinets

    • Walk-In Closet(s)

    Dormitorios y baños

    • Dormitorios: 2

    • Baños completos: 2

  • Propiedad

    • Pisos: One

    • Características Exteriores: Garden / Irrigation System / Private Entrance / Private Yard / Rain Gutters / Sidewalk / Storage

    Lote

    • Lote: 0.12 Hectáreas

    Otra Información de Propiedad

    • Número de Parcela: 6709001000

    • Zonificación: PUD

  • Tipo y estilo

    • Tipo de propiedad: Residential

    • Subtipo de propiedad: Single Family Residence

  • Utilidad

    • Electricity Available

    • Public

  • Otra información financiera

    • Importe anual de impuestos: $3,043

  • Detalles de la fuente

    • MLS ID: O6369100

    Otros hechos

    • Materiales de construcción: Vinyl Siding

    • Detalles de la fundación: Slab

    • Características de lavandería: Inside

    • Caras de dirección: South

    • Espacios de garaje: 1

    • Garaje adjunto: Si

    • Garaje: Si

    • Salón: 1283

    • Fuente de agua: Public

    • Tamaño de la parcela: 67 x 80

    • Nombre de subdivisión: COURTYARD VILLAS

Casas similares

11351 SE 175TH PLACE placeholder 11351 SE 175TH PLACE
Nuevo
En Venta
Casa
$279,900
3 camas 2 baños 1,717 sqft
11351 SE 175TH PLACE
923 CAMINO DEL REY DRIVE placeholder 923 CAMINO DEL REY DRIVE
Nuevo
En Venta
Casa
$349,000
3 camas 2 baños 1,527 sqft
923 CAMINO DEL REY DRIVE
2306 OAK BEND PLACE placeholder 2306 OAK BEND PLACE
2 días
En Venta
Casa
$300,000
2 camas 2 baños 1,156 sqft
2306 OAK BEND PLACE
3433 WORTH CIRCLE placeholder 3433 WORTH CIRCLE
3 días
En Venta
Casa
$359,000
3 camas 2 baños 1,392 sqft
3433 WORTH CIRCLE
8931 SE 156TH STREET placeholder 8931 SE 156TH STREET
4 días
En Venta
Casa
$299,900
4 camas 2 baños 1,642 sqft
8931 SE 156TH STREET
3468 ROANOKE STREET placeholder 3468 ROANOKE STREET
4 días
En Venta
Casa
$265,000
2 camas 2 baños 1,182 sqft
3468 ROANOKE STREET
15649 SE 88 AVENUE placeholder 15649 SE 88 AVENUE
4 días
En Venta
Casa
$338,050
3 camas 2 baños 1,511 sqft
15649 SE 88 AVENUE
392 ROSE CROFT TERRACE placeholder 392 ROSE CROFT TERRACE
4 días
En Venta
Casa
$298,000
2 camas 2 baños 1,188 sqft
392 ROSE CROFT TERRACE

The multiple listing information is provided by the Stellar MLS from a copyrighted compilation of listings. The compilation of listings and each individual listing are ©2025-present Stellar MLS. All Rights Reserved. The information provided is for consumers' personal, noncommercial use and may not be used for any purpose other than to identify prospective properties consumers may be interested in purchasing. All properties are subject to prior sale or withdrawal. All information provided is deemed reliable but is not guaranteed accurate, and should be independently verified. Listing courtesy of: PREFERRED RE BROKERS III