Contacto
Cuéntenos sobre sus necesidades

9235 NW 11TH PLACE

Casa Activo con contrato
$414,327

BTC: 6.09304412

ETH: 4,143.27000000

2 días
4 camas
2 baños
2,221 sqft
Est. Rango de ventas estimado: $0 - $0
$0

Visión general

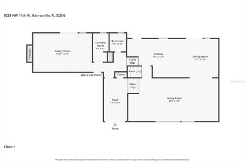
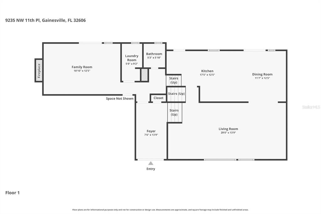
Welcome to 9235 NW 11th Place, a beautifully maintained 4-bedroom, 2.5-bath home situated on just over half an acre in the quiet, non-HOA community of Oak Crest. Nestled on a peaceful cul-de-sac, this property offers outstanding privacy and space, enhanced by mature trees and a generously sized lot. Inside, you’ll find a thoughtfully designed multi-level floor plan highlighted by an elegant main living area. A warm and inviting lower-level den features a wood-burning fireplace, creating the perfect spot to relax and unwind. The kitchen opens to a bright eat-in dining area with views of the screened-in back patio—ideal for enjoying indoor-outdoor living year-round. The spacious primary suite serves as a private retreat, complete with a spacious walk-in closet and an en-suite bathroom featuring both a combination tub and shower. Three additional bedrooms offer ample space for family, guests, or a home office. Additional conveniences include an interior laundry room and a wide cul-de-sac lot that provides extra separation from neighbors, along with a large cleared yard perfect for outdoor activities or gardening. Located in desirable west Gainesville, Oak Crest is zoned for highly rated schools and is just minutes from shopping, dining, and entertainment in the Jonesville and Tioga areas. With quick access to I-75 via Newberry Road, and close proximity to UF Health/Shands, North Florida Regional Medical Center, and the University of Florida, this home offers both comfort and convenience. The property may be offered, at the buyer’s request, with a comprehensive home warranty covering appliances, electrical, AC, and plumbing systems, subject to an acceptable offer. This is a rare opportunity to own a well-cared-for home in a highly sought-after location.

Ubicación

Hechos y características

Tipo:
Residential
Estacionamiento:
Sin datos
Año de construcción:
1971
Lote:
0.53 Hectáreas
Calefacción:
Electric / Heat Pump
precio por sq. medidor:
$187
Enfriamiento:
Central Air
HOA:
Sin datos
Más hechos y características
  • Piso

    • Carpet

    • Luxury Vinyl

    • Tile

    Calefacción

    • Electric

    • Heat Pump

    Enfriamiento

    • Central Air

    Accesorios

    • Dishwasher

    • Range

    • Refrigerator

    Otras características interiores

    • Ceiling Fan(s)

    Dormitorios y baños

    • Dormitorios: 4

    • Baños: 1

    • Baños completos: 2

  • Propiedad

    • Pisos: Multi/Split

    • Características Exteriores: Rain Gutters

    Lote

    • Lote: 0.53 Hectáreas

    Otra Información de Propiedad

    • Número de Parcela: 06304011000

    • Zonificación: R-1A

  • Tipo y estilo

    • Tipo de propiedad: Residential

    • Subtipo de propiedad: Single Family Residence

  • Utilidad

    • BB/HS Internet Available

    • Cable Available

    • Electricity Connected

    • Sewer Connected

    • Water Connected

  • Otra información financiera

    • Importe anual de impuestos: $3,963

  • Detalles de la fuente

    • MLS ID: GC538953

    Otros hechos

    • Materiales de construcción: Brick / Wood Siding

    • Detalles de la fundación: Slab

    • Características de la chimenea: Wood Burning

    • Características de lavandería: Laundry Room

    • Caras de dirección: North

    • Hogar: Si

    • Espacios de garaje: 2

    • Garaje adjunto: Si

    • Garaje: Si

    • Salón: 2221

    • Fuente de agua: Public

    • Nombre de subdivisión: OAK CREST ESTATE

Casas similares

7008 NW 44TH PLACE placeholder 7008 NW 44TH PLACE
Nuevo
Activo con contrato
Casa
$420,000
3 camas 2 baños 1,878 sqft
7008 NW 44TH PLACE
1435 NW 116TH WAY placeholder 1435 NW 116TH WAY
3 días
Activo con contrato
Casa
$479,000
4 camas 2 baños 2,087 sqft
1435 NW 116TH WAY
1436 NW 117TH TERRACE placeholder 1436 NW 117TH TERRACE
3 días
Activo con contrato
Casa
$374,999
4 camas 2 baños 2,476 sqft
1436 NW 117TH TERRACE
2030 NW 54TH TERRACE placeholder 2030 NW 54TH TERRACE
4 días
Activo con contrato
Casa
$325,000
3 camas 2 baños 1,386 sqft
2030 NW 54TH TERRACE
8118 SW 1ST PLACE placeholder 8118 SW 1ST PLACE
4 días
Activo con contrato
Casa
$434,937
4 camas 2 baños 2,250 sqft
8118 SW 1ST PLACE
1415 NW 116TH WAY placeholder 1415 NW 116TH WAY
5 días
Activo con contrato
Casa
$325,000
3 camas 2 baños 1,770 sqft
1415 NW 116TH WAY
2418 NW 104TH COURT placeholder 2418 NW 104TH COURT
6 días
Activo con contrato
Casa
$368,000
3 camas 2 baños 1,608 sqft
2418 NW 104TH COURT
1415 SW 68TH TERRACE placeholder 1415 SW 68TH TERRACE
7 días
Activo con contrato
Casa
$410,000
3 camas 2 baños 1,695 sqft
1415 SW 68TH TERRACE

The multiple listing information is provided by the Stellar MLS from a copyrighted compilation of listings. The compilation of listings and each individual listing are ©2026-present Stellar MLS. All Rights Reserved. The information provided is for consumers' personal, noncommercial use and may not be used for any purpose other than to identify prospective properties consumers may be interested in purchasing. All properties are subject to prior sale or withdrawal. All information provided is deemed reliable but is not guaranteed accurate, and should be independently verified. Listing courtesy of: TIOGA REALTY LLC