Contacto
Cuéntenos sobre sus necesidades

9240 PINE COVE DRIVE

Casa En Venta
$1,750,000

BTC: 58.33333333

ETH: 875.00000000

50 días
Frente al mar
3 camas
4 baños
2,806 sqft
Est. Rango de ventas estimado: $0 - $0
$0

Visión general

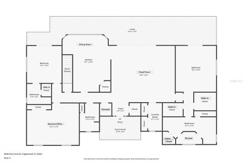
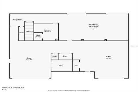
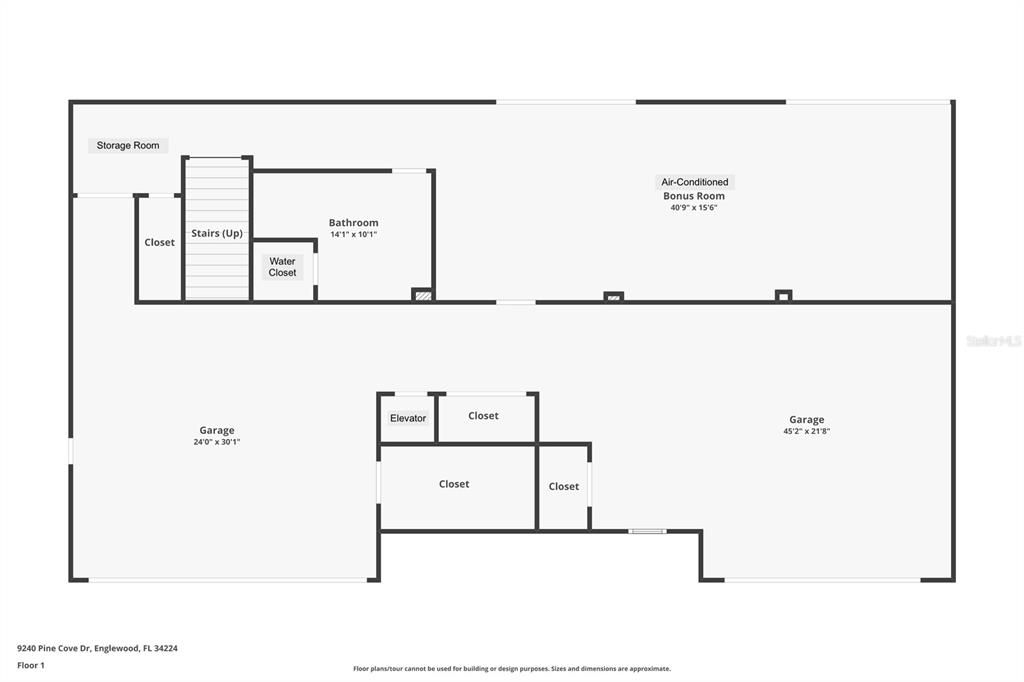
Completed in 2021, this CUSTOM-DESIGNED WATERFRONT RETREAT offers the rare opportunity to own a like-new, thoughtfully crafted home without the wait, cost and stress of building from scratch. Positioned on a DEEP-WATER CANAL with QUICK ACCESS TO THE GULF, this property offers every Boater’s dream home along with the necessary PEACE OF MIND that comes with an newer, quality build. Every detail of this property was carefully planned, combining modern elegance with functional living spaces tailored to optimize every square foot and outfitted with a WHOLE HOME ELEVATOR for maximum access and enjoyment. The spacious layout showcases a COFFERED CEILING GREAT ROOM with large pocket sliding glass doors that effortlessly flows to the whole home length lanai. The GOURMET KITCHEN has ample counterspace and cabinetry with closet pantry, upgraded appliances, island and overlooks the large dining nook with picture window. A SIZEABLE PRIMARY SUITE is tucked on the south side of the home with French door access outside, two walk-in closets and an ensuite bathroom sure to impress. This main floor also holds the second bedroom with full ensuite bathroom and French door outside access, oversized third bedroom, third bathroom, laundry room and multiple custom closets. NOT TO BE OVERLOOKED IS DETAILS SUCH AS tray ceilings, crown molding, solid core doors throughout, luxury vinyl plank flooring, fully tiled showers and more! The outdoor space is just as impressive with an expansive covered deck overlooking the tranquil pool and canal, providing a peaceful setting for evening relaxation or spacious gatherings along with a front porch that offers peek-a-boo views of the bay and gorgeous sunset skies. DOWNSTAIRS, your storage dreams are fulfilled with a FOUR-CAR GARAGE, oversized storage closet and an additional storage room with second refrigerator. A large, full fourth bathroom for this level provides convenience along with the additional 800+ SQUARE FOOT AIR-CONDITIONED BONUS ROOM perfect for a second living room, home gym, additional guest sleeping space and more! With two sets of sliding glass doors to the pool area, this is the extra breathing space your family has been looking for! The HEATED, SALTWATER POOL AND SPA features a sunshelf with umbrella holder and pebble tec finish – all framed by an expansive concrete paver deck, outdoor wetbar and two-story aluminum screen enclosure (20/20 no-see-um screen.) 100 FEET OF CONCRETE SEAWALL features water and power at both ends, a Trex dock and COVERED 10,000 POUND BOAT LIFT. Aside from the home itself – the best thing this property offers is location. Pine Cove is a friendly, quiet neighborhood tucked away on a dead-end street and just minutes by boat to the area’s best fishing, sandbars and waterfront restaurants. NO BRIDGES TO THE GULF. ADDITIONAL FEATURES to note include the circular paver driveway, white vinyl privacy fence, generator plug in, sprinkler system, whole home water filtration system, metal roof, cement siding, IMPACT WINDOWS AND DOORS, 80-gallon hybrid water heater with heat pump and MORE! Built with quality and care, this home eliminates the delays and uncertainties of new construction while delivering instant gratification. Call today for showing and a fully detailed feature list!

Ubicación

Hechos y características

Tipo:
Residential
Estacionamiento:
Bath In Garage / Boat / Circular Driveway / Covered / Driveway / Garage Door Opener / Ground Level / Oversized / RV Parking / Under Building / Workshop in Garage
Año de construcción:
2020
Lote:
0.26 Hectáreas
Calefacción:
Electric / Heat Pump
precio por sq. medidor:
$624
Enfriamiento:
Central Air / Mini-Split Unit(s)
HOA:
Sin datos
Más hechos y características
  • Piso

    • Luxury Vinyl

    • Porcelain Tile

    Calefacción

    • Electric

    • Heat Pump

    Enfriamiento

    • Central Air

    • Mini-Split Unit(s)

    Accesorios

    • Bar Fridge

    • Convection Oven

    • Dishwasher

    • Disposal

    • Dryer

    • Electric Water Heater

    • Exhaust Fan

    • Microwave

    • Other

    • Range

    • Range Hood

    • Refrigerator

    • Washer

    • Water Filtration System

    Otras características interiores

    • Accessibility Features

    • Ceiling Fan(s)

    • Coffered Ceiling(s)

    • Crown Molding

    • Eating Space In Kitchen

    • Elevator

    • High Ceilings

    • Primary Bedroom Main Floor

    • Solid Wood Cabinets

    • Split Bedroom

    • Stone Counters

    • Thermostat

    • Tray Ceiling(s)

    • Walk-In Closet(s)

    • Wet Bar

    • Window Treatments

    Dormitorios y baños

    • Dormitorios: 3

    • Baños completos: 4

  • Estacionamiento

    • Bath In Garage

    • Boat

    • Circular Driveway

    • Covered

    • Driveway

    • Garage Door Opener

    • Ground Level

    • Oversized

    • RV Parking

    • Under Building

    • Workshop in Garage

    Propiedad

    • Pisos: Two

    • Piscina Privada: Si

    • Características Exteriores: Dog Run / French Doors / Irrigation System / Private Mailbox / Rain Gutters / Sidewalk / Sprinkler Metered / Storage

    Lote

    • Lote: 0.26 Hectáreas

    Otra Información de Propiedad

    • Número de Parcela: 412021183006

    • Zonificación: RSF3.5

  • Tipo y estilo

    • Tipo de propiedad: Residential

    • Subtipo de propiedad: Single Family Residence

  • Utilidad

    • BB/HS Internet Available

    • Cable Available

    • Electricity Connected

    • Public

    • Sewer Connected

    • Water Connected

  • Otra información financiera

    • Importe anual de impuestos: $13,330

  • Detalles de la fuente

    • MLS ID: D6144168

    Otros hechos

    • Materiales de construcción: Block / Cement Siding / HardiPlank Type

    • Detalles de la fundación: Slab

    • Características de lavandería: Inside / Laundry Room / Upper Level

    • Características del lote: In County / Near Golf Course / Near Marina / Street Dead-End

    • Características del patio y el porche: Covered / Deck / Front Porch / Rear Porch / Screened

    • Características de la piscina: Child Safety Fence / Gunite / Heated / In Ground / Lap / Salt Water / Screen Enclosure

    • Características de la ventana: Double Pane Windows / Storm Window(s) / Window Treatments

    • Caras de dirección: West

    • Estilo arquitectónico: Custom / Elevated / Key West

    • Frente al mar: Si

    • Espacios de garaje: 4

    • Garaje adjunto: Si

    • Garaje: Si

    • Salón: 2806

    • Fuente de agua: Public

    • Tamaño de la parcela: 100 x 113

    • Nombre de subdivisión: PINE COVE

Casas similares

396 N GULF BOULEVARD placeholder 396 N GULF BOULEVARD
-$30K (2025/12/03)
En Venta
Casa
$1,265,000
3 camas 2 baños 1,484 sqft
396 N GULF BOULEVARD
90 N GULF BOULEVARD placeholder 90 N GULF BOULEVARD
20 días
En Venta
Casa
$1,395,000
3 camas 2 baños 1,500 sqft
90 N GULF BOULEVARD
3060 PLACIDA ROAD placeholder 3060 PLACIDA ROAD
21 días
En Venta
Comercial
$2,100,000
0 room(s) 3,340 sqft
3060 PLACIDA ROAD
430 N GULF BOULEVARD placeholder 430 N GULF BOULEVARD
21 días
En Venta
Casa
$1,395,000
3 camas 3 baños 1,772 sqft
430 N GULF BOULEVARD
6900 PALM ISLAND DRIVE placeholder 6900 PALM ISLAND DRIVE
23 días
En Venta
Casa
$1,500,000
3 camas 3 baños 2,462 sqft
6900 PALM ISLAND DRIVE
9300 GRIGGS ROAD placeholder 9300 GRIGGS ROAD
23 días
En Venta
Casa
$1,998,000
3 camas 2 baños 2,332 sqft
9300 GRIGGS ROAD
3155 WATERSIDE DRIVE placeholder 3155 WATERSIDE DRIVE
27 días
En Venta
Multifamiliar
$1,399,000
0 room(s) 3,452 sqft
3155 WATERSIDE DRIVE
391 KETTLE HARBOR DRIVE placeholder 391 KETTLE HARBOR DRIVE
37 días
En Venta
Casa
$1,790,000
3 camas 2 baños 1,691 sqft
391 KETTLE HARBOR DRIVE

The multiple listing information is provided by the Stellar MLS from a copyrighted compilation of listings. The compilation of listings and each individual listing are ©2025-present Stellar MLS. All Rights Reserved. The information provided is for consumers' personal, noncommercial use and may not be used for any purpose other than to identify prospective properties consumers may be interested in purchasing. All properties are subject to prior sale or withdrawal. All information provided is deemed reliable but is not guaranteed accurate, and should be independently verified. Listing courtesy of: KELLER WILLIAMS ISLAND LIFE REAL ESTATE