Contacto
Cuéntenos sobre sus necesidades

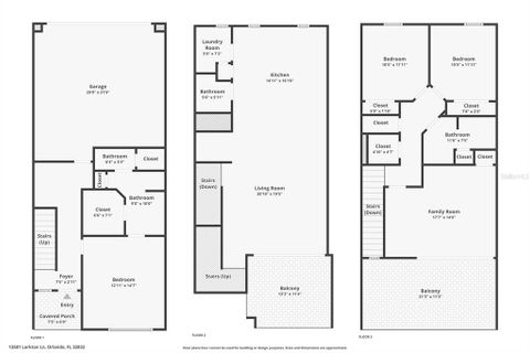
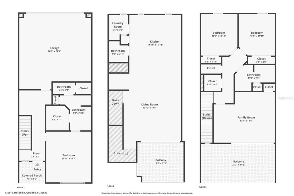
13581 LARKTON LANE

Adosados En Renta
$3,500

BTC: 0.05267118

ETH: 1.77747984

/mo
1 días
4 camas
2 baños
2,310 sqft
Est. Rango de ventas estimado: $0 - $0
$0

Visión general

Stunning Three-Story Townhome in Gated Eagle Creek | Lake Nona Area Welcome to this beautifully maintained three-story townhome located in the pristine, gated community of Eagle Creek near Lake Nona. Filled with abundant natural light, this thoughtfully designed home offers a functional layout ideal for modern living. The first floor features a private primary suite, creating a quiet retreat with separation from the main living areas. On the second floor, you’ll find an open-concept kitchen and living space, perfect for entertaining, along with a dedicated nook ideal for a desk or home office. The kitchen showcases a large center island, bright cabinetry, stainless steel appliances, and ample storage. This level also includes a half bath, laundry room, and access to a private balcony. The third floor offers three additional bedrooms and another balcony, where you can enjoy beautiful sunset views. Eagle Creek is a master-planned community known for its championship golf course rated 4 1/2 stars by Golf Digest, resort-style amenities, including multiple playgrounds, tennis and basketball courts, a fitness center, a splash pool, and an infinity pool. Conveniently located near top-rated schools, restaurants, grocery stores, banks, hospitals, Lake Nona, Downtown Orlando, Medical City, Orlando International Airport, and major highways including 417 and 528, providing easy access to the beaches and beyond. This home offers the perfect blend of comfort, convenience, and lifestyle in one of Central Florida’s most sought-after communities.

Ubicación

Hechos y características

Tipo:
Residential Lease
Estacionamiento:
Sin datos
Año de construcción:
2022
Lote:
0.05 Hectáreas
Calefacción:
Central
precio por sq. medidor:
$2
Enfriamiento:
Central Air
HOA:
Sin datos
Más hechos y características
  • Piso

    • Carpet

    • Tile

    Calefacción

    • Central

    Enfriamiento

    • Central Air

    Accesorios

    • Convection Oven

    • Cooktop

    • Dishwasher

    • Dryer

    • Electric Water Heater

    • Microwave

    • Range Hood

    • Refrigerator

    • Washer

    Otras características interiores

    • Ceiling Fan(s)

    • Kitchen/Family Room Combo

    • Open Floorplan

    • Primary Bedroom Main Floor

    • Stone Counters

    • Thermostat

    • Walk-In Closet(s)

    • Window Treatments

    Dormitorios y baños

    • Dormitorios: 4

    • Baños: 1

    • Baños completos: 2

  • Propiedad

    • Pisos: Three Or More

    Lote

    • Lote: 0.05 Hectáreas

    Otra Información de Propiedad

    • Número de Parcela: 322431230301830

  • Tipo y estilo

    • Tipo de propiedad: Residential Lease

    • Subtipo de propiedad: Townhouse

  • Utilidad

    • BB/HS Internet Available

    • Electricity Connected

    • Sewer Connected

    • Street Lights

    • Water Connected

  • Detalles de la fuente

    • MLS ID: O6371366

    Otros hechos

    • Características de lavandería: Laundry Room

    • Características del patio y el porche: Covered / Deck

    • Espacios de garaje: 2

    • Garaje adjunto: Si

    • Garaje: Si

    • Salón: 2310

    • Fuente de agua: Public

    • Nombre de subdivisión: EAGLE CRK VILLAGE K PH 1B

Casas similares

9894 MERE PARKWAY placeholder 9894 MERE PARKWAY
Nuevo
En Renta
Casa
$3,500 /mo
4 camas 3 baños 2,267 sqft
9894 MERE PARKWAY
10270 PEARSON AVENUE placeholder 10270 PEARSON AVENUE
Nuevo
En Renta
Casa
$2,999 /mo
3 camas 2 baños 2,053 sqft
10270 PEARSON AVENUE
13304 LEGGETT ALLEY placeholder 13304 LEGGETT ALLEY
1 días
En Renta
Casa
$3,850 /mo
4 camas 3 baños 2,724 sqft
13304 LEGGETT ALLEY
13703 LIPPMAN ALLEY placeholder 13703 LIPPMAN ALLEY
1 días
En Renta
Casa
$3,850 /mo
4 camas 3 baños 2,343 sqft
13703 LIPPMAN ALLEY
3092 ELLA WAY placeholder 3092 ELLA WAY
2 días
En Renta
Casa
$3,995 /mo
5 camas 3 baños 3,385 sqft
3092 ELLA WAY
3115 ADDISON BOULEVARD placeholder 3115 ADDISON BOULEVARD
3 días
En Renta
Casa
$2,695 /mo
4 camas 2 baños 2,185 sqft
3115 ADDISON BOULEVARD
7909 LAUREATE BOULEVARD placeholder 7909 LAUREATE BOULEVARD
4 días
En Renta
Casa
$3,495 /mo
3 camas 2 baños 1,899 sqft
7909 LAUREATE BOULEVARD
13779 ELIOT AVENUE placeholder 13779 ELIOT AVENUE
4 días
En Renta
Casa
$3,200 /mo
3 camas 2 baños 1,955 sqft
13779 ELIOT AVENUE

The multiple listing information is provided by the Stellar MLS from a copyrighted compilation of listings. The compilation of listings and each individual listing are ©2026-present Stellar MLS. All Rights Reserved. The information provided is for consumers' personal, noncommercial use and may not be used for any purpose other than to identify prospective properties consumers may be interested in purchasing. All properties are subject to prior sale or withdrawal. All information provided is deemed reliable but is not guaranteed accurate, and should be independently verified. Listing courtesy of: CHARLES RUTENBERG REALTY ORLANDO