Contacto
Cuéntenos sobre sus necesidades

17260 ENGLISH CHESTNUT WAY

Adosados En Venta
$299,990

BTC: 3.45411629

ETH: 149.99500000

-$13K (2025/12/18)
3 días
3 camas
2 baños
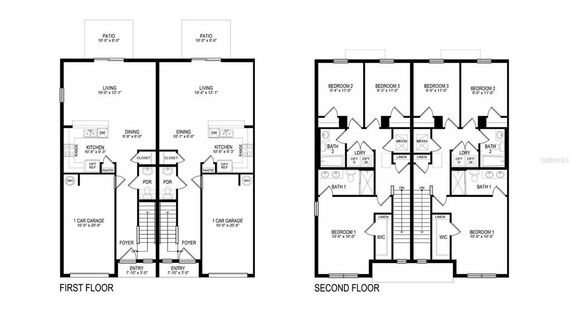
1,463 sqft
Est. Rango de ventas estimado: $0 - $0
$0

Visión general

Under Construction. Located off Tower Rd, Westwood brings new homes to Land O’ Lakes and is just minutes from the Suncoast parkway. The community, located in a very desirable area, offers a pool, cabana, playground, dog park, passive park, and paved trails. Homeowners will have access to a multitude of excellent conveniences, including close proximity to State Road 54, shopping, restaurants, and of course, the Suncoast Parkway. The Tampa airport and downtown Tampa are both just a short 30-minute drive away. The zoned schools are all excellently rated and not far from the community. Westwood will feature our Express series townhomes. Each home is constructed with all concrete block construction on 1st and 2nd stories and Home is Connected; D.R. Horton’s Smart Home System. Pictures, photographs, colors, features, and sizes are for illustration purposes only and will vary from the homes as built. Home and community information, including pricing, included features, terms, availability, and amenities, are subject to change and prior sale at any time without notice or obligation. Materials may vary based on availability. D.R. Horton Reserves all Rights.

Ubicación

Hechos y características

Tipo:
Residential
Estacionamiento:
Parking Pad
Año de construcción:
2026
Lote:
Sin datos
Calefacción:
Central / Heat Pump
precio por sq. medidor:
$205
Enfriamiento:
Central Air
HOA:
$56
Más hechos y características
  • Piso

    • Carpet

    • Luxury Vinyl

    Calefacción

    • Central

    • Heat Pump

    Enfriamiento

    • Central Air

    Accesorios

    • Dishwasher

    • Electric Water Heater

    • Microwave

    • Refrigerator

    • Washer

    Otras características interiores

    • Open Floorplan

    Dormitorios y baños

    • Dormitorios: 3

    • Baños: 1

    • Baños completos: 2

  • Estacionamiento

    • Parking Pad

    Propiedad

    • Pisos: Two

    • Características Exteriores: Irrigation System

    Otra Información de Propiedad

    • Número de Parcela: 20 26 18 0130 00000 1910

    • Zonificación: MPUD

  • Tipo y estilo

    • Tipo de propiedad: Residential

    • Subtipo de propiedad: Townhouse

  • Utilidad

    • Public

  • Otra información financiera

    • HOA: $56

    • Frecuencia HOA: Monthly

  • Detalles de la fuente

    • MLS ID: TB8456664

    Otros hechos

    • Materiales de construcción: Block / Stucco

    • Detalles de la fundación: Slab

    • Características de lavandería: Laundry Room

    • Características de la ventana: Blinds / Double Pane Windows / Low-Emissivity Windows

    • Caras de dirección: North

    • Espacios de garaje: 1

    • Garaje adjunto: Si

    • Garaje: Si

    • Salón: 1463

    • Fuente de agua: Public

    • Nombre de subdivisión: SALEM TOWNHOMES

Casas similares

3300 CLOVER BLOSSOM CIRCLE placeholder 3300 CLOVER BLOSSOM CIRCLE
Nuevo
En Venta
Casa
$370,000
3 camas 2 baños 1,610 sqft
3300 CLOVER BLOSSOM CIRCLE
17272 ENGLISH CHESTNUT WAY placeholder 17272 ENGLISH CHESTNUT WAY
3 días
En Venta
Adosados
$312,990
3 camas 2 baños 1,463 sqft
17272 ENGLISH CHESTNUT WAY
17268 ENGLISH CHESTNUT WAY placeholder 17268 ENGLISH CHESTNUT WAY
3 días
En Venta
Adosados
$312,990
3 camas 2 baños 1,463 sqft
17268 ENGLISH CHESTNUT WAY
17280 ENGLISH CHESTNUT WAY placeholder 17280 ENGLISH CHESTNUT WAY
3 días
En Venta
Adosados
$312,990
3 camas 2 baños 1,463 sqft
17280 ENGLISH CHESTNUT WAY
17264 ENGLISH CHESTNUT WAY placeholder 17264 ENGLISH CHESTNUT WAY
3 días
En Venta
Adosados
$312,990
3 camas 2 baños 1,463 sqft
17264 ENGLISH CHESTNUT WAY
17276 ENGLISH CHESTNUT WAY placeholder 17276 ENGLISH CHESTNUT WAY
3 días
En Venta
Adosados
$312,990
3 camas 2 baños 1,463 sqft
17276 ENGLISH CHESTNUT WAY
17256 ENGLISH CHESTNUT WAY placeholder 17256 ENGLISH CHESTNUT WAY
3 días
En Venta
Adosados
$339,990
3 camas 2 baños 1,463 sqft
17256 ENGLISH CHESTNUT WAY
17454 STINCHAR DRIVE placeholder 17454 STINCHAR DRIVE
6 días
En Venta
Adosados
$298,900
2 camas 2 baños 1,548 sqft
17454 STINCHAR DRIVE

The multiple listing information is provided by the Stellar MLS from a copyrighted compilation of listings. The compilation of listings and each individual listing are ©2025-present Stellar MLS. All Rights Reserved. The information provided is for consumers' personal, noncommercial use and may not be used for any purpose other than to identify prospective properties consumers may be interested in purchasing. All properties are subject to prior sale or withdrawal. All information provided is deemed reliable but is not guaranteed accurate, and should be independently verified. Listing courtesy of: D R HORTON REALTY OF TAMPA LLC