Contacto
Cuéntenos sobre sus necesidades

21425 CLUBSIDE LOOP

Adosados En Venta
$345,000

BTC: 5.12120406

ETH: 179.68750000

-$25K (2026/01/05)
46 días
3 camas
2 baños
1,642 sqft
Est. Rango de ventas estimado: $0 - $0
$0

Visión general

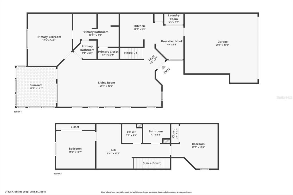
21425 Clubside Loop—a beautifully cared-for 3-bedroom, 2.5-bath townhome with a versatile bonus room and a 2-car garage, perfectly situated on a corner lot in the peaceful, sought-after Lake Heron community. Enjoy a low-maintenance lifestyle with affordable monthly dues that include exterior upkeep, lawn care, and access to community amenities such as the pool, tennis courts, pickleball, garden with a gazebo, and a storage facility. Inside, you’ll find numerous thoughtful upgrades: All-new double-pane windows (2022) Fully renovated kitchen (2024) with soft-close cabinetry, updated sink, and counters. Remodeled main bathroom (2024) featuring a new shower, sink, and closet. New flooring in the primary and upstairs bedrooms (2022). Custom built-in closet (2024) AC unit (2019) Converted from gas to electric water heater (2019) Weather-proof lanai windows (2010). The spacious primary suite is conveniently located on the main level and includes a walk-in closet, Spa like walk-in shower, and plenty of storage. Upstairs, two well-sized bedrooms offer flexibility for guests, a home office, or additional living space. A bright breakfast nook adds to the home’s inviting feel. Lake Heron provides a serene atmosphere with quick access to shopping, dining, I-75, I-275, and more. This townhome perfectly combines comfort, convenience, and community—ideal for anyone seeking a relaxed, low-maintenance lifestyle. **NEW ROOF BEING INSTALLED END OF JAN**

Ubicación

Hechos y características

Tipo:
Residential
Estacionamiento:
Driveway
Año de construcción:
1994
Lote:
0.12 Hectáreas
Calefacción:
Central
precio por sq. medidor:
$210
Enfriamiento:
Central Air
HOA:
$244
Más hechos y características
  • Piso

    • Vinyl

    Calefacción

    • Central

    Enfriamiento

    • Central Air

    Accesorios

    • Dishwasher

    • Dryer

    • Microwave

    • Range

    • Refrigerator

    • Washer

    Otras características interiores

    • Ceiling Fan(s)

    • Open Floorplan

    • Other

    Dormitorios y baños

    • Dormitorios: 3

    • Baños: 1

    • Baños completos: 2

  • Estacionamiento

    • Driveway

    Propiedad

    • Pisos: Two

    • Características Exteriores: Lighting / Other

    Lote

    • Lote: 0.12 Hectáreas

    Otra Información de Propiedad

    • Número de Parcela: 3626180130001000010

    • Zonificación: MF1

  • Tipo y estilo

    • Tipo de propiedad: Residential

    • Subtipo de propiedad: Townhouse

  • Utilidad

    • Cable Available

    • Electricity Available

    • Natural Gas Available

    • Sewer Available

    • Water Available

  • Otra información financiera

    • HOA: $244

    • Frecuencia HOA: Monthly

    • Importe anual de impuestos: $2,131

  • Detalles de la fuente

    • MLS ID: TB8447238

    Otros hechos

    • Materiales de construcción: Stucco

    • Detalles de la fundación: Slab

    • Características de lavandería: Inside

    • Características del lote: Corner Lot

    • Caras de dirección: South

    • Espacios de garaje: 2

    • Garaje adjunto: Si

    • Garaje: Si

    • Salón: 1642

    • Fuente de agua: Public

    • Nombre de subdivisión: LAKE HERON

Casas similares

21107 FOUNTAIN VIEW LANE UNIT 5201 placeholder 21107 FOUNTAIN VIEW LANE UNIT 5201
Nuevo
En Venta
Condo / Coop
$275,000
2 camas 2 baños 1,135 sqft
21107 FOUNTAIN VIEW LANE UNIT 5201
19204 WEYMOUTH DRIVE placeholder 19204 WEYMOUTH DRIVE
1 días
En Venta
Casa
$350,000
3 camas 2 baños 1,790 sqft
19204 WEYMOUTH DRIVE
2802 TORRANCE DRIVE placeholder 2802 TORRANCE DRIVE
2 días
En Venta
Casa
$339,000
3 camas 2 baños 1,722 sqft
2802 TORRANCE DRIVE
1717 HAMMOCKS AVENUE UNIT 1717 placeholder 1717 HAMMOCKS AVENUE UNIT 1717
3 días
En Venta
Condo / Coop
$285,000
3 camas 2 baños 1,782 sqft
1717 HAMMOCKS AVENUE UNIT 1717
2142 PARK CRESCENT DRIVE placeholder 2142 PARK CRESCENT DRIVE
5 días
En Venta
Adosados
$349,900
3 camas 2 baños 1,806 sqft
2142 PARK CRESCENT DRIVE
4312 VENICE DRIVE placeholder 4312 VENICE DRIVE
7 días
En Venta
Casa
$260,000
2 camas 2 baños 909 sqft
4312 VENICE DRIVE
3037 JOAN COURT placeholder 3037 JOAN COURT
14 días
En Venta
Casa
$430,000
4 camas 2 baños 2,113 sqft
3037 JOAN COURT
2015 VISTA DEL SOL CIRCLE UNIT 108 placeholder 2015 VISTA DEL SOL CIRCLE UNIT 108
16 días
En Venta
Condo / Coop
$395,000
3 camas 3 baños 2,357 sqft
2015 VISTA DEL SOL CIRCLE UNIT 108

The multiple listing information is provided by the Stellar MLS from a copyrighted compilation of listings. The compilation of listings and each individual listing are ©2026-present Stellar MLS. All Rights Reserved. The information provided is for consumers' personal, noncommercial use and may not be used for any purpose other than to identify prospective properties consumers may be interested in purchasing. All properties are subject to prior sale or withdrawal. All information provided is deemed reliable but is not guaranteed accurate, and should be independently verified. Listing courtesy of: 54 REALTY LLC