Contacto
Cuéntenos sobre sus necesidades

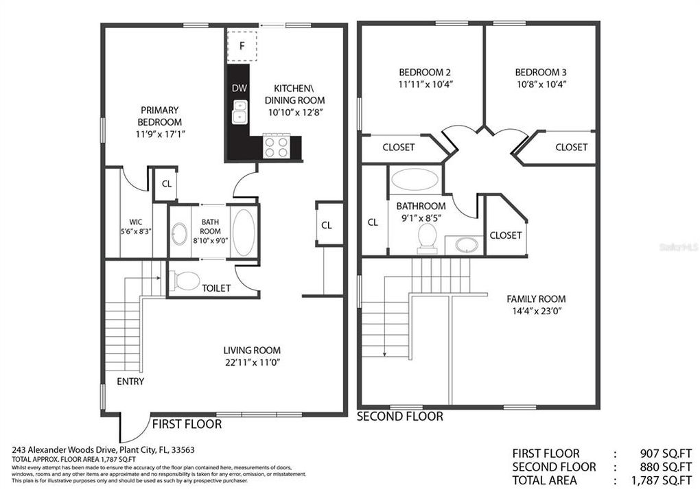
243 ALEXANDER WOODS DRIVE

Adosados Activo con contrato
$243,000

BTC: 8.10000000

ETH: 121.50000000

-$16K (2025/10/02)
139 días
3 camas
2 baños
1,733 sqft
Est. Rango de ventas estimado: $0 - $0
$0

Visión general

Nestled within a gated community offering thoughtful amenities, this 3-bedroom, 2-bath townhome combines comfort, convenience, and style. As a desirable corner unit, it enjoys abundant natural light and added privacy. The primary suite is conveniently located on the main floor, while upstairs you’ll find two additional bedrooms and a spacious loft—ideal for a home office, hobbies, or movie nights. Two dedicated parking spaces sit right out front, and professional landscaping means you can relax without worrying about yard work. Take advantage of the community pool, park, and clubhouse—all just a short stroll away. Discover how effortless life can be here.

Ubicación

Hechos y características

Tipo:
Residential
Estacionamiento:
Assigned
Año de construcción:
2015
Lote:
0.09 Hectáreas
Calefacción:
Central / Electric
precio por sq. medidor:
$140
Enfriamiento:
Central Air
HOA:
$230
Más hechos y características
  • Piso

    • Carpet

    • Tile

    Calefacción

    • Central

    • Electric

    Enfriamiento

    • Central Air

    Accesorios

    • Dishwasher

    • Microwave

    • Range

    Otras características interiores

    • Living Room/Dining Room Combo

    Dormitorios y baños

    • Dormitorios: 3

    • Baños: 1

    • Baños completos: 2

  • Estacionamiento

    • Assigned

    Propiedad

    • Pisos: Two

    • Características Exteriores: Lighting

    Lote

    • Lote: 0.09 Hectáreas

    Otra Información de Propiedad

    • Número de Parcela: P05292289500001000006.0

    • Zonificación: R-2

  • Tipo y estilo

    • Tipo de propiedad: Residential

    • Subtipo de propiedad: Townhouse

  • Utilidad

    • Cable Connected

    • Electricity Connected

    • Sewer Connected

    • Water Connected

  • Otra información financiera

    • HOA: $230

    • Frecuencia HOA: Monthly

    • Importe anual de impuestos: $3,012

  • Detalles de la fuente

    • MLS ID: TB8401523

    Otros hechos

    • Materiales de construcción: Block / Stucco

    • Detalles de la fundación: Slab

    • Características de lavandería: Laundry Closet

    • Caras de dirección: North

    • Salón: 1733

    • Fuente de agua: Public

    • Nombre de subdivisión: ALEXANDER WOODS TWNHMS

Casas similares

1302 N FRANKLIN STREET placeholder 1302 N FRANKLIN STREET
3 días
Activo con contrato
Casa
$224,000
2 camas 1 baños 944 sqft
1302 N FRANKLIN STREET
4202 DRAWDY ROAD placeholder 4202 DRAWDY ROAD
+$15K (2025/11/05)
Activo con contrato
Lotes / Tierras
$300,000
0 room(s)
4202 DRAWDY ROAD
805 ASHENTREE DRIVE placeholder 805 ASHENTREE DRIVE
6 días
Activo con contrato
Adosados
$233,000
3 camas 2 baños 1,594 sqft
805 ASHENTREE DRIVE
3205 MURRAY FARMS ROAD placeholder 3205 MURRAY FARMS ROAD
8 días
Activo con contrato
Casa
$295,000
2 camas 2 baños 1,218 sqft
3205 MURRAY FARMS ROAD
2653 EAGLE GREENS DRIVE placeholder 2653 EAGLE GREENS DRIVE
9 días
Activo con contrato
Condo / Coop
$269,990
2 camas 2 baños 1,260 sqft
2653 EAGLE GREENS DRIVE
1109 N BURTON STREET placeholder 1109 N BURTON STREET
-$25K (2025/11/06)
Activo con contrato
Casa
$300,000
2 camas 3 baños 2,584 sqft
1109 N BURTON STREET
810 W BALL STREET placeholder 810 W BALL STREET
+$28K (2025/10/03)
Activo con contrato
Casa
$185,000
3 camas 1 baños 1,125 sqft
810 W BALL STREET
503 W RENFRO STREET placeholder 503 W RENFRO STREET
15 días
Activo con contrato
Casa
$249,000
3 camas 1 baños 1,260 sqft
503 W RENFRO STREET

The multiple listing information is provided by the Stellar MLS from a copyrighted compilation of listings. The compilation of listings and each individual listing are ©2025-present Stellar MLS. All Rights Reserved. The information provided is for consumers' personal, noncommercial use and may not be used for any purpose other than to identify prospective properties consumers may be interested in purchasing. All properties are subject to prior sale or withdrawal. All information provided is deemed reliable but is not guaranteed accurate, and should be independently verified. Listing courtesy of: REDFIN CORPORATION