Contacto
Cuéntenos sobre sus necesidades

5776 FRESHWATER CANYON DRIVE

Adosados En Venta
$327,400

BTC: 10.91333333

ETH: 163.70000000

-$25K (2025/12/04)
212 días
3 camas
2 baños
1,705 sqft
Est. Rango de ventas estimado: $0 - $0
$0

Visión general

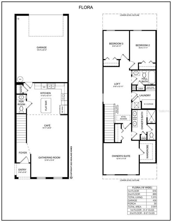
2-story new construction townhome with 1,705 square feet, 3 bedrooms with loft, 2.5 baths, a 2-car garage, located in the brand-new Crossings community offering natural and park amenities. Downstairs, a gourmet kitchen with Cambria countertops, shaker-style wood cabinets, Samsung stainless steel appliances, and a pantry. The entire lower level and upstairs baths are finished with luxury vinyl plank flooring, with stain-resistant carpet in the bedrooms. Upstairs, you'll find three spacious bedrooms including your owner's suite complete with a walk-in wardrobe, linen closet, and a private en-suite bath with dual vanities and a tiled shower. Additional features for your convenience include a half bath downstairs, loft, custom-fit window blinds throughout, a Samsung full-sized washer and dryer, energy-efficient insulation and windows, and a full builder warranty.

Ubicación

Hechos y características

Tipo:
Residential
Estacionamiento:
Sin datos
Año de construcción:
2024
Lote:
0.06 Hectáreas
Calefacción:
Central
precio por sq. medidor:
$192
Enfriamiento:
Central Air
HOA:
$1,200
Más hechos y características
  • Piso

    • Carpet

    • Vinyl

    Calefacción

    • Central

    Enfriamiento

    • Central Air

    Accesorios

    • Dishwasher

    • Disposal

    • Dryer

    • Electric Water Heater

    • Microwave

    • Range

    • Refrigerator

    • Washer

    Otras características interiores

    • In Wall Pest System

    Dormitorios y baños

    • Dormitorios: 3

    • Baños: 1

    • Baños completos: 2

  • Propiedad

    • Pisos: Two

    • Características Exteriores: Irrigation System

    Lote

    • Lote: 0.06 Hectáreas

    Otra Información de Propiedad

    • Número de Parcela: 222531366100011570

    • Zonificación: PD

  • Tipo y estilo

    • Tipo de propiedad: Residential

    • Subtipo de propiedad: Townhouse

  • Utilidad

    • Cable Available

  • Otra información financiera

    • HOA: $1,200

    • Frecuencia HOA: Annually

    • Importe anual de impuestos: $1,704

  • Detalles de la fuente

    • MLS ID: L4952755

    Otros hechos

    • Materiales de construcción: Block

    • Detalles de la fundación: Slab

    • Características de lavandería: Inside

    • Caras de dirección: North

    • Espacios de garaje: 2

    • Garaje adjunto: Si

    • Garaje: Si

    • Salón: 1705

    • Fuente de agua: Public

    • Nombre de subdivisión: THE CROSSINGS PH 1

Casas similares

5381 HICKORY DOWNS WAY placeholder 5381 HICKORY DOWNS WAY
Nuevo
En Venta
Casa
$399,990
4 camas 2 baños 1,830 sqft
5381 HICKORY DOWNS WAY
6012 CHESNUT GROVE PLACE placeholder 6012 CHESNUT GROVE PLACE
2 días
En Venta
Casa
$414,990
3 camas 2 baños 2,409 sqft
6012 CHESNUT GROVE PLACE
415 ELM SPRING ROAD placeholder 415 ELM SPRING ROAD
2 días
En Venta
Casa
$379,990
3 camas 2 baños 1,815 sqft
415 ELM SPRING ROAD
6300 DEW DROP LOOP placeholder 6300 DEW DROP LOOP
2 días
En Venta
Casa
$390,365
3 camas 2 baños 1,579 sqft
6300 DEW DROP LOOP
2370 LILY BLOOM ROAD placeholder 2370 LILY BLOOM ROAD
2 días
En Venta
Casa
$411,236
2 camas 2 baños 1,405 sqft
2370 LILY BLOOM ROAD
1680 SPRAY TERRACE placeholder 1680 SPRAY TERRACE
3 días
En Venta
Casa
$385,990
3 camas 2 baños 1,672 sqft
1680 SPRAY TERRACE
5686 STOCKADE BOULEVARD placeholder 5686 STOCKADE BOULEVARD
4 días
En Venta
Casa
$350,040
3 camas 2 baños 1,496 sqft
5686 STOCKADE BOULEVARD
5714 STOCKADE BOULEVARD placeholder 5714 STOCKADE BOULEVARD
4 días
En Venta
Casa
$361,990
3 camas 2 baños 1,496 sqft
5714 STOCKADE BOULEVARD

The multiple listing information is provided by the Stellar MLS from a copyrighted compilation of listings. The compilation of listings and each individual listing are ©2025-present Stellar MLS. All Rights Reserved. The information provided is for consumers' personal, noncommercial use and may not be used for any purpose other than to identify prospective properties consumers may be interested in purchasing. All properties are subject to prior sale or withdrawal. All information provided is deemed reliable but is not guaranteed accurate, and should be independently verified. Listing courtesy of: CAMBRIDGE REALTY OF CENTRAL FL