Contact
Tell us about your needs

2232 GROVE STREET

Lots/Land For Sale
$435,000

BTC: 6.44444444

ETH: 4,350.00000000

151 days
0 room(s)
Est. Estimated sales range: $0 - $0
$0

Overview

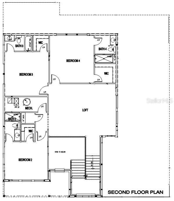
Discover an exceptional opportunity to own and build in one of Sarasota’s most desirable neighborhoods. Located in the quaint neighborhood of Blossom Brook, this 8,750-square-foot lot offers the perfect setting for your dream home. Ideally situated in the heart of Sarasota, the property is just minutes from downtown, Siesta Key’s world-famous beaches, and a wide array of shops, restaurants, cultural attractions and recreational activities. This generously sized parcel provides ample space for a custom residence with room for outdoor living, a pool, or lush landscaping. The lot backs up to large single-family parcels, ensuring an added sense of privacy and tranquility rarely found in such a central location. Mature surroundings and quiet streets make this area a hidden gem within Sarasota’s vibrant core. An added advantage — the owner offers the option to collaborate on a home build, giving you the flexibility to create a residence tailored to your lifestyle and vision. With designs already drawn up and perfectly scaled to this lot, this is an opportunity to choose custom finishes while the home is being built. Enjoy the convenience of urban living combined with the peace of a private, established neighborhood. Don’t miss this rare chance to secure your place in Sarasota’s thriving real estate market — where location, lifestyle, and opportunity meet.

Location

Facts and features

Type:
Land
Parking:
No Data
Year Built:
No Data
Lot:
0.20 Acres
Heating:
No Data
Price/sqft:
No Data
Cooling:
No Data
HOA:
No Data
All facts and features
  • Lot

    • Lot: 0.20 Acres

    Other Property Information

    • Parcel Number: 0056140023

    • Zoning: RSF2

  • Type and style

    • Property Type: Land

  • Utility

    • Electricity Available

    • Public

    • Sewer Available

    • Water Available

  • Other financial information

    • Annual tax amount: $4,587

  • Source details

    • MLS ID: A4670777

    Other facts

    • Lot Features: In County

    • Water Source: Public

    • Lot Size Dimensions: 70 x 125

    • Subdivision Name: BLOSSOM BROOK

Similar Homes

3399 ESPANOLA DRIVE placeholder 3399 ESPANOLA DRIVE
New
For Sale
House
$465,000
3 bds 2 ba 1,622 sqft
3399 ESPANOLA DRIVE
994 S BRINK AVENUE placeholder 994 S BRINK AVENUE
1 days
For Sale
House
$549,000
3 bds 2 ba 1,814 sqft
994 S BRINK AVENUE
2717 PARMA STREET placeholder 2717 PARMA STREET
1 days
For Sale
House
$349,900
2 bds 3 ba 1,496 sqft
2717 PARMA STREET
3246 MAIDEN LANE placeholder 3246 MAIDEN LANE
2 days
For Sale
House
$549,500
3 bds 3 ba 2,170 sqft
3246 MAIDEN LANE
0 BAY STREET placeholder 0 BAY STREET
3 days
For Sale
Lots/Land
$420,000
0 room(s)
0 BAY STREET
2917 MICHIGAN STREET placeholder 2917 MICHIGAN STREET
3 days
For Sale
House
$499,900
3 bds 2 ba 1,066 sqft
2917 MICHIGAN STREET
0 BAY STREET placeholder 0 BAY STREET
3 days
For Sale
Lots/Land
$420,000
0 room(s)
0 BAY STREET
1064 N TAMIAMI TRAIL UNIT 1406 placeholder 1064 N TAMIAMI TRAIL UNIT 1406
5 days
For Sale
Condo/Co-op
$419,900
2 bds 2 ba 1,084 sqft
1064 N TAMIAMI TRAIL UNIT 1406

The multiple listing information is provided by the Stellar MLS from a copyrighted compilation of listings. The compilation of listings and each individual listing are ©2026-present Stellar MLS. All Rights Reserved. The information provided is for consumers' personal, noncommercial use and may not be used for any purpose other than to identify prospective properties consumers may be interested in purchasing. All properties are subject to prior sale or withdrawal. All information provided is deemed reliable but is not guaranteed accurate, and should be independently verified. Listing courtesy of: MICHAEL SAUNDERS & COMPANY