Contact
Tell us about your needs

4318 W AZEELE STREET

House For Sale
$1,990,000

BTC: 22.91306851

ETH: 995.00000000

-$200K (2025/11/20)
52 days
5 bds
4 ba
4,456 sqft
Est. Estimated sales range: $0 - $0
$0

Overview

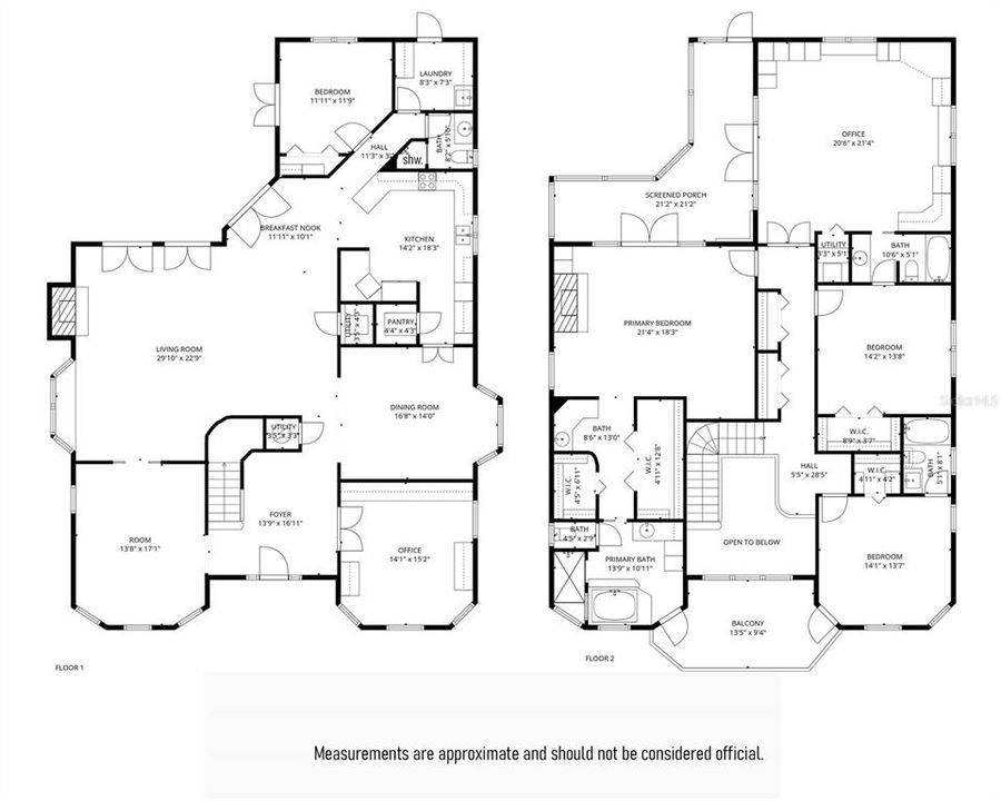
The search for THE statement house stops here. This elegantly handsome Regency mansion is a rare gem crowning Azeele's estate row. Custom crafted, thoughtfully updated, 4318 hearkens back to a time where stylish lines and elegant proportion turned heads. The gracious columned portico ushers you into the large entrance hall with its romantic, sweeping staircase; the perfect axis to lead you through the house, as you conjure the possibilities of family living and gracious entertaining. Living room, custom-fitted library with a hint of a British accent, large family room with fireplace, brightened by walls of French doors, and glowing hardwood floors, all flow easily to one another, and to the large formal dining room, through the butler's pantry to the elegant, sunny kitchen and breakfast room, past the downstairs guest room with its French doors to the pool courtyard, out to the bright, elegant pool surrounded by intimate gardens, pool storage and oversized garage. Upstairs the Master takes over one wing with its large bedroom, dressing room and bath, inviting fireside seating, and French doors to the poolside balcony. There's a kid's-dream fitted bedroom/playroom and then two more bedrooms and baths up here, with balconies peeking through the oaks, overlooking the front yard and pool in the back. Cannot be duplicated at this price. In the coveted cradle of South Tampa; so ez to the airport and interstate. NO FLOOD DAMAGE

Location

Florida TAMPA 33609 House For Sale

Facts and features

Type:
Residential
Parking:
No Data
Year Built:
1988
Lot:
0.24 Acres
Heating:
Central / Electric
Price/sqft:
$447
Cooling:
Central Air
HOA:
No Data
All facts and features
  • Flooring

    • Carpet

    • Tile

    • Hardwood

    Heating

    • Central

    • Electric

    Cooling

    • Central Air

    Appliances

    • Built-In Oven

    • Convection Oven

    • Cooktop

    • Dishwasher

    • Disposal

    • Electric Water Heater

    • Exhaust Fan

    • Refrigerator

    Other interior features

    • Ceiling Fan(s)

    • High Ceilings

    • PrimaryBedroom Upstairs

    • Solid Surface Counters

    • Solid Wood Cabinets

    • Split Bedroom

    • Walk-In Closet(s)

    Bedrooms and bathrooms

    • Bedrooms: 5

    • Full bathrooms: 4

  • Property

    • Levels: Two

    • Pool Private: Yes

    • Exterior Features: Balcony / French Doors

    Lot

    • Lot: 0.24 Acres

    Other Property Information

    • Parcel Number: A2129183M400000000008.1

    • Zoning: RS-75

  • Type and style

    • Property Type: Residential

    • Property Sub Type: Single Family Residence

  • Utility

    • BB/HS Internet Available

    • Cable Available

    • Electricity Available

    • Public

    • Water Connected

  • Other financial information

    • Annual tax amount: $18,472

  • Source details

    • MLS ID: TB8433320

    Other facts

    • Construction Materials: Brick / Wood Frame (FSC Certified)

    • Foundation Details: Slab

    • Fireplace Features: Family Room

    • Laundry Features: Inside / Laundry Room

    • Pool Features: Gunite / In Ground

    • Direction Faces: North

    • Fireplace: Yes

    • Garage Spaces: 2

    • Garage: Yes

    • Living Area: 4456

    • Water Source: Public

    • Subdivision Name: BEACH PARK UNIT 8 REP

Similar Homes

3711 W DE LEON STREET placeholder 3711 W DE LEON STREET
2 days
For Sale
House
$1,599,990
5 bds 4 ba 3,463 sqft
3711 W DE LEON STREET
2802 W MORRISON AVENUE placeholder 2802 W MORRISON AVENUE
4 days
For Sale
House
$1,624,000
4 bds 2 ba 2,660 sqft
2802 W MORRISON AVENUE
4312 W BEACH PARK DRIVE placeholder 4312 W BEACH PARK DRIVE
4 days
For Sale
House
$1,450,000
4 bds 3 ba 2,418 sqft
4312 W BEACH PARK DRIVE
2618 S BRYANT CIRCLE placeholder 2618 S BRYANT CIRCLE
6 days
For Sale
House
$1,399,000
4 bds 3 ba 2,698 sqft
2618 S BRYANT CIRCLE
3010 S ESPERANZA AVENUE placeholder 3010 S ESPERANZA AVENUE
10 days
For Sale
Townhouse
$1,429,000
4 bds 4 ba 3,016 sqft
3010 S ESPERANZA AVENUE
4313 W VASCONIA STREET placeholder 4313 W VASCONIA STREET
11 days
For Sale
House
$1,880,000
4 bds 4 ba 3,718 sqft
4313 W VASCONIA STREET
4713 W ESTRELLA STREET placeholder 4713 W ESTRELLA STREET
12 days
For Sale
House
$2,450,000
5 bds 4 ba 4,582 sqft
4713 W ESTRELLA STREET
407 S TAMPANIA AVENUE placeholder 407 S TAMPANIA AVENUE
12 days
For Sale
House
$2,200,000
4 bds 3 ba 3,128 sqft
407 S TAMPANIA AVENUE

The multiple listing information is provided by the Stellar MLS from a copyrighted compilation of listings. The compilation of listings and each individual listing are ©2025-present Stellar MLS. All Rights Reserved. The information provided is for consumers' personal, noncommercial use and may not be used for any purpose other than to identify prospective properties consumers may be interested in purchasing. All properties are subject to prior sale or withdrawal. All information provided is deemed reliable but is not guaranteed accurate, and should be independently verified. Listing courtesy of: PALERMO REAL ESTATE PROF. INC.