Contact
Tell us about your needs

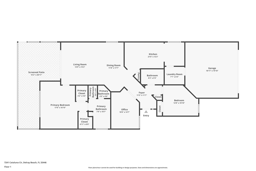
7241 Cataluna, Delray Beach, FL 33446

House For Sale
$429,000

BTC: 4.93955095

ETH: 214.50000000

-$30K (2025/12/02)
56 days
Waterfront
2 bds
2 ba
1,526 sqft
Est. Estimated sales range: $0 - $0
$0

Overview

Enjoy the best of 55+ living in this beautifully upgraded 2-bedroom plus den 2 bath lakefront home in Delray Beach desirable Vizcaya community. This immaculate residence features impact windows and doors, , full house generator, luxury vinyl floors. The open entertainment size living and dining room overlooks a spectacular view of the oversized patio and sparkling water views. The spacious primary suite with spacious built-in closets and ensuite bath with two vanities soaking tub and separate shower.Vizcaya offers a resort-style clubhouse .pool, tennis, pickleball, fitness center and a full calendar of activities all just minutes from shopping, dining, and the beach. This home combines comfort, function and Florida charm,GRACIOU FLORIDA LIVING AT ITS FINEST.

Location

Facts and features

Type:
Residential
Parking:
2+ Spaces / Driveway
Year Built:
2000
Lot:
4460 Square Feet
Heating:
Central / Central Individual / Electric / Heat Strip
Price/sqft:
$281
Cooling:
Ceiling Fan / Central Building / Electric
HOA:
No Data
All facts and features
  • Flooring

    • Vinyl Floor

    Heating

    • Central

    • Central Individual

    • Electric

    • Heat Strip

    Cooling

    • Ceiling Fan

    • Central Building

    • Electric

    Appliances

    • Dishwasher

    • Dryer

    • Generator Whle House

    • Microwave

    • Range - Electric

    • Refrigerator

    • TV Antenna

    • Washer

    • Water Heater - Elec

    Other interior features

    • Entry Lvl Lvng Area

    • Foyer

    • Kitchen Island

    • Pantry

    • Split Bedroom

    • Volume Ceiling

    • Walk-in Closet

    Bedrooms and bathrooms

    • Bedrooms: 2

    • Full bathrooms: 2

  • Parking

    • 2+ Spaces

    • Driveway

    Property

    • Exterior Features: Auto Sprinkler / Lake/Canal Sprinkler / Screened Patio / Shutters / Zoned Sprinkler

    Lot

    • Lot: 4460 Square Feet

    Other Property Information

    • Parcel Number: 00424621290060140

    • Zoning: PUD

  • Type and style

    • Property Type: Residential

    • Property Sub Type: Single Family Residence

  • Utility

    • Electric

    • Lake Worth Drain Dis

    • Public Sewer

    • Public Water

  • Other financial information

    • Annual tax amount: $3,828

  • Source details

    • MLS ID: RX-11135546

    Other facts

    • Construction Materials: CBS

    • Lot Features: < 1/4 Acre / Private Road / Sidewalks / Treed Lot

    • Patio And Porch Features: Patio

    • Direction Faces: Jog road north to Atlantic west to Vizcaya

    • Waterfront: Yes

    • Garage Spaces: 2

    • Garage: Yes

    • Living Area: 1526

    • Subdivision Name: VIZCAYA 2

Similar Homes

6140 Kings Gate, Delray Beach, FL 33484 placeholder 6140 Kings Gate, Delray Beach, FL 33484
2 days
For Sale
House
$439,000
2 bds 2 ba 1,437 sqft
6140 Kings Gate, Delray Beach, FL 33484
6069 Heliconia Rd, Delray Beach FL 33484 placeholder 6069 Heliconia Rd, Delray Beach FL 33484
3 days
For Sale
Townhouse
$339,900
2 bds 2 ba 1,378 sqft
6069 Heliconia Rd, Delray Beach FL 33484
6348 Pointe Pleasant, Delray Beach, FL 33484 placeholder 6348 Pointe Pleasant, Delray Beach, FL 33484
3 days
For Sale
Condo/Co-op
$345,000
2 bds 2 ba 1,311 sqft
6348 Pointe Pleasant, Delray Beach, FL 33484
7053 Peters, Delray Beach, FL 33446 placeholder 7053 Peters, Delray Beach, FL 33446
4 days
For Sale
Townhouse
$549,000
3 bds 2 ba 1,411 sqft
7053 Peters, Delray Beach, FL 33446
14523 Highland Center, Delray Beach, FL 33446 placeholder 14523 Highland Center, Delray Beach, FL 33446
4 days
For Sale
House
$429,000
2 bds 2 ba 1,319 sqft
14523 Highland Center, Delray Beach, FL 33446
6092 Petunia, Delray Beach, FL 33484 placeholder 6092 Petunia, Delray Beach, FL 33484
5 days
For Sale
House
$359,000
2 bds 2 ba 1,378 sqft
6092 Petunia, Delray Beach, FL 33484
15305 Ixora, Delray Beach, FL 33484 placeholder 15305 Ixora, Delray Beach, FL 33484
+$15K (2025/12/19)
For Sale
House
$370,000
2 bds 2 ba 1,454 sqft
15305 Ixora, Delray Beach, FL 33484
6164 Petunia, Delray Beach, FL 33484 placeholder 6164 Petunia, Delray Beach, FL 33484
6 days
For Sale
House
$389,000
2 bds 2 ba 1,559 sqft
6164 Petunia, Delray Beach, FL 33484

The multiple listing information is provided by the Beaches MLS from a copyrighted compilation of listings. The compilation of listings and each individual listing are ©2025-present Beaches MLS. All Rights Reserved. The information provided is for consumers' personal, noncommercial use and may not be used for any purpose other than to identify prospective properties consumers may be interested in purchasing. All properties are subject to prior sale or withdrawal. All information provided is deemed reliable but is not guaranteed accurate, and should be independently verified. Listing courtesy of: Lang Realty/ BR