Недвижимость
Ознакомьтесь с нашими объявлениями
Контакты
Расскажите нам о своих потребностях

SW SUNNYBREEZE ROAD

Участки / Земля На продажу
$32,000,000

BTC: 470.58823529

ETH: 320,000.00000000

1 Дней
Набережная
0 room(s)
Est. Предполагаемый диапазон продаж: $0 - $0
$0

Обзор

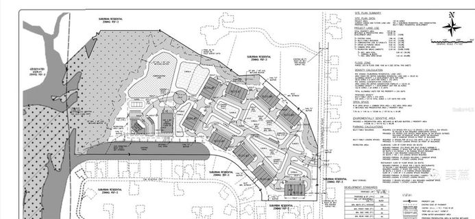
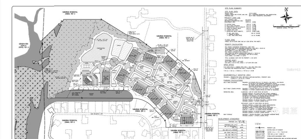
157± ACRES ON THE PEACE RIVER – DEVELOPMENT OPPORTUNITY *Paradise Island* An exceptional opportunity to acquire 157± acres of unspoiled Old Florida beauty along the scenic Peace River. This rare offering combines natural waterfront charm with significant development potential, making it ideal for visionary builders, investors, or those seeking a legacy property. Approximately 27± acres of high and dry land provide a strong foundation for development, while the remaining acreage offers a stunning backdrop of native landscape, perfect for preserving natural aesthetics or creating a one-of-a-kind eco-focused project. Zoned ROI and A-5, the property allows for a wide range of possibilities including a private riverfront estate, boutique eco-resort, residential development, or mixed-use concept. Developers will appreciate the groundwork already in place—previous approvals for up to 216 units offer a valuable head start for those looking to move forward with a residential project (documentation available upon request). Additionally, there is potential for up to 23 private docks, providing direct boating access to the river and out to the Gulf, a highly desirable feature in Southwest Florida waterfront communities. Infrastructure is within reach, with water and sewer nearby, enhancing the feasibility and cost-efficiency of future development. Strategically located with convenient access to Arcadia, Port Charlotte, and Punta Gorda, the property also offers easy connectivity to regional travel hubs including Punta Gorda Airport and Southwest Florida International Airport. Whether you envision a luxury riverfront community, a serene eco-retreat, or a private estate surrounded by nature, this property delivers the scale, location, and flexibility to bring your vision to life.

Локация

Факты и особенности

Тип:
Land
Парковка:
Нет данных
Год постройки:
Нет данных
Лот:
157.19 Акров
Отопление:
Нет данных
Цена/кв.фут:
Нет данных
Охлаждение:
Нет данных
HOA:
Нет данных
Больше фактов и особенностей
  • Лот

    • Лот: 157.19 Акров

    Другая Информация о Недвижимости

    • Номер Земельного Участка: 353923000000400000

    • Зонирование: ROI

  • Тип и стиль

    • Тип недвижимости: Land

  • Общественное благосостояние

    • BB/HS Internet Available

    • Electrical Nearby

    • Sewer Nearby

    • Water Nearby

  • Другая финансовая информация

    • Годовая сумма налога: $11,082

  • Детали источника

    • MLS ID: C7524295

    Другие факты

    • Особенности лота: Flood Plain / Greenbelt / In County / Near Golf Course / Near Marina / Oversized Lot / Private / Room For Pool / Wooded

    • Берег: Да

    • Источник воды: None

    • Размеры участка: 3958 x 4630

    • Название подразделения: PEACE RIVER HIGHLANDS LTD MINO

Похожие дома

Похожие дома не найдены в этом районе

The multiple listing information is provided by the Stellar MLS from a copyrighted compilation of listings. The compilation of listings and each individual listing are ©2026-present Stellar MLS. All Rights Reserved. The information provided is for consumers' personal, noncommercial use and may not be used for any purpose other than to identify prospective properties consumers may be interested in purchasing. All properties are subject to prior sale or withdrawal. All information provided is deemed reliable but is not guaranteed accurate, and should be independently verified. Listing courtesy of: COLDWELL BANKER SUNSTAR REALTY