Недвижимость
Ознакомьтесь с нашими объявлениями
Контакты
Расскажите нам о своих потребностях

9207 166th, Jupiter, FL 33478

Дом Под контрактом
$775,000

BTC: 11.39705882

ETH: 7,750.00000000

4 Дней
3 спален
3 ванн
2,450 кв.фт.
Est. Предполагаемый диапазон продаж: $0 - $0
$0

Обзор

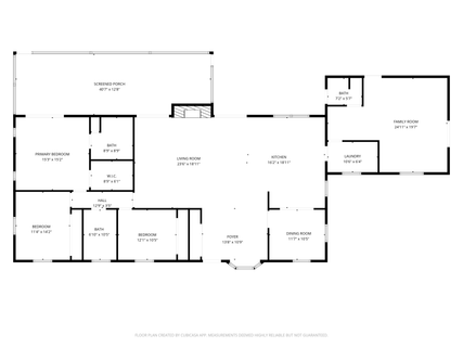
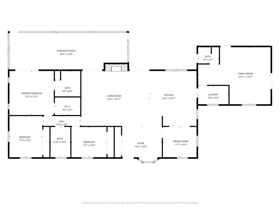
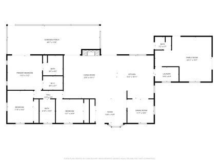
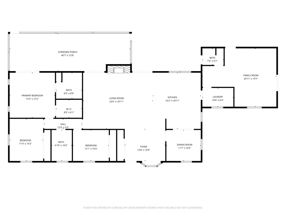
A rare opportunity to own a private retreat bordering Riverbend Park, just minutes from the back entrance offering miles of biking, running, walking, kayaking, and equestrian trails. This serene 1.25-acre property is tucked beneath a canopy of majestic old oak trees, creating a peaceful, nature-rich setting.The spacious ranch-style home features an open floor plan anchored by a beautiful stone fireplace, making it ideal for both everyday living and entertaining. New wood flooring runs throughout the entire house with tile in the bathrooms. The custom kitchen offers granite countertops, 6 burner gas stove, 2 ovens, ample cabinetry, and generous prep space for hosting friends.

Локация

Факты и особенности

Тип:
Residential
Парковка:
Drive - Circular / Driveway / RV/Boat
Год постройки:
1985
Лот:
54450 Квадратных Футов
Отопление:
Central / Zoned
Цена/кв.фут:
$316
Охлаждение:
Central / Zoned
HOA:
Нет данных
Больше фактов и особенностей
  • Напольное покрытие

    • Tile

    • Wood Floor

    Отопление

    • Central

    • Zoned

    Охлаждение

    • Central

    • Zoned

    Бытовая техника

    • Dishwasher

    • Microwave

    • Range - Gas

    • Refrigerator

    • Washer/Dryer Hookup

    • Water Heater - Elec

    Другие особенности интерьера

    • Fireplace(s)

    • Foyer

    • French Door

    • Kitchen Island

    • Sky Light(s)

    • Stack Bedrooms

    • Walk-in Closet

    Спальни и ванные комнаты

    • Спальни: 3

    • Полные ванные комнаты: 3

  • Парковка

    • Drive - Circular

    • Driveway

    • RV/Boat

    Имущество

    • Особенности Экстерьера: Covered Patio / Deck / Extra Building / Fence / Open Patio / Screen Porch / Shed / Well Sprinkler

    Лот

    • Лот: 54450 Квадратных Футов

    Другая Информация о Недвижимости

    • Номер Земельного Участка: 00424107000001570

    • Зонирование: AR

  • Тип и стиль

    • Тип недвижимости: Residential

    • Подтип недвижимости: Single Family Residence

  • Общественное благосостояние

    • Septic

    • Well Water

  • Другая финансовая информация

    • Годовая сумма налога: $3,932

  • Детали источника

    • MLS ID: RX-11150389

    Другие факты

    • Строительные материалы: Frame

    • Особенности лота: 1 to < 2 Acres / Paved Road / Public Road / Treed Lot

    • Направленные лица: From I95 - take exit 87B, Indian Town Rd. Turn left on Jupiter Farms Rd at light, TL on 167th Place N, TR on 95th Ave. N, TL on 166th Way N, house on left.

    • Жилая площадь: 2450

    • Название подразделения: JUPITER FARMS

Похожие дома

293 Moccasin, Jupiter, FL 33458 placeholder 293 Moccasin, Jupiter, FL 33458
-$20K (2025/12/18)
Под контрактом
Дом
$599,999
3 спален 2 ванн 1,339 кв.фт.
293 Moccasin, Jupiter, FL 33458
18519 Claybrook, Jupiter, FL 33458 placeholder 18519 Claybrook, Jupiter, FL 33458
-$71K (2025/09/17)
Под контрактом
Дом
$839,000
5 спален 3 ванн 2,720 кв.фт.
18519 Claybrook, Jupiter, FL 33458
18660 Misty Lake, Jupiter, FL 33458 placeholder 18660 Misty Lake, Jupiter, FL 33458
-$45K (2025/10/29)
Под контрактом
Дом
$659,900
4 спален 3 ванн 2,326 кв.фт.
18660 Misty Lake, Jupiter, FL 33458
17520 Bridle, Jupiter, FL 33478 placeholder 17520 Bridle, Jupiter, FL 33478
118 Дней
Под контрактом
Дом
$800,000
5 спален 2 ванн 2,734 кв.фт.
17520 Bridle, Jupiter, FL 33478
7661 168th, Palm Beach Gardens, FL 33418 placeholder 7661 168th, Palm Beach Gardens, FL 33418
148 Дней
Под контрактом
Коммерческий
$675,000
0 room(s)
7661 168th, Palm Beach Gardens, FL 33418
7569 168th, Palm Beach Gardens, FL 33418 placeholder 7569 168th, Palm Beach Gardens, FL 33418
148 Дней
Под контрактом
Коммерческий
$675,000
0 room(s)
7569 168th, Palm Beach Gardens, FL 33418
7616 169th, Palm Beach Gardens, FL 33418 placeholder 7616 169th, Palm Beach Gardens, FL 33418
148 Дней
Под контрактом
Коммерческий
$750,000
0 room(s)
7616 169th, Palm Beach Gardens, FL 33418
7360 150th, Palm Beach Gardens, FL 33418 placeholder 7360 150th, Palm Beach Gardens, FL 33418
-$44K (2026/01/06)
Под контрактом
Дом
$845,000
4 спален 3 ванн 2,291 кв.фт.
7360 150th, Palm Beach Gardens, FL 33418

The multiple listing information is provided by the Beaches MLS from a copyrighted compilation of listings. The compilation of listings and each individual listing are ©2026-present Beaches MLS. All Rights Reserved. The information provided is for consumers' personal, noncommercial use and may not be used for any purpose other than to identify prospective properties consumers may be interested in purchasing. All properties are subject to prior sale or withdrawal. All information provided is deemed reliable but is not guaranteed accurate, and should be independently verified. Listing courtesy of: RE/MAX Prestige Realty/Wellington