Недвижимость
Ознакомьтесь с нашими объявлениями
Контакты
Расскажите нам о своих потребностях

925 16TH AVENUE N

Многосемейный Под контрактом
$997,900

BTC: 14.67500000

ETH: 9,979.00000000

-$97K (2026/01/23)
137 Дней
5 спален
2,838 кв.фт.
Est. Предполагаемый диапазон продаж: $0 - $0
$0

Обзор

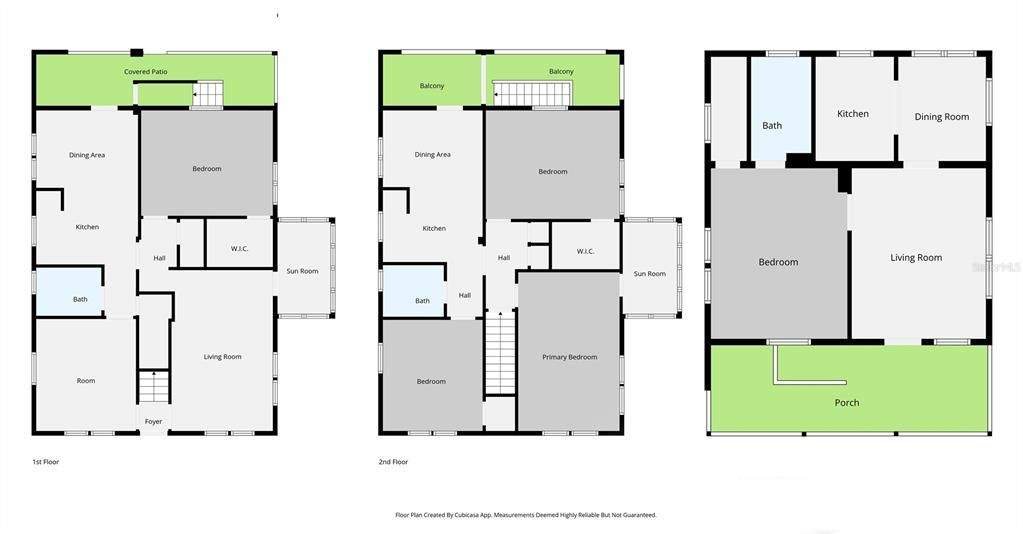
Under contract-accepting backup offers. Located in the highly desirable Euclid St. Paul’s neighborhood of St. Petersburg, this recently restored triplex perfectly blends historic charm with modern updates. The property features a versatile unit mix, including two spacious 2-bedroom, 1-bathroom units (each approximately 1,131 sq. ft.) offering large rear porches, sunrooms, dining areas, and separate laundry hookups, as well as one 1-bedroom, 1-bathroom garage apartment (576 sq. ft.) with its own laundry hookup, covered porch, and a two-car garage below. The front building is constructed entirely of concrete block—including both floors and the floor system between—while the detached garage apartment is wood frame construction. Each unit enjoys abundant natural light, spacious layouts, and a tasteful combination of modern finishes and original period details. Property features include separate electric meters for each unit and one shared water/sewer/trash meter, ample parking, and inviting common spaces for tenants. Situated on a charming brick street just steps from Crescent Lake Park and only minutes to downtown St. Petersburg, this property offers the perfect opportunity for investors or those looking to live in one unit and rent out the others. A truly turnkey, income-producing property in one of St. Pete’s most sought-after neighborhoods.

Локация

Факты и особенности

Тип:
Residential Income
Парковка:
Garage Faces Rear / Ground Level / Guest / Open
Год постройки:
1925
Лот:
0.15 Акров
Отопление:
Electric
Цена/кв.фут:
$352
Охлаждение:
Central Air / Mini-Split Unit(s)
HOA:
Нет данных
Больше фактов и особенностей
  • Напольное покрытие

    • Luxury Vinyl

    Отопление

    • Electric

    Охлаждение

    • Central Air

    • Mini-Split Unit(s)

    Бытовая техника

    • Electric Water Heater

    • Range

    • Refrigerator

    Другие особенности интерьера

    • Eating Space In Kitchen

    • Solid Surface Counters

    • Walk-In Closet(s)

    • Window Treatments

    Спальни и ванные комнаты

    • Спальни: 5

  • Парковка

    • Garage Faces Rear

    • Ground Level

    • Guest

    • Open

    Имущество

    • Этажи: One

    • Особенности Экстерьера: Irrigation System / Sidewalk / Storage

    Лот

    • Лот: 0.15 Акров

    Другая Информация о Недвижимости

    • Номер Земельного Участка: 133116396720000170

  • Тип и стиль

    • Тип недвижимости: Residential Income

    • Подтип недвижимости: Triplex

  • Общественное благосостояние

    • Electricity Connected

    • Sewer Connected

    • Water Connected

  • Другая финансовая информация

    • Годовая сумма налога: $9,018

  • Детали источника

    • MLS ID: TB8448105

    Другие факты

    • Строительные материалы: Block / Wood Frame

    • Детали фундамента: Slab

    • Особенности прачечной: Outside

    • Особенности лота: City Lot / Level / Oversized Lot / Sidewalk

    • Особенности двора и крыльца: Covered / Rear Porch

    • Мест в гараже: 2

    • Гараж: Да

    • Жилая площадь: 2838

    • Источник воды: Public

    • Размеры участка: 50 x 127

    • Название подразделения: HILCREST

Похожие дома

380 FAN PALM COURT NE placeholder 380 FAN PALM COURT NE
Новое
Под контрактом
Дом
$849,900
4 спален 2 ванн 2,085 кв.фт.
380 FAN PALM COURT NE
1481 49TH AVENUE NE placeholder 1481 49TH AVENUE NE
2 Дней
Под контрактом
Дом
$1,200,000
4 спален 2 ванн 1,798 кв.фт.
1481 49TH AVENUE NE
1610 15TH STREET N placeholder 1610 15TH STREET N
3 Дней
Под контрактом
Дом
$899,000
3 спален 2 ванн 1,994 кв.фт.
1610 15TH STREET N
169 27TH AVENUE N placeholder 169 27TH AVENUE N
3 Дней
Под контрактом
Дом
$979,990
4 спален 2 ванн 2,098 кв.фт.
169 27TH AVENUE N
4100 13TH LANE NE placeholder 4100 13TH LANE NE
3 Дней
Под контрактом
Дом
$1,050,000
3 спален 3 ванн 2,429 кв.фт.
4100 13TH LANE NE
410 35TH AVENUE NE placeholder 410 35TH AVENUE NE
4 Дней
Под контрактом
Дом
$750,000
2 спален 2 ванн 1,575 кв.фт.
410 35TH AVENUE NE
798 46TH AVENUE N placeholder 798 46TH AVENUE N
4 Дней
Под контрактом
Дом
$1,100,000
4 спален 2 ванн 2,620 кв.фт.
798 46TH AVENUE N
2445 6TH AVENUE N placeholder 2445 6TH AVENUE N
6 Дней
Под контрактом
Дом
$750,000
3 спален 2 ванн 2,089 кв.фт.
2445 6TH AVENUE N

The multiple listing information is provided by the Stellar MLS from a copyrighted compilation of listings. The compilation of listings and each individual listing are ©2026-present Stellar MLS. All Rights Reserved. The information provided is for consumers' personal, noncommercial use and may not be used for any purpose other than to identify prospective properties consumers may be interested in purchasing. All properties are subject to prior sale or withdrawal. All information provided is deemed reliable but is not guaranteed accurate, and should be independently verified. Listing courtesy of: KELLER WILLIAMS ST PETE REALTY