特性
探索我们的清单
聯繫
告诉我们您的需求

150 70, Plantation, FL 33317

商业的 待售
$27

BTC: 0.00090000

ETH: 0.01350000

-$2 (2025/11/12)
126 天
0 room(s)
14,845 平方英尺
Est. 预计销售范围: $0 - $0
$0

总览

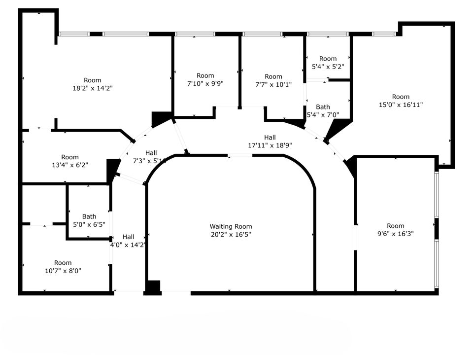
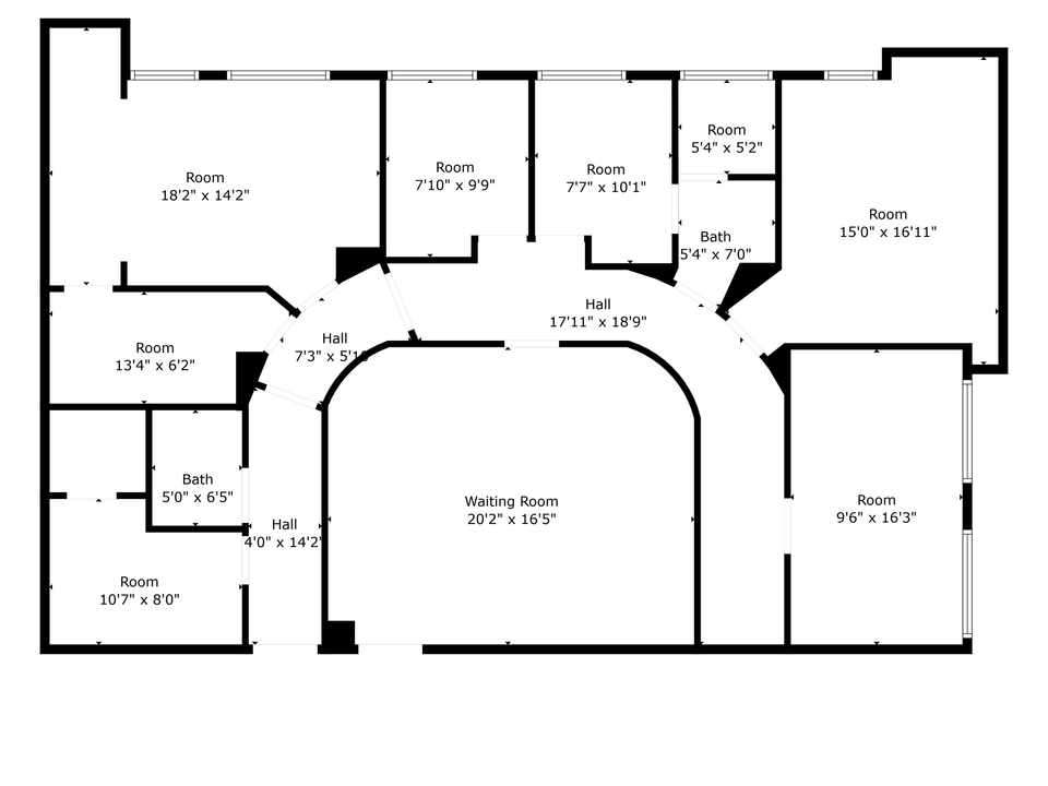
Take advantage of this incredible opportunity to lease an extremely spacious medical/office space in the heart of Plantation!This gorgeously designed suite features a modern & spacious lobby/reception area, 7 private offices, and a 2 private restrooms, 1 which is ADA approved--all within a professional, and efficient layout. The space is wheelchair accessible, filled with abundant natural light, and offers a bright, modern atmosphere that promotes comfort and professionalism.Ideal for healthcare professionals, specialists, or general office users, this suite is well-suited for medical consultations, therapy sessions, administrative tasks, or any practice that values functionality and client comfort.

位置

佛罗里达 种植园 33317 商业的 待售

详情与特色

类型:
Commercial Sale
停车:
没有数据
建造年份:
1976
地段:
没有数据
暖气:
没有数据
价格/平方英尺:
$0
冷气:
没有数据
HOA:
没有数据
更多事实和特点
  • 其他财产信息

    • 包裹编号: 504103440010

    • 分区: B-2P

  • 类型与风格

    • 财产种类: Commercial Sale

    • 属性子类型: Commercial Sale

  • 其他财政信息

    • 年税额: $48,264

  • 来源细节

    • MLS ID: RX-11111911

    其他详情

    • 车库: 是

    • 生活区域: 14845

类似房屋

150 70, Plantation, FL 33317 placeholder 150 70, Plantation, FL 33317
-$2 (2025/11/12)
待售
商业的
$27
0 room(s) 14,845 平方英尺
150 70, Plantation, FL 33317

The multiple listing information is provided by the Beaches MLS from a copyrighted compilation of listings. The compilation of listings and each individual listing are ©2025-present Beaches MLS. All Rights Reserved. The information provided is for consumers' personal, noncommercial use and may not be used for any purpose other than to identify prospective properties consumers may be interested in purchasing. All properties are subject to prior sale or withdrawal. All information provided is deemed reliable but is not guaranteed accurate, and should be independently verified. Listing courtesy of: Pellego, LLC