特性
探索我们的清单
聯繫
告诉我们您的需求

1117 Marine, North Palm Beach, FL 33408

公寓/合作社 待售
$949,000

BTC: 14.60000000

ETH: 499.47368421

2 天
滨水区
3 贝兹
3 浴室
2,379 平方英尺
Est. 预计销售范围: $0 - $0
$0

总览

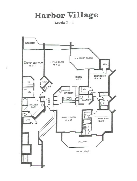
****Boat slip included!**** 35' boat slip located just a short walk out your back door to this wonderful 3 bedroom 3 full bath condo. Old Port Cove Harbor Village is located in a fantastic low maintenance marina community just minutes from PGA blvd and is situated just off the intracoastal waterway. The location is perfect for commuting to Jupiter, West Palm Beach, 95 or the turnpike! You will love this quiet little low rise building community with walking trails along the waterfront and beautiful sparking pool overlooking the Marina canal. Floor plan is available upon request. You will be amazed at the space all under roof. All rooms have balconies and also a plus, just outside your dining and living area a refreshing screened in porch overlooking the water.

位置

详情与特色

类型:
Residential
停车:
Carport - Detached / Covered / Guest / Vehicle Restrictions
建造年份:
1980
地段:
没有数据
暖气:
Central / Electric / Heat Pump-Reverse
价格/平方英尺:
$399
冷气:
Ceiling Fan / Central / Electric
HOA:
没有数据
更多事实和特点
  • 地板

    • Carpet

    • Ceramic Tile

    暖气

    • Central

    • Electric

    • Heat Pump-Reverse

    冷气

    • Ceiling Fan

    • Central

    • Electric

    设备

    • Cooktop

    • Dishwasher

    • Disposal

    • Dryer

    • Fire Alarm

    • Ice Maker

    • Microwave

    • Refrigerator

    • Smoke Detector

    • Washer

    • Washer/Dryer Hookup

    • Water Heater - Elec

    其他室内特点

    • Bar

    • Built-in Shelves

    • Closet Cabinets

    • Elevator

    • Entry Lvl Lvng Area

    • Fire Sprinkler

    • Foyer

    • Kitchen Island

    • Split Bedroom

    • Walk-in Closet

    • Wet Bar

    卧室和浴室

    • 卧室: 3

    • 完整的浴室: 3

  • 停车

    • Carport - Detached

    • Covered

    • Guest

    • Vehicle Restrictions

    房屋

    • 外观特征: Auto Sprinkler / Covered Balcony / Custom Lighting / Screened Balcony

    其他财产信息

    • 包裹编号: 68434209300110218

    • 分区: Residential

  • 类型与风格

    • 财产种类: Residential

    • 属性子类型: Condominium

  • 公益

    • Cable

    • Electric

    • Public Sewer

    • Public Water

  • 其他财政信息

    • 年税额: $13,075

  • 来源细节

    • MLS ID: RX-11152191

    其他详情

    • 建筑材料: Stucco

    • 洗衣功能: Washer and Dryer

    • 天井和门廊特色: Balcony

    • 方向面: Highway 95 N to PGA Blvd E to US1 S to left on Lakeshore Drive into Gate house for Old Port Cove right immediately after gate and follow down Marine Way E to 1117 and Condo on second floor on Right

    • 滨水区: 是

    • 生活区域: 2379

    • 细分名称: Village Harbor @ Old Port Cove

类似房屋

3797 Roan, Palm Beach Gardens, FL 33403 placeholder 3797 Roan, Palm Beach Gardens, FL 33403
5 天
待售
多户家庭
$725,000
0 room(s) 2,320 平方英尺
3797 Roan, Palm Beach Gardens, FL 33403
5380 Ocean, Singer Island, FL 33404 placeholder 5380 Ocean, Singer Island, FL 33404
6 天
待售
公寓/合作社
$715,000
2 贝兹 2 浴室 1,530 平方英尺
5380 Ocean, Singer Island, FL 33404
5280 Ocean, Singer Island, FL 33404 placeholder 5280 Ocean, Singer Island, FL 33404
10 天
待售
公寓/合作社
$1,125,000
2 贝兹 2 浴室 1,662 平方英尺
5280 Ocean, Singer Island, FL 33404
2512 La Cristal, Palm Beach Gardens, FL 33410 placeholder 2512 La Cristal, Palm Beach Gardens, FL 33410
11 天
待售
房屋
$669,000
3 贝兹 2 浴室 1,730 平方英尺
2512 La Cristal, Palm Beach Gardens, FL 33410
5080 Ocean, Singer Island, FL 33404 placeholder 5080 Ocean, Singer Island, FL 33404
12 天
待售
公寓/合作社
$1,199,000
2 贝兹 2 浴室 1,804 平方英尺
5080 Ocean, Singer Island, FL 33404
5070 Ocean, Singer Island, FL 33404 placeholder 5070 Ocean, Singer Island, FL 33404
13 天
待售
公寓/合作社
$929,000
2 贝兹 2 浴室 1,823 平方英尺
5070 Ocean, Singer Island, FL 33404
3630 Gardens, Palm Beach Gardens, FL 33410 placeholder 3630 Gardens, Palm Beach Gardens, FL 33410
-$140K (2026/01/06)
待售
公寓/合作社
$999,999
3 贝兹 3 浴室 2,494 平方英尺
3630 Gardens, Palm Beach Gardens, FL 33410
424 Ebbtide, North Palm Beach, FL 33408 placeholder 424 Ebbtide, North Palm Beach, FL 33408
21 天
待售
房屋
$1,050,000
4 贝兹 2 浴室 1,844 平方英尺
424 Ebbtide, North Palm Beach, FL 33408

The multiple listing information is provided by the Beaches MLS from a copyrighted compilation of listings. The compilation of listings and each individual listing are ©2026-present Beaches MLS. All Rights Reserved. The information provided is for consumers' personal, noncommercial use and may not be used for any purpose other than to identify prospective properties consumers may be interested in purchasing. All properties are subject to prior sale or withdrawal. All information provided is deemed reliable but is not guaranteed accurate, and should be independently verified. Listing courtesy of: IRE Investment