特性
探索我们的清单
聯繫
告诉我们您的需求

14001 GULF BOULEVARD UNIT 201

公寓/合作社 合同活跃
$599,000

BTC: 8.49571761

ETH: 297.33687424

11 天
2 贝兹
2 浴室
1,175 平方英尺
Est. 预计销售范围: $0 - $0
$0

总览

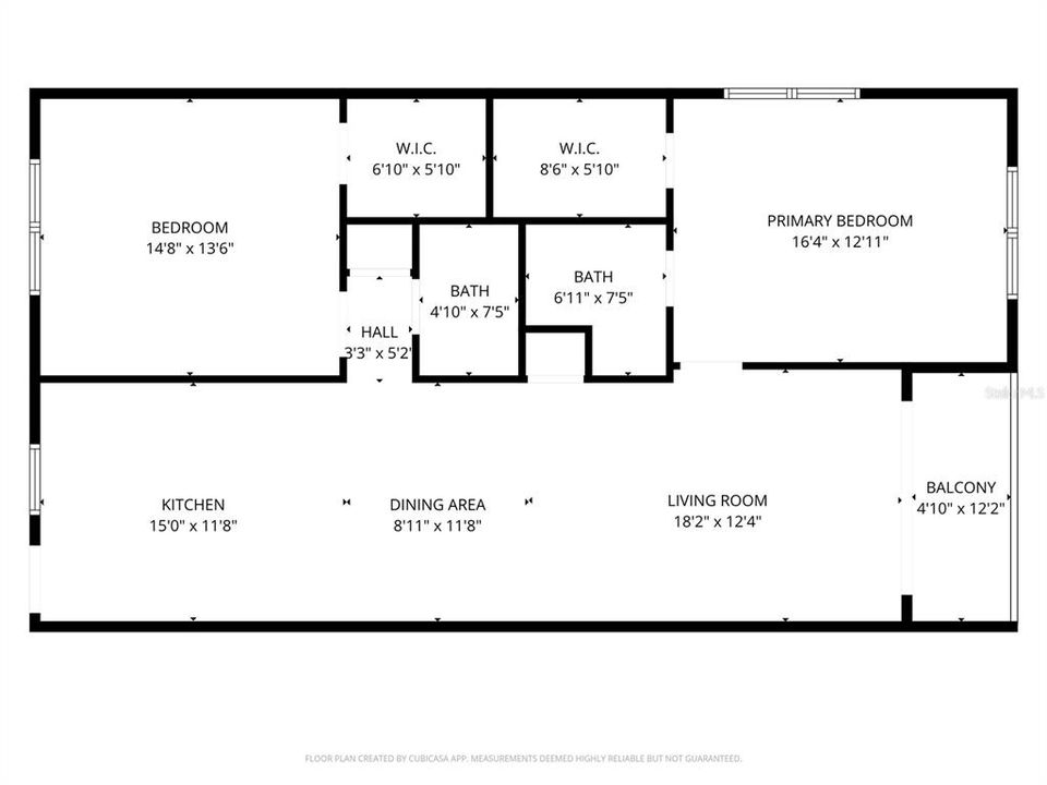
Under contract-accepting backup offers. Welcome to this End Unit 2 Bedroom 2 bathroom completely remodeled condo in the Heart of Madeira Beach. Enjoy Gulf views from your living room and balcony. Entering the 2nd floor unit is a Gorgeous Kitchen with white cabinetry, stainless steel appliances and Granite countertops. You will love the tray ceiling, recessed lighting and the Cabinet pantry for storage. There is a space for your breakfast bistro table. The dining area is defined by another tray ceiling. The living room allows you to relax in elegance with a a beautiful light grey stone wall and smokeless liquid fireplace. The hurricane rated slider opens to the front balcony with Beautiful Gulf Views. The primary bedroom has a walk in closet with built-ins and a 5 star rated bathroom with glass enclosed shower new vanity, quartz countertops. The second bedroom is big enough for 2 queen beds and has a walk in closet. The queen sized sofa sleeper allowing 8 guests people to sleep! Great for Air BnB or short term rental. There is a stack-able washer and dryer by the second bathroom that has also been totally renovated. The AC is New in 2025. Pocket doors replace the interior doors. 2 storage units on the ground floor are transferred with the unit to hold all your beach items! The roof was replaced in 2024 and the pool has been completely updated. You get the community pool, cable,internet, water, sewer, trash pest control and Building insurance. This is one of the extremely limited 2 bedroom units to come on the market and comes furnished. Whether you day to day home, vacation home or short term rental you will LOVE this condo in Madeira Beach.

位置

详情与特色

类型:
Residential
停车:
没有数据
建造年份:
1981
地段:
没有数据
暖气:
Central / Electric
价格/平方英尺:
$510
冷气:
Central Air
HOA:
没有数据
更多事实和特点
  • 地板

    • Carpet

    • Tile

    暖气

    • Central

    • Electric

    冷气

    • Central Air

    设备

    • Dishwasher

    • Dryer

    • Microwave

    • Range

    • Washer

    其他室内特点

    • Ceiling Fan(s)

    • Eating Space In Kitchen

    • Kitchen/Family Room Combo

    • Living Room/Dining Room Combo

    • Stone Counters

    卧室和浴室

    • 卧室: 2

    • 完整的浴室: 2

  • 房屋

    • 等级: One

    • 外观特征: Balcony / Sliding Doors

    其他财产信息

    • 包裹编号: 103115542980002010

  • 类型与风格

    • 财产种类: Residential

    • 属性子类型: Condominium

  • 公益

    • Public

  • 其他财政信息

    • HOA频率: Monthly

    • 年税额: $6,033

  • 来源细节

    • MLS ID: W7881174

    其他详情

    • 建筑材料: Block / Concrete / Stucco

    • 基金会详情: Slab

    • 洗衣功能: Laundry Closet

    • 方向面: Northeast

    • 生活区域: 1175

    • 水源: Public

    • 细分名称: MADEIRA PLACE CONDO

类似房屋

13253 BOCA CIEGA AVENUE placeholder 13253 BOCA CIEGA AVENUE
1 天
合同活跃
房屋
$449,000
3 贝兹 2 浴室 1,990 平方英尺
13253 BOCA CIEGA AVENUE
204 163RD AVENUE placeholder 204 163RD AVENUE
4 天
合同活跃
房屋
$475,000
3 贝兹 1 浴室 1,296 平方英尺
204 163RD AVENUE
15000 MADEIRA WAY UNIT 518 placeholder 15000 MADEIRA WAY UNIT 518
11 天
合同活跃
$635,548
1 浴室 534 平方英尺
15000 MADEIRA WAY UNIT 518
5802 BAY PINES LAKES BOULEVARD placeholder 5802 BAY PINES LAKES BOULEVARD
-$10K (2025/12/11)
合同活跃
房屋
$719,777
4 贝兹 2 浴室 1,927 平方英尺
5802 BAY PINES LAKES BOULEVARD
14204 E PARSLEY DRIVE placeholder 14204 E PARSLEY DRIVE
16 天
合同活跃
地段/土地
$455,000
0 room(s)
14204 E PARSLEY DRIVE
15000 MADEIRA WAY UNIT 510 placeholder 15000 MADEIRA WAY UNIT 510
19 天
合同活跃
$775,000
1 浴室 449 平方英尺
15000 MADEIRA WAY UNIT 510
15000 MADEIRA WAY UNIT 614 placeholder 15000 MADEIRA WAY UNIT 614
19 天
合同活跃
$635,548
1 浴室 451 平方英尺
15000 MADEIRA WAY UNIT 614
15000 MADEIRA WAY UNIT 622 placeholder 15000 MADEIRA WAY UNIT 622
20 天
合同活跃
$635,548
1 浴室 449 平方英尺
15000 MADEIRA WAY UNIT 622

The multiple listing information is provided by the Stellar MLS from a copyrighted compilation of listings. The compilation of listings and each individual listing are ©2026-present Stellar MLS. All Rights Reserved. The information provided is for consumers' personal, noncommercial use and may not be used for any purpose other than to identify prospective properties consumers may be interested in purchasing. All properties are subject to prior sale or withdrawal. All information provided is deemed reliable but is not guaranteed accurate, and should be independently verified. Listing courtesy of: 1% LISTS CENTRAL FLORIDA