特性
探索我们的清单
聯繫
告诉我们您的需求

3000 Ocean, Singer Island, FL 33404

公寓/合作社 合同活跃
$7,000

BTC: 0.23333333

ETH: 3.50000000

26 天
滨水区
2 贝兹
2 浴室
1,589 平方英尺
Est. 预计销售范围: $0 - $0
$0

总览

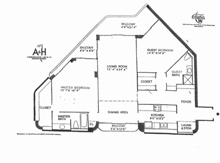
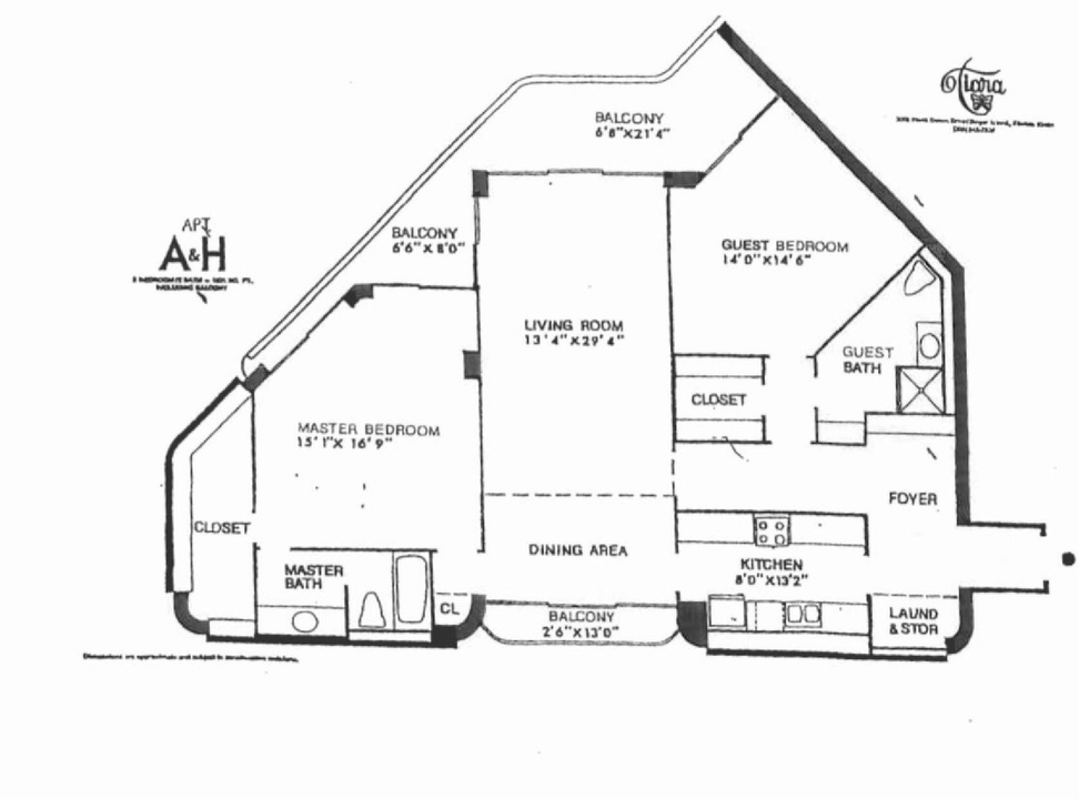
Available for seasonal lease 3 to 6 months, price dependent on lease length. This furnished 2BR/2BA condo is filled with natural light and offers beautiful ocean and Intracoastal views through floor-to-ceiling impact glass. Relax on your private balcony or unwind with spectacular sunsets. Available for seasonal lease, this residence offers comfort and convenience with resort-style amenities, including 24-hour staffed gate, lobby attendant, valet, tennis, pickleball, fitness center, oceanfront pool, hot tub, and guest suite. On-site dining includes the casual poolside Gazebo and the 43rd-floor Marquis Lounge with panoramic views. Minutes from shopping and dining in Palm Beach, West Palm Beach, and Palm Beach Gardens -- and just 20 minutes to PBI.

位置

详情与特色

类型:
Residential Lease
停车:
没有数据
建造年份:
1977
地段:
90 平方英尺
暖气:
没有数据
价格/平方英尺:
$4
冷气:
没有数据
HOA:
$1,500
更多事实和特点
  • 卧室和浴室

    • 卧室: 2

    • 完整的浴室: 2

  • 地段

    • 地段: 90 平方英尺

    其他财产信息

    • 包裹编号: 56434226070000081

  • 类型与风格

    • 财产种类: Residential Lease

    • 属性子类型: Condominium

  • 其他财政信息

    • HOA: $1,500

  • 来源细节

    • MLS ID: RX-11123617

    其他详情

    • 方向面: PGA Blvd east, continue to N Ocean Drive. Or, Blue Heron Blvd east, continue to N Ocean Drive.

    • 滨水区: 是

    • 车库空间: 1

    • 车库: 是

    • 生活区域: 1589

    • 细分名称: TIARA CONDO

类似房屋

3000 Ocean, Singer Island, FL 33404 placeholder 3000 Ocean, Singer Island, FL 33404
合同活跃
公寓/合作社
$5,100
1 贝兹 1 浴室 1,000 平方英尺
3000 Ocean, Singer Island, FL 33404
4200 Ocean, Singer Island, FL 33404 placeholder 4200 Ocean, Singer Island, FL 33404
7 天
合同活跃
公寓/合作社
$7,500
2 贝兹 2 浴室 1,210 平方英尺
4200 Ocean, Singer Island, FL 33404
3000 Ocean, Singer Island, FL 33404 placeholder 3000 Ocean, Singer Island, FL 33404
14 天
合同活跃
公寓/合作社
$5,000
1 贝兹 1 浴室 1,000 平方英尺
3000 Ocean, Singer Island, FL 33404
3000 Ocean, Singer Island, FL 33404 placeholder 3000 Ocean, Singer Island, FL 33404
16 天
合同活跃
公寓/合作社
$8,500
2 贝兹 2 浴室 1,600 平方英尺
3000 Ocean, Singer Island, FL 33404
5420 Ocean, Singer Island, FL 33404 placeholder 5420 Ocean, Singer Island, FL 33404
21 天
合同活跃
公寓/合作社
$6,000
2 贝兹 2 浴室 1,457 平方英尺
5420 Ocean, Singer Island, FL 33404
125 S Ocean Ave # 400, Palm Beach Shores FL 33404 placeholder 125 S Ocean Ave # 400, Palm Beach Shores FL 33404
24 天
合同活跃
公寓/合作社
$4,950
2 贝兹 2 浴室 1,064 平方英尺
125 S Ocean Ave # 400, Palm Beach Shores FL 33404
5380 Ocean, Singer Island, FL 33404 placeholder 5380 Ocean, Singer Island, FL 33404
25 天
合同活跃
公寓/合作社
$5,000
2 贝兹 2 浴室 1,586 平方英尺
5380 Ocean, Singer Island, FL 33404
2640 Lake Shore, Singer Island, FL 33404 placeholder 2640 Lake Shore, Singer Island, FL 33404
31 天
合同活跃
公寓/合作社
$8,500
3 贝兹 3 浴室 1,800 平方英尺
2640 Lake Shore, Singer Island, FL 33404

The multiple listing information is provided by the Beaches MLS from a copyrighted compilation of listings. The compilation of listings and each individual listing are ©2025-present Beaches MLS. All Rights Reserved. The information provided is for consumers' personal, noncommercial use and may not be used for any purpose other than to identify prospective properties consumers may be interested in purchasing. All properties are subject to prior sale or withdrawal. All information provided is deemed reliable but is not guaranteed accurate, and should be independently verified. Listing courtesy of: The Keyes Company (PBG)