特性
探索我们的清单
聯繫
告诉我们您的需求

3420 Ocean, Highland Beach, FL 33487

公寓/合作社 合同活跃
$1,130,000

BTC: 13.08627678

ETH: 386.19275461

-$20K (2025/10/30)
130 天
滨水区
2 贝兹
2 浴室
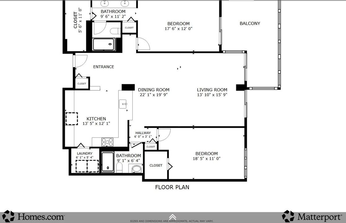
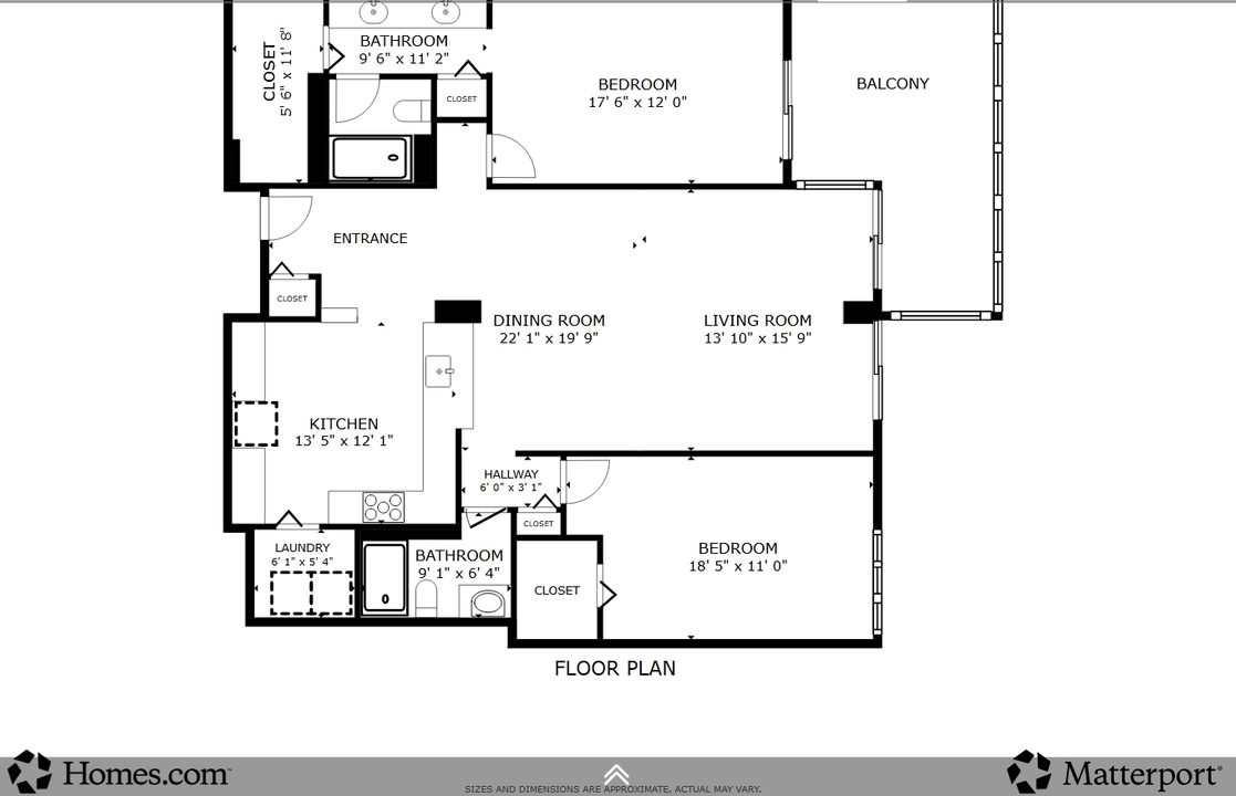
1,452 平方英尺
Est. 预计销售范围: $0 - $0
$0

总览

Beautifully renovated and thoughtfully redesigned 11th floor condo featuring a stunning reimagined, open kitchen with high end finishes. Elegant bathrooms create a refined, contemporary, and comfortable home. Stunning ocean views from every room. Turnkey or Furniture negotiable. 40 year certification complete and fully funding reserves. New roof, 2024! Modern lobby in 2026- assessment paid. See photos for renderings. See the Matterport Video. Enjoy the spacious balcony for relaxing or hosting guests. PRIVATE OCEANFRONT BEACH CLUB DIRECTLY on the sand, resort style pools, hot tubs, fitness center, club rooms and full kitchen, barbecues, and much more! Amenities include TENNIS, pickle ball, bocce ball, boat, dockage, and much more. Ideal garage parking space 69, close to the lobby entrance

位置

详情与特色

类型:
Residential
停车:
Garage - Building
建造年份:
1983
地段:
没有数据
暖气:
Central Individual / Electric
价格/平方英尺:
$778
冷气:
Central Individual / Electric
HOA:
没有数据
更多事实和特点
  • 地板

    • Ceramic Tile

    • Vinyl Floor

    暖气

    • Central Individual

    • Electric

    冷气

    • Central Individual

    • Electric

    设备

    • Cooktop

    • Dishwasher

    • Disposal

    • Dryer

    • Ice Maker

    • Microwave

    • Refrigerator

    • Washer

    其他室内特点

    • Built-in Shelves

    • Pantry

    • Split Bedroom

    • Walk-in Closet

    卧室和浴室

    • 卧室: 2

    • 完整的浴室: 2

  • 停车

    • Garage - Building

    其他财产信息

    • 包裹编号: 24434633240001115

    • 分区: RMM(ci

  • 类型与风格

    • 财产种类: Residential

    • 属性子类型: Condominium

  • 公益

    • Cable

    • Electric

    • Public Sewer

    • Public Water

  • 其他财政信息

    • 年税额: $8,920

  • 来源细节

    • MLS ID: RX-11105270

    其他详情

    • 建筑材料: Concrete / Metal / Other

    • 洗衣功能: Washer and Dryer

    • 天井和门廊特色: Balcony

    • 方向面: Use GPS - West side of A1A South of Linton Blvd., North of Spanish River Blvd. in Highland Beach. Coronado is on the Intracoastal and Beach club is directly on the ocean.

    • 滨水区: 是

    • 车库空间: 1

    • 车库: 是

    • 生活区域: 1452

    • 细分名称: CORONADO AT HIGHLAND BEACH CONDO

类似房屋

3361 4th, Boca Raton, FL 33431 placeholder 3361 4th, Boca Raton, FL 33431
8 天
合同活跃
房屋
$1,150,000
4 贝兹 3 浴室 2,478 平方英尺
3361 4th, Boca Raton, FL 33431
515 3rd, Delray Beach, FL 33483 placeholder 515 3rd, Delray Beach, FL 33483
15 天
合同活跃
房屋
$850,000
4 贝兹 2 浴室 1,482 平方英尺
515 3rd, Delray Beach, FL 33483
4201 Ocean, Boca Raton, FL 33431 placeholder 4201 Ocean, Boca Raton, FL 33431
23 天
合同活跃
公寓/合作社
$918,000
2 贝兹 2 浴室 1,697 平方英尺
4201 Ocean, Boca Raton, FL 33431
3420 Ocean, Highland Beach, FL 33487 placeholder 3420 Ocean, Highland Beach, FL 33487
29 天
合同活跃
公寓/合作社
$827,000
2 贝兹 2 浴室 1,452 平方英尺
3420 Ocean, Highland Beach, FL 33487
2220 Ocean, Delray Beach, FL 33483 placeholder 2220 Ocean, Delray Beach, FL 33483
31 天
合同活跃
公寓/合作社
$835,000
2 贝兹 2 浴室 1,496 平方英尺
2220 Ocean, Delray Beach, FL 33483
401 Country Club, Boca Raton, FL 33487 placeholder 401 Country Club, Boca Raton, FL 33487
35 天
合同活跃
房屋
$949,000
4 贝兹 2 浴室 2,062 平方英尺
401 Country Club, Boca Raton, FL 33487
3908 Ocean, Highland Beach, FL 33487 placeholder 3908 Ocean, Highland Beach, FL 33487
58 天
合同活跃
公寓/合作社
$1,175,000
2 贝兹 2 浴室 2,011 平方英尺
3908 Ocean, Highland Beach, FL 33487
3400 Ocean, Highland Beach, FL 33487 placeholder 3400 Ocean, Highland Beach, FL 33487
105 天
合同活跃
公寓/合作社
$1,250,000
2 贝兹 2 浴室 1,433 平方英尺
3400 Ocean, Highland Beach, FL 33487

The multiple listing information is provided by the Beaches MLS from a copyrighted compilation of listings. The compilation of listings and each individual listing are ©2025-present Beaches MLS. All Rights Reserved. The information provided is for consumers' personal, noncommercial use and may not be used for any purpose other than to identify prospective properties consumers may be interested in purchasing. All properties are subject to prior sale or withdrawal. All information provided is deemed reliable but is not guaranteed accurate, and should be independently verified. Listing courtesy of: John P. O'Grady LLC