特性
探索我们的清单
聯繫
告诉我们您的需求

6336 BUFORD STREET UNIT 405

公寓/合作社 待售
$385,000

BTC: 12.83333333

ETH: 192.50000000

6 天
2 贝兹
2 浴室
1,810 平方英尺
Est. 预计销售范围: $0 - $0
$0

总览

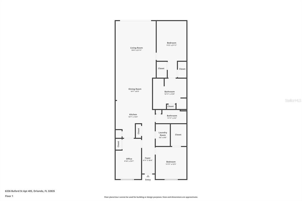
RARE OPPORTUNITY to own this 2 bedroom 2 bathroom WATERFRONT condo with a PRIVATE BALCONY in a GATED COMMUNITY with 24/7 security and BREATHTAKING VIEWS of Turkey Lake! With 1,810 sq ft of living space, this 4th floor condo offers spectacular views overlooking the lake, as well as night time fireworks from Disney, Universal Studios and newly opened Epic Universe. This condo is located in the highly desirable MetroWest area of Orlando enjoying Florida living in luxurious style. This condo has so much to offer, open floor plan layout with natural light, high ceilings and spacious living space. The kitchen boasts all stainless steel appliances, granite countertops, and ample cabinetry space. The primary suite features DOUBLE WALK-IN CLOSETS, large en-suite bathroom with dual vanity sinks, walk-in shower and tub with separate access to the balcony! Additional to the two bedrooms there is a room for an office or den. This condo is the only stack in the building with this unique layout and a totally PRIVATE BALCONY. Recent upgrades include a new HVAC 2024, REFRIGERATOR 2023, DISHWASHER 2023, MICROWAVE 2023, DRYER 2025. The OVERSIZED BALCONY is the perfect area to entertain guests or simply enjoy your coffee surrounded by amazing views. Includes a covered garage space and guest parking. Residents of the Promenade community enjoy lush landscaping 24/7 security, access to a community resort style pool, gym clubhouse, and a scenic fishing pier. The building is secured with entry access codes for your peace of mind. The beautifully lit-up fishing pier, with a covered cabana space, provides the perfect place to enjoy fresh air and lake views. Enjoy seasonal boat races and capture morning sunrises and evening fireworks from Universal Theme Park and Disney World right from the comfort of your home! Prime Location this condo is surrounded by local cafes, fine dining, restaurants, only minutes from Valencia College, Zoned for top rated schools and shopping, with only a 15-minute drive to downtown Orlando. Whether you’re searching for your next home or a solid investment opportunity, this MetroWest condo checks all the boxes. Make it yours today, schedule a private showing!

位置

详情与特色

类型:
Residential
停车:
Assigned / Covered / Guest
建造年份:
2005
地段:
没有数据
暖气:
Central / Electric
价格/平方英尺:
$213
冷气:
Central Air
HOA:
$35
更多事实和特点
  • 地板

    • Ceramic Tile

    • Hardwood

    暖气

    • Central

    • Electric

    冷气

    • Central Air

    设备

    • Dishwasher

    • Disposal

    • Dryer

    • Microwave

    • Range

    • Refrigerator

    • Washer

    其他室内特点

    • Ceiling Fan(s)

    • High Ceilings

    • Living Room/Dining Room Combo

    • Open Floorplan

    • Walk-In Closet(s)

    卧室和浴室

    • 卧室: 2

    • 完整的浴室: 2

  • 停车

    • Assigned

    • Covered

    • Guest

    房屋

    • 等级: One

    • 外观特征: Balcony / Sliding Doors

    其他财产信息

    • 包裹编号: 122328725602405

    • 分区: AC-2/RP

  • 类型与风格

    • 财产种类: Residential

    • 属性子类型: Condominium

  • 公益

    • BB/HS Internet Available

    • Cable Connected

    • Street Lights

  • 其他财政信息

    • HOA: $35

    • HOA频率: Monthly

    • 年税额: $3,124

  • 来源细节

    • MLS ID: O6362160

    其他详情

    • 建筑材料: Block / Stucco

    • 基金会详情: Slab

    • 洗衣功能: Inside

    • 地段特征: In County / Sidewalk

    • 天井和门廊特色: Covered / Patio / Rear Porch

    • 方向面: North

    • 水体名称: TURKEY LAKE

    • 生活区域: 1810

    • 水源: Public

    • 细分名称: PROMENADE PH 2

类似房屋

2226 FIESTA COURT placeholder 2226 FIESTA COURT
待售
房屋
$325,000
5 贝兹 2 浴室 1,520 平方英尺
2226 FIESTA COURT
7550 HERRICKS LOOP placeholder 7550 HERRICKS LOOP
待售
房屋
$425,000
3 贝兹 2 浴室 1,397 平方英尺
7550 HERRICKS LOOP
2865 POLANA STREET UNIT 103 placeholder 2865 POLANA STREET UNIT 103
1 天
待售
联排别墅
$295,000
2 贝兹 2 浴室 1,546 平方英尺
2865 POLANA STREET UNIT 103
434 RING ROAD placeholder 434 RING ROAD
2 天
待售
商业的
$325,000
0 room(s) 1,866 平方英尺
434 RING ROAD
5610 CLEARVIEW DRIVE placeholder 5610 CLEARVIEW DRIVE
5 天
待售
房屋
$452,000
3 贝兹 1 浴室 1,050 平方英尺
5610 CLEARVIEW DRIVE
4749 VARGAS STREET placeholder 4749 VARGAS STREET
6 天
待售
房屋
$324,900
4 贝兹 2 浴室 1,556 平方英尺
4749 VARGAS STREET
3001 BARRYMORE COURT placeholder 3001 BARRYMORE COURT
7 天
待售
房屋
$400,000
3 贝兹 2 浴室 1,615 平方英尺
3001 BARRYMORE COURT
5121 LUNA NEGRA DRIVE placeholder 5121 LUNA NEGRA DRIVE
8 天
待售
房屋
$315,000
3 贝兹 2 浴室 1,170 平方英尺
5121 LUNA NEGRA DRIVE

The multiple listing information is provided by the Stellar MLS from a copyrighted compilation of listings. The compilation of listings and each individual listing are ©2025-present Stellar MLS. All Rights Reserved. The information provided is for consumers' personal, noncommercial use and may not be used for any purpose other than to identify prospective properties consumers may be interested in purchasing. All properties are subject to prior sale or withdrawal. All information provided is deemed reliable but is not guaranteed accurate, and should be independently verified. Listing courtesy of: AK PROPERTY BROKERS INC