特性
探索我们的清单
聯繫
告诉我们您的需求

7980 SOUTHERN PINES DRIVE

公寓/合作社 待售
$218,000

BTC: 3.23600720

ETH: 111.79487179

36 天
3 贝兹
2 浴室
1,640 平方英尺
Est. 预计销售范围: $0 - $0
$0

总览

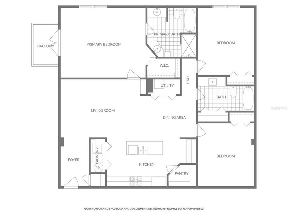
One or more photo(s) has been virtually staged. Welcome to this bright and open 3rd floor Condo in the private yet perfectly located Southern Pines Condominium Community. With 3 bedrooms and 2 bathrooms this condo is perfect for your family to call home. Don't need all 3 bedrooms, use one for an office! This condo sits on the top floor and boasts 10-foot ceilings, vinyl plank flooring throughout the living spaces and kitchen, with carpets freshly cleaned in all bedrooms, and tile in both bathrooms. The kitchen is open and spacious with a large pantry and huge island to entertain at. The primary bedroom has beautiful French doors leading to a private balcony to enjoy sunsets in the evenings. The primary bathroom has both a walk-in shower as well as a tub, dual sinks and plenty of room to have your very own spa like space to unwind. Along with the condo, you can enjoy all the amenities the community has to offer. Not one but TWO swimming pools. The first is outside, the second inside, and the cherry on top, a spa! No need to pay for a gym membership, with access to the private gym on premises. This is a unit you have to see to believe, make an appointment with your realtor today!

位置

详情与特色

类型:
Residential
停车:
没有数据
建造年份:
2008
地段:
0.05 英亩
暖气:
Central
价格/平方英尺:
$133
冷气:
Central Air
HOA:
没有数据
更多事实和特点
  • 地板

    • Carpet

    • Ceramic Tile

    • Luxury Vinyl

    暖气

    • Central

    冷气

    • Central Air

    设备

    • Convection Oven

    • Dishwasher

    • Dryer

    • Electric Water Heater

    • Exhaust Fan

    • Microwave

    • Range

    • Range Hood

    • Refrigerator

    • Washer

    其他室内特点

    • Ceiling Fan(s)

    • Crown Molding

    • Eating Space In Kitchen

    • High Ceilings

    • Kitchen/Family Room Combo

    • Living Room/Dining Room Combo

    • Open Floorplan

    • Primary Bedroom Main Floor

    • Solid Surface Counters

    • Thermostat

    • Walk-In Closet(s)

    • Window Treatments

    卧室和浴室

    • 卧室: 3

    • 完整的浴室: 2

  • 房屋

    • 等级: One

    • 私人泳池: 是

    • 外观特征: Awning(s) / Lighting / Private Entrance / Private Mailbox / Sidewalk / Storage

    地段

    • 地段: 0.05 英亩

    其他财产信息

    • 包裹编号: R2922219904700500533

    • 分区: RES

  • 类型与风格

    • 财产种类: Residential

    • 属性子类型: Condominium

  • 公益

    • Electricity Connected

  • 其他财政信息

    • HOA频率: Monthly

    • 年税额: $847

  • 来源细节

    • MLS ID: G5105100

    其他详情

    • 建筑材料: Concrete

    • 基金会详情: Slab

    • 洗衣功能: In Kitchen

    • 天井和门廊特色: Patio

    • 泳池特色: Heated / In Ground / Indoor / Outside Bath Access

    • 方向面: East

    • 建筑风格: Contemporary

    • 车库空间: 2

    • 附属车库: 是

    • 车库: 是

    • 生活区域: 1640

    • 水源: Public

    • 细分名称: SOUTHERN PINES CONDO

类似房屋

6633 SUMMIT VIEW DRIVE placeholder 6633 SUMMIT VIEW DRIVE
9 天
待售
地段/土地
$169,000
0 room(s)
6633 SUMMIT VIEW DRIVE
16154 FORT MEYERS STREET placeholder 16154 FORT MEYERS STREET
27 天
待售
$210,000
3 贝兹 2 浴室 1,440 平方英尺
16154 FORT MEYERS STREET
7504 MIA VINE DRIVE placeholder 7504 MIA VINE DRIVE
-$17K (2025/12/30)
待售
房屋
$278,980
3 贝兹 2 浴室 1,269 平方英尺
7504 MIA VINE DRIVE
524 EAST AVENUE placeholder 524 EAST AVENUE
-$10K (2025/11/21)
待售
房屋
$237,000
3 贝兹 2 浴室 2,052 平方英尺
524 EAST AVENUE
6601 LONGBOAT DRIVE placeholder 6601 LONGBOAT DRIVE
-$501 (2026/01/05)
待售
房屋
$279,499
3 贝兹 2 浴室 1,516 平方英尺
6601 LONGBOAT DRIVE
0 PONCE DE LEON BOULEVARD placeholder 0 PONCE DE LEON BOULEVARD
80 天
待售
地段/土地
$200,000
0 room(s)
0 PONCE DE LEON BOULEVARD
16119 NAPLES STREET placeholder 16119 NAPLES STREET
-$30K (2026/01/02)
待售
$220,000
4 贝兹 2 浴室 1,782 平方英尺
16119 NAPLES STREET
839 VILLAGE DRIVE placeholder 839 VILLAGE DRIVE
86 天
待售
联排别墅
$229,900
2 贝兹 2 浴室 1,142 平方英尺
839 VILLAGE DRIVE

The multiple listing information is provided by the Stellar MLS from a copyrighted compilation of listings. The compilation of listings and each individual listing are ©2026-present Stellar MLS. All Rights Reserved. The information provided is for consumers' personal, noncommercial use and may not be used for any purpose other than to identify prospective properties consumers may be interested in purchasing. All properties are subject to prior sale or withdrawal. All information provided is deemed reliable but is not guaranteed accurate, and should be independently verified. Listing courtesy of: FLORIDA HOMES REALTY & MORTGAGE