特性
探索我们的清单
聯繫
告诉我们您的需求

8749 THE ESPLANADE UNIT 11

公寓/合作社 合同活跃
$549,990

BTC: 18.33300000

ETH: 274.99500000

-$19K (2025/10/30)
45 天
2 贝兹
2 浴室
1,824 平方英尺
Est. 预计销售范围: $0 - $0
$0

总览

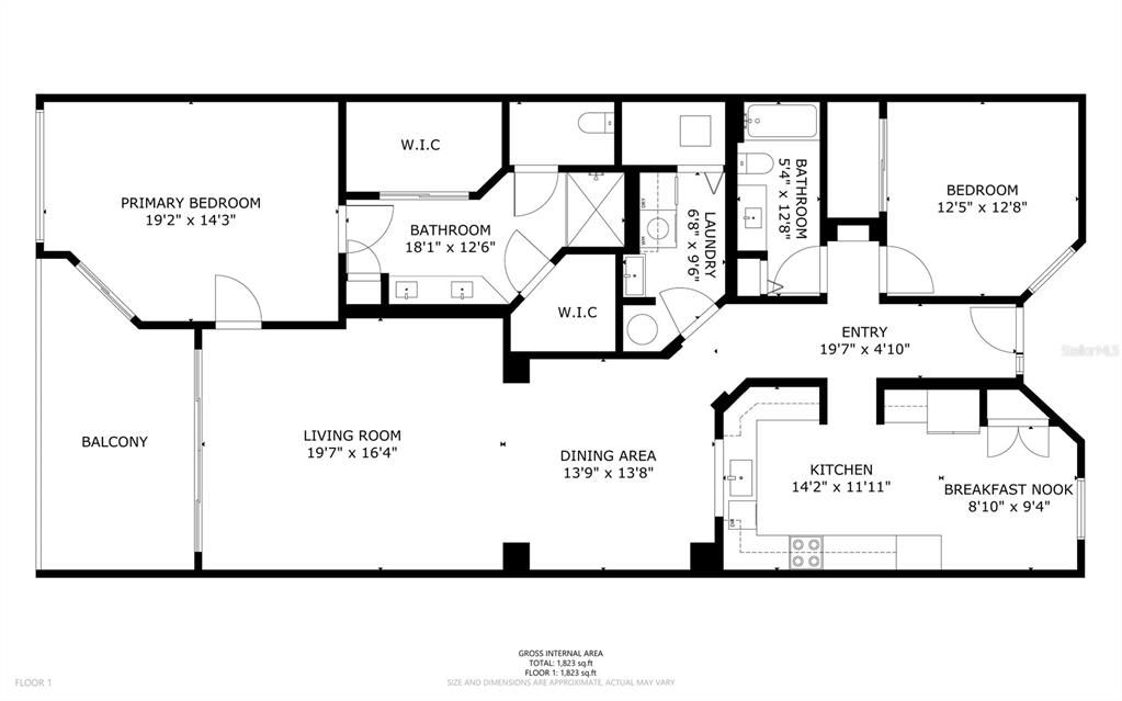
Under contract-accepting backup offers. Beautifully remodeled with breathtaking views of Big Sand Lake! Located in the heart of Dr. Phillips, this stunning 2-bedroom, 2-bath residence in the guard-gated community of Vizcaya offers luxury living at its finest. Situated in an elevator building, this move-in-ready unit features a modern, open floor plan with high-end finishes throughout, including updated flooring, lighting, quartz countertops, door hardware, paint, tile, custom drapes, and so much more! Enjoy unobstructed views of Big Sand Lake from your private balcony, living room, and primary suite of this South facing unit. The spacious kitchen opens to the dining and living areas, perfect for entertaining. The spa-like primary suite bathroom includes dual sinks, a large walk-in shower, and two walk-in closets for plenty of storage. Additional features include assigned garage parking, a storage unit, and a 24-hour manned gate. Community amenities include 2 resort-style pools, a clubhouse, fitness center, and 2 tennis courts. Just minutes to Restaurant Row, major highways, theme parks, and all that vibrant Dr. Phillips has to offer. A rare opportunity to own a beautifully updated lakefront condo in one of Orlando’s most desirable neighborhoods! Perfect for anyone looking for the lock and leave or maintenance-free lifestyle! **Vizcaya doesn't allow Open Houses... so set up your private showing today!**

位置

详情与特色

类型:
Residential
停车:
Assigned / Covered / Garage Faces Side / Guest / Under Building
建造年份:
2006
地段:
0.40 英亩
暖气:
Central / Electric
价格/平方英尺:
$302
冷气:
Central Air
HOA:
$724
更多事实和特点
  • 地板

    • Porcelain Tile

    暖气

    • Central

    • Electric

    冷气

    • Central Air

    设备

    • Built-In Oven

    • Cooktop

    • Dishwasher

    • Disposal

    • Dryer

    • Microwave

    • Refrigerator

    • Washer

    其他室内特点

    • Ceiling Fan(s)

    • Chair Rail

    • Crown Molding

    • Eating Space In Kitchen

    • Elevator

    • High Ceilings

    • Open Floorplan

    • Primary Bedroom Main Floor

    • Split Bedroom

    • Walk-In Closet(s)

    • Window Treatments

    卧室和浴室

    • 卧室: 2

    • 完整的浴室: 2

  • 停车

    • Assigned

    • Covered

    • Garage Faces Side

    • Guest

    • Under Building

    房屋

    • 等级: One

    • 外观特征: Balcony / Irrigation System / Private Mailbox / Rain Gutters / Sliding Doors / Storage / Tennis Court(s)

    地段

    • 地段: 0.40 英亩

    其他财产信息

    • 包裹编号: 352328898011110

    • 分区: P-D

  • 类型与风格

    • 财产种类: Residential

    • 属性子类型: Condominium

  • 公益

    • Electricity Connected

    • Public

    • Sewer Connected

    • Street Lights

    • Underground Utilities

    • Water Connected

  • 其他财政信息

    • HOA: $724

    • HOA频率: Monthly

    • 年税额: $2,691

  • 来源细节

    • MLS ID: O6350520

    其他详情

    • 建筑材料: Block / Concrete / Stucco

    • 基金会详情: Slab

    • 洗衣功能: Inside / Laundry Room

    • 天井和门廊特色: Covered / Rear Porch / Screened

    • 窗户功能: Drapes / Rods / Shutters / Window Treatments

    • 方向面: North

    • 车库空间: 1

    • 附属车库: 是

    • 车库: 是

    • 生活区域: 1824

    • 水源: Public

    • 细分名称: VIZCAYA HEIGHTS CONDO 07

类似房屋

9119 WINDJAMMER LANE placeholder 9119 WINDJAMMER LANE
2 天
合同活跃
房屋
$699,900
3 贝兹 2 浴室 2,106 平方英尺
9119 WINDJAMMER LANE
5036 SHOREWAY LOOP UNIT 30405 placeholder 5036 SHOREWAY LOOP UNIT 30405
7 天
合同活跃
公寓/合作社
$629,999
2 贝兹 2 浴室 2,097 平方英尺
5036 SHOREWAY LOOP UNIT 30405
7571 SOMERSET SHORES COURT placeholder 7571 SOMERSET SHORES COURT
9 天
合同活跃
联排别墅
$575,000
2 贝兹 2 浴室 2,224 平方英尺
7571 SOMERSET SHORES COURT
7532 TOSCANA BOULEVARD UNIT 521 placeholder 7532 TOSCANA BOULEVARD UNIT 521
18 天
合同活跃
公寓/合作社
$425,000
3 贝兹 2 浴室 2,085 平方英尺
7532 TOSCANA BOULEVARD UNIT 521
6135 HARDROCK CIRCLE placeholder 6135 HARDROCK CIRCLE
23 天
合同活跃
房屋
$499,900
4 贝兹 2 浴室 1,849 平方英尺
6135 HARDROCK CIRCLE
6261 SILVER GLEN COURT placeholder 6261 SILVER GLEN COURT
-$11K (2025/11/13)
合同活跃
房屋
$489,000
4 贝兹 2 浴室 1,671 平方英尺
6261 SILVER GLEN COURT
5000 CAYVIEW AVENUE UNIT 30408 placeholder 5000 CAYVIEW AVENUE UNIT 30408
-$20K (2025/09/30)
合同活跃
公寓/合作社
$520,000
3 贝兹 2 浴室 1,447 平方英尺
5000 CAYVIEW AVENUE UNIT 30408
8003 MARCELLA DRIVE placeholder 8003 MARCELLA DRIVE
-$20K (2025/11/03)
合同活跃
房屋
$615,000
3 贝兹 2 浴室 2,296 平方英尺
8003 MARCELLA DRIVE

The multiple listing information is provided by the Stellar MLS from a copyrighted compilation of listings. The compilation of listings and each individual listing are ©2025-present Stellar MLS. All Rights Reserved. The information provided is for consumers' personal, noncommercial use and may not be used for any purpose other than to identify prospective properties consumers may be interested in purchasing. All properties are subject to prior sale or withdrawal. All information provided is deemed reliable but is not guaranteed accurate, and should be independently verified. Listing courtesy of: LAKESIDE REALTY