特性
探索我们的清单
聯繫
告诉我们您的需求

236 N SAINT THOMAS CIRCLE

待售
$209,900

BTC: 6.99666667

ETH: 104.95000000

46 天
滨水区
2 贝兹
2 浴室
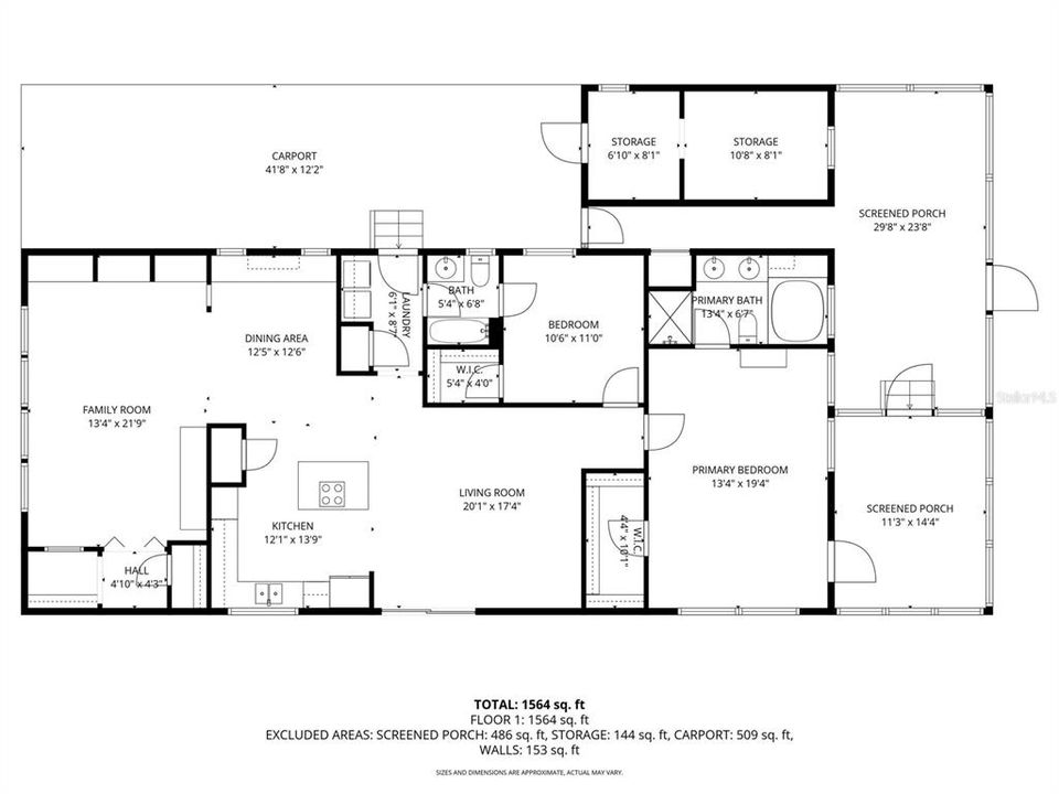
1,482 平方英尺
Est. 预计销售范围: $0 - $0
$0

总览

Welcome to Your Slice of Paradise! LOCATION * LOCATION * LOCATION More Pictures are coming soon! Discover waterfront living at its best in Caribbean Isles, a vibrant 55+ gated community in beautiful Apollo Beach, Florida. This charming 2-bedroom, 2-bath, Open Floor plan home is perfectly situated in one of the community’s most desirable waterfront locations, offering both comfort and coastal style. Step inside to an open floor plan designed for easy living and entertaining. The primary suite features its own private ensuite with a relaxing soaking tub and separate shower. Enjoy the perfect retreat after a day on the water. Just outside your back door, you’ll enjoy direct canal access to Tampa Bay, ideal for boating, kayaking, or simply unwinding as manatees and dolphins glide past. Don’t miss the Virtual Tour to truly appreciate the breathtaking water access and serene views this home offers. Be sure to click on the Virtual Tour to fully appreciate the incredible water access this home offers! But the lifestyle here is just as impressive as the home itself. Caribbean Isles offers everything an active adult could want: Direct water access for kayaking and boating, heated pool open year-round (80+ degrees), friendly games of bocce ball, shuffleboard, and horseshoes. Enjoy a lively clubhouse with a craft room, game room, billiards, darts, and bar shuffleboard and a calendar full of events, themed dinners, and dances to keep you entertained and connected. Located conveniently between Tampa and Sarasota/Bradenton, you're just a day trip away from world-class beaches, shopping, dining, and amusement parks, making every day feel like a vacation.

位置

详情与特色

类型:
Residential
停车:
没有数据
建造年份:
1986
地段:
0.16 英亩
暖气:
Central / Electric
价格/平方英尺:
$142
冷气:
Central Air
HOA:
$242
更多事实和特点
  • 地板

    • Carpet

    • Vinyl

    暖气

    • Central

    • Electric

    冷气

    • Central Air

    设备

    • Dishwasher

    • Dryer

    • Electric Water Heater

    • Refrigerator

    • Washer

    其他室内特点

    • Open Floorplan

    • Split Bedroom

    • Thermostat

    • Walk-In Closet(s)

    卧室和浴室

    • 卧室: 2

    • 完整的浴室: 2

  • 房屋

    • 等级: One

    • 外观特征: Private Mailbox / Rain Gutters

    地段

    • 地段: 0.16 英亩

    其他财产信息

    • 包裹编号: U22311960600000000116.0

    • 分区: PD

  • 类型与风格

    • 财产种类: Residential

    • 属性子类型: Manufactured Home

  • 公益

    • Cable Available

    • Electricity Connected

    • Fire Hydrant

  • 其他财政信息

    • HOA: $242

    • HOA频率: Monthly

    • 年税额: $2,050

  • 来源细节

    • MLS ID: TB8437075

    其他详情

    • 建筑材料: Metal Siding

    • 基金会详情: Crawlspace

    • 洗衣功能: Electric Dryer Hookup / Inside / Washer Hookup

    • 天井和门廊特色: Enclosed

    • 方向面: South

    • 其他结构: Shed(s)

    • 建筑风格: Traditional

    • 滨水区: 是

    • 生活区域: 1482

    • 水源: Public

    • 细分名称: CARIBBEAN ISLES RESIDENTIAL CO

类似房屋

12619 KINGS CROSSING DRIVE placeholder 12619 KINGS CROSSING DRIVE
1 天
待售
联排别墅
$235,000
2 贝兹 2 浴室 1,360 平方英尺
12619 KINGS CROSSING DRIVE
6225 FLAMINGO DRIVE placeholder 6225 FLAMINGO DRIVE
1 天
待售
地段/土地
$154,900
0 room(s)
6225 FLAMINGO DRIVE
12619 KINGS CROSSING DRIVE placeholder 12619 KINGS CROSSING DRIVE
3 天
待售
联排别墅
$235,000
2 贝兹 2 浴室 1,360 平方英尺
12619 KINGS CROSSING DRIVE
329 SENECA FALLS DRIVE placeholder 329 SENECA FALLS DRIVE
-$6K (2025/12/04)
待售
房屋
$269,000
2 贝兹 2 浴室 1,461 平方英尺
329 SENECA FALLS DRIVE
126 W SAINT JOHNS WAY placeholder 126 W SAINT JOHNS WAY
24 天
待售
$259,900
2 贝兹 2 浴室 1,012 平方英尺
126 W SAINT JOHNS WAY
209 N SAINT THOMAS CIRCLE placeholder 209 N SAINT THOMAS CIRCLE
26 天
待售
$265,000
2 贝兹 2 浴室 1,689 平方英尺
209 N SAINT THOMAS CIRCLE
1028 APOLLO BEACH BOULEVARD UNIT 103 placeholder 1028 APOLLO BEACH BOULEVARD UNIT 103
-$67K (2025/12/04)
待售
公寓/合作社
$183,000
2 贝兹 2 浴室 1,084 平方英尺
1028 APOLLO BEACH BOULEVARD UNIT 103
1028 APOLLO BEACH BOULEVARD UNIT 2 placeholder 1028 APOLLO BEACH BOULEVARD UNIT 2
-$20K (2025/11/20)
待售
公寓/合作社
$210,000
2 贝兹 2 浴室 1,296 平方英尺
1028 APOLLO BEACH BOULEVARD UNIT 2

The multiple listing information is provided by the Stellar MLS from a copyrighted compilation of listings. The compilation of listings and each individual listing are ©2025-present Stellar MLS. All Rights Reserved. The information provided is for consumers' personal, noncommercial use and may not be used for any purpose other than to identify prospective properties consumers may be interested in purchasing. All properties are subject to prior sale or withdrawal. All information provided is deemed reliable but is not guaranteed accurate, and should be independently verified. Listing courtesy of: CARIBBEAN ISLE PROPERTY SALES INC.