特性
探索我们的清单
聯繫
告诉我们您的需求

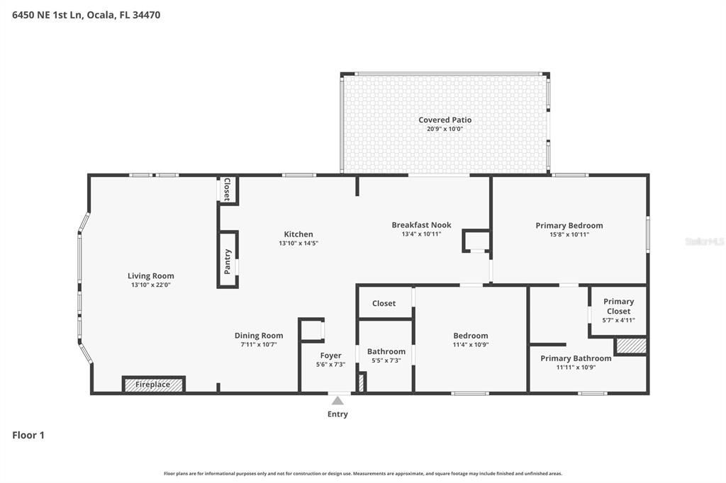
6450 NE 1ST LANE

合同活跃
$154,999

BTC: 2.27939706

ETH: 1,549.99000000

-$5K (2026/03/17)
26 天
2 贝兹
2 浴室
1,399 平方英尺
Est. 预计销售范围: $0 - $0
$0

总览

Under contract-accepting backup offers. Welcome to this charming and well-maintained 2 bedroom, 2 bathroom home located in beautiful Ocala—a city known for its scenic landscapes, horse country charm, and excellent outdoor recreation. Offering 1,399 sq ft of living space on a spacious quarter acre lot, this home provides a comfortable layout with generous living areas, a functional kitchen, and well-sized bedrooms. Major updates have already been completed, including a roof replacement in 2013 and a new A/C system installed in 2016, new water heater 2023, giving you added peace of mind and long-term value. Step outside to enjoy the large backyard featuring a small greenhouse and storage shed, both included with the property—perfect for gardening enthusiasts, hobbies, or extra storage. The spacious yard offers plenty of room to relax, entertain, or expand your outdoor living space. Located just minutes from shopping, dining, and everyday conveniences, this home also offers easy access to some of Ocala’s most popular destinations including the natural beauty of Silver Springs State Park, the renowned World Equestrian Center, and the outdoor adventures of the Ocala National Forest. Whether you're looking for a full-time residence, seasonal Florida retreat, or investment opportunity, this property offers affordability, location, and outdoor lifestyle all in one.

位置

佛罗里达 OCALA 34470 合同活跃

详情与特色

类型:
Residential
停车:
没有数据
建造年份:
1983
地段:
0.25 英亩
暖气:
Central
价格/平方英尺:
$111
冷气:
Central Air
HOA:
$150
更多事实和特点
  • 地板

    • Laminate

    暖气

    • Central

    冷气

    • Central Air

    设备

    • Built-In Oven

    • Cooktop

    • Dishwasher

    • Refrigerator

    其他室内特点

    • Ceiling Fan(s)

    卧室和浴室

    • 卧室: 2

    • 完整的浴室: 2

  • 房屋

    • 等级: One

    • 外观特征: Rain Gutters

    地段

    • 地段: 0.25 英亩

    其他财产信息

    • 包裹编号: 3183008007

    • 分区: R4

  • 类型与风格

    • 财产种类: Residential

    • 属性子类型: Manufactured Home

  • 公益

    • Electricity Connected

  • 其他财政信息

    • HOA: $150

    • HOA频率: Monthly

    • 年税额: $905

  • 来源细节

    • MLS ID: OM720199

    其他详情

    • 建筑材料: Metal Siding

    • 基金会详情: Pillar/Post/Pier

    • 壁炉功能: Wood Burning

    • 洗衣功能: Outside

    • 方向面: East

    • 其他结构: Shed(s)

    • 壁炉: 是

    • 生活区域: 1399

    • 水源: Public

    • 地块大小: 104 x 105

    • 细分名称: OCALA EAST VILLAS

类似房屋

6500 NE 3RD STREET placeholder 6500 NE 3RD STREET
2 天
合同活跃
$139,900
2 贝兹 2 浴室 1,244 平方英尺
6500 NE 3RD STREET
40 TEAK RUN placeholder 40 TEAK RUN
19 天
合同活跃
房屋
$189,999
3 贝兹 2 浴室 1,118 平方英尺
40 TEAK RUN
1 ALMOND PASS placeholder 1 ALMOND PASS
24 天
合同活跃
房屋
$200,000
2 贝兹 2 浴室 1,568 平方英尺
1 ALMOND PASS
3800 E SILVER SPRINGS BOULEVARD UNIT 10 placeholder 3800 E SILVER SPRINGS BOULEVARD UNIT 10
29 天
合同活跃
公寓/合作社
$153,999
2 贝兹 2 浴室 1,066 平方英尺
3800 E SILVER SPRINGS BOULEVARD UNIT 10
6430 NE 1ST LANE placeholder 6430 NE 1ST LANE
-$5K (2026/03/06)
合同活跃
$145,000
3 贝兹 2 浴室 1,302 平方英尺
6430 NE 1ST LANE
3910 NE 22 LANE placeholder 3910 NE 22 LANE
-$30K (2026/01/20)
合同活跃
房屋
$189,950
3 贝兹 2 浴室 1,584 平方英尺
3910 NE 22 LANE

The multiple listing information is provided by the Stellar MLS from a copyrighted compilation of listings. The compilation of listings and each individual listing are ©2026-present Stellar MLS. All Rights Reserved. The information provided is for consumers' personal, noncommercial use and may not be used for any purpose other than to identify prospective properties consumers may be interested in purchasing. All properties are subject to prior sale or withdrawal. All information provided is deemed reliable but is not guaranteed accurate, and should be independently verified. Listing courtesy of: CENTRAL CITY REALTY