特性
探索我们的清单
聯繫
告诉我们您的需求

商业的 待售
$2,795,000

BTC: 93.16666667

ETH: 1,397.50000000

29 天
0 room(s)
Est. 预计销售范围: $0 - $0
$0

总览

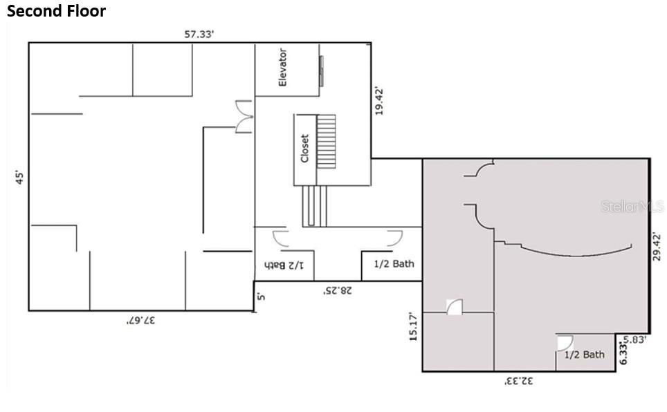
Commercial building/triple-frontage lot located at the intersection of José Martí, Padre Rufo, and Jamaica Streets (Floral Park, Hato Rey, San Juan). Lot size: 1,618 m²; construction: 14,227 sq ft distributed across a basement plus 3 levels. Reinforced-concrete structure formerly used as a clinical laboratory and medical offices. First level with multiple rooms (offices, X-ray, MRI), 8 half baths and 1 full bath; basement: 1,381 sq ft. Second level with offices, conference room, cubicles, and 3 half baths. Small third level with rooftop access. Fourteen open parking spaces. Zoning: R-I. Flood zone: Zone X (outside flood-risk area). Highest and best use: commercial. The property requires repairs.

位置

佛罗里达 HATO REY 00917 商业的 待售

详情与特色

类型:
Commercial Sale
停车:
没有数据
建造年份:
1985
地段:
0.40 英亩
暖气:
没有数据
价格/平方英尺:
没有数据
冷气:
None
HOA:
没有数据
更多事实和特点
  • 冷气

    • None

  • 地段

    • 地段: 0.40 英亩

    其他财产信息

    • 包裹编号: 06304213711902

  • 类型与风格

    • 财产种类: Commercial Sale

    • 属性子类型: Office

  • 来源细节

    • MLS ID: PR9117202

    其他详情

    • 建筑材料: Concrete

    • 基金会详情: Concrete Perimeter

类似房屋

1665 PLAYERA placeholder 1665 PLAYERA
待售
房屋
$3,100,000
4 贝兹 3 浴室 4,648 平方英尺
1665 PLAYERA
1507 ASHFORD AVE. AVENUE UNIT 1201 placeholder 1507 ASHFORD AVE. AVENUE UNIT 1201
8 天
待售
公寓/合作社
$3,200,000
3 贝兹 2 浴室 2,412 平方英尺
1507 ASHFORD AVE. AVENUE UNIT 1201
20 WASHINGTON STREET UNIT PH-C placeholder 20 WASHINGTON STREET UNIT PH-C
8 天
待售
顶层公寓
$2,375,000
2 贝兹 2 浴室 2,700 平方英尺
20 WASHINGTON STREET UNIT PH-C
1052 ASHFORD AVENUE UNIT 7C placeholder 1052 ASHFORD AVENUE UNIT 7C
14 天
待售
公寓/合作社
$3,150,000
3 贝兹 3 浴室 3,397 平方英尺
1052 ASHFORD AVENUE UNIT 7C
2003 ESPANA placeholder 2003 ESPANA
18 天
待售
房屋
$2,400,000
5 贝兹 3 浴室 3,767 平方英尺
2003 ESPANA
18 & 20 CALLE YARDLEY PLACE placeholder 18 & 20 CALLE YARDLEY PLACE
18 天
待售
房屋
$2,750,000
11 贝兹 6 浴室 4,802 平方英尺
18 & 20 CALLE YARDLEY PLACE
8 CALLE TAPIA placeholder 8 CALLE TAPIA
19 天
待售
房屋
$3,495,000
11 贝兹 12 浴室 5,078 平方英尺
8 CALLE TAPIA
8 CALLE TAPIA placeholder 8 CALLE TAPIA
19 天
待售
多户家庭
$3,495,000
0 room(s) 7,435 平方英尺
8 CALLE TAPIA

The multiple listing information is provided by the Stellar MLS from a copyrighted compilation of listings. The compilation of listings and each individual listing are ©2025-present Stellar MLS. All Rights Reserved. The information provided is for consumers' personal, noncommercial use and may not be used for any purpose other than to identify prospective properties consumers may be interested in purchasing. All properties are subject to prior sale or withdrawal. All information provided is deemed reliable but is not guaranteed accurate, and should be independently verified. Listing courtesy of: SUKSA REALTY