特性
探索我们的清单
聯繫
告诉我们您的需求

xxxx 37th Ave NE, Other City - In The State Of Florida FL 34120

地段/土地 待售
$90,000

BTC: 1.38461538

ETH: 47.36842105

63 天
0 room(s)
Est. 预计销售范围: $0 - $0
$0

总览

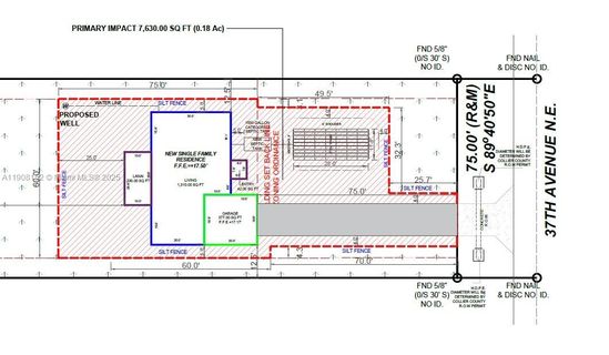
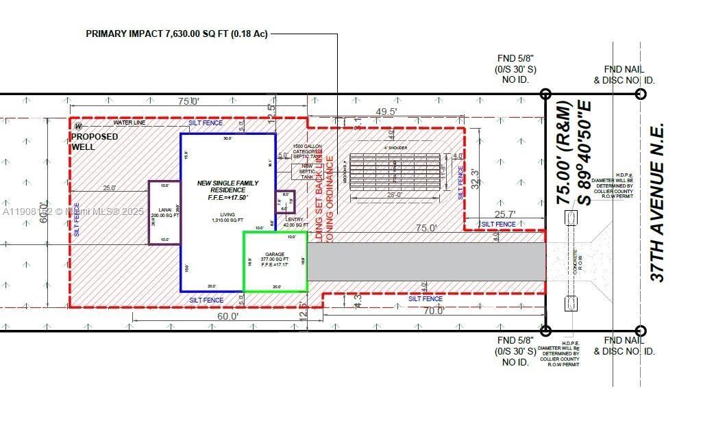
DEP Report available and ERP plans APPROVED for a 1310sf ; 2 car garage with a lanai. The ERP Permit has already been obtained—no waiting required. A current survey is also included. All supporting documents can be provided upon request. See picture of the floorplan attached. LOCATION, LOCATION, LOCATION! Off of Everglades Blvd and 37th Ave NE. This outstanding vacant lot presents an excellent opportunity for anyone to build their ideal home or retreat. Conveniently located just a short drive from Naples’ renowned beaches, top-rated schools, golf courses, shopping, and dining, this property combines privacy with accessibility. Don’t miss the chance to own a prime piece of Southwest Florida real estate.

位置

详情与特色

类型:
Land/Boat Docks
停车:
没有数据
建造年份:
没有数据
地段:
1.14 英亩
暖气:
没有数据
价格/平方英尺:
没有数据
冷气:
没有数据
HOA:
没有数据
更多事实和特点
  • 地段

    • 地段: 1.14 英亩

    其他财产信息

    • 包裹编号: 39960400009

  • 类型与风格

    • 财产种类: Land/Boat Docks

    • 属性子类型: Residential

  • 公益

    • None

  • 其他财政信息

    • 年税额: $499

  • 来源细节

    • MLS ID: A11908152

    其他详情

    • 地段特征: 1/2 To Less Than 3/4 Acre Lot / Other

    • 方向面: Northwest

    • 其他结构: None

    • 水源: None

    • 地块大小: 75x662

    • 细分名称: GOLDEN GATE ESTATES

类似房屋

3465 31ST AVENUE NE placeholder 3465 31ST AVENUE NE
-$1K (2026/01/06)
待售
地段/土地
$88,999
0 room(s)
3465 31ST AVENUE NE
XXX 18TH AVENUE NE placeholder XXX 18TH AVENUE NE
32 天
待售
地段/土地
$100,000
0 room(s)
XXX 18TH AVENUE NE
xxx 37TH AVE NE placeholder xxx 37TH AVE NE
65 天
待售
地段/土地
$90,000
0 room(s)
xxx 37TH AVE NE
2780 52 AVE NE, Naples FL 34120 placeholder 2780 52 AVE NE, Naples FL 34120
-$49K (2025/11/19)
待售
地段/土地
$90,000
0 room(s)
2780 52 AVE NE, Naples FL 34120
000 NE 18TH AVENUE placeholder 000 NE 18TH AVENUE
83 天
待售
地段/土地
$75,000
0 room(s)
000 NE 18TH AVENUE
50TH AVENUE NE placeholder 50TH AVENUE NE
89 天
待售
地段/土地
$115,000
0 room(s)
50TH AVENUE NE
0000 50th Ave NE, Naples FL 34120 placeholder 0000 50th Ave NE, Naples FL 34120
597 天
待售
地段/土地
$64,900
0 room(s)
0000 50th Ave NE, Naples FL 34120
0000 50TH AVENUE NE placeholder 0000 50TH AVENUE NE
597 天
待售
地段/土地
$64,900
0 room(s)
0000 50TH AVENUE NE

The multiple listing information is provided by the Miami Association of REALTORS® from a copyrighted compilation of listings. The compilation of listings and each individual listing are ©2026-present Miami Association of REALTORS®. All Rights Reserved. The information provided is for consumers' personal, noncommercial use and may not be used for any purpose other than to identify prospective properties consumers may be interested in purchasing. All properties are subject to prior sale or withdrawal. All information provided is deemed reliable but is not guaranteed accurate, and should be independently verified. Listing courtesy of: Fast Action Realty Inc