特性
探索我们的清单
聯繫
告诉我们您的需求

100 82ND AVENUE N

房屋 待售
$697,000

BTC: 10.34631660

ETH: 363.02083333

-$22K (2025/11/18)
65 天
4 贝兹
3 浴室
2,320 平方英尺
Est. 预计销售范围: $0 - $0
$0

总览

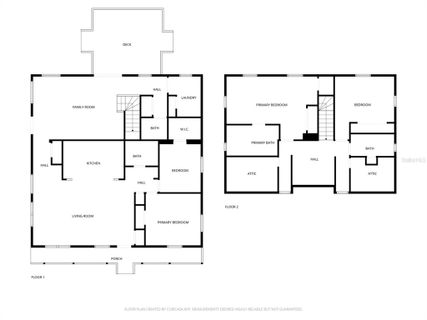
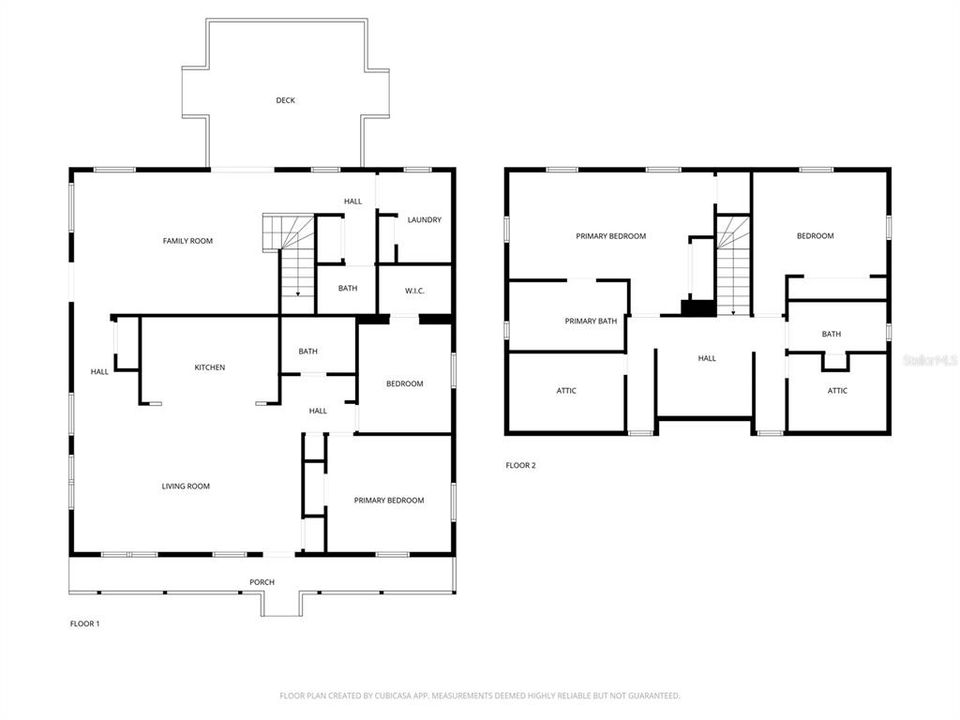
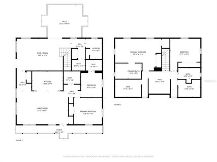
MODERN FARMHOUSE CHARM MEETS CONTEMPORARY COMFORT IN THIS NEWLY RENOVATED BEAUTY! Welcome to this stunning Modern Farmhouse–style residence, where timeless design meets everyday functionality. This spacious two-level single-family home offers an inviting blend of warmth, elegance, and modern convenience—perfectly situated on an oversized double lot with exceptional outdoor living spaces. Step through the cozy covered front porch and into a bright, open-concept lower level designed for both relaxing and entertaining. The front great room combines the living room, dining area, and gourmet kitchen into one seamless flow, highlighted by rich wood ceiling beams, 6-inch floor moldings, and luxury vinyl plank flooring throughout. The modern kitchen features gleaming stainless steel appliances, including a French door refrigerator, natural gas range with convection oven, dishwasher, and a microwave/convection combo oven. Elegant quartzite countertops and white wood cabinetry provide both beauty and function. At the rear of the home, a spacious family room opens through sliding glass doors onto a large TREX deck overlooking the fenced backyard—perfect for gatherings, play, or peaceful evenings outdoors. The lower level also includes two comfortable bedrooms, one and a half baths, and a large laundry room for added convenience. Upstairs, retreat to your primary suite, featuring a luxury ensuite bathroom with a freestanding soaking tub, oversized walk-in shower, and elegant modern finishes. A second bedroom, additional full bath, and a versatile loft space—ideal for a playroom, reading nook, or fitness area—complete the upper level. Outside, enjoy exceptional functionality with a detached two-car garage that includes a workshop area and a vintage full bathroom ready for renovation. (This area could easily be converted to an ADU for additional equity-earning potential!!) A circular driveway ensures ample parking, while masonry block construction, vinyl siding, and newer hurricane-rated windows and doors throughout the home provide durability and peace of mind. Both the roof and HVAC systems are newer as well, and there is natural gas utility for the kitchen stove/range, water heater and laundry room/dryer connection. From its picture-perfect curb appeal to its thoughtfully designed interior, this home embodies modern Florida living with farmhouse-inspired warmth. Conveniently located near downtown St. Petersburg and downtown Tampa, and within a bike ride or short drive to Weedon Island Preserve/Park for kayaking, hiking and boating. You will also be within easy access to two major airports, top-rated dining, shopping, and entertainment, and beaches --this property truly has it all. Current Flood Policy is Assumable by the New Owner!

位置

佛罗里达 ST PETERSBURG 33702 房屋 待售

详情与特色

类型:
Residential
停车:
Bath In Garage / Circular Driveway / Driveway / Garage Door Opener / Other / Oversized / Split Garage
建造年份:
1953
地段:
0.22 英亩
暖气:
Central / Zoned
价格/平方英尺:
$300
冷气:
Central Air / Zoned
HOA:
没有数据
更多事实和特点
  • 地板

    • Luxury Vinyl

    • Porcelain Tile

    暖气

    • Central

    • Zoned

    冷气

    • Central Air

    • Zoned

    设备

    • Convection Oven

    • Dishwasher

    • Disposal

    • Gas Water Heater

    • Microwave

    • Range

    • Refrigerator

    其他室内特点

    • Built-in Features

    • Ceiling Fan(s)

    • Crown Molding

    • High Ceilings

    • Kitchen/Family Room Combo

    • Living Room/Dining Room Combo

    • Open Floorplan

    • PrimaryBedroom Upstairs

    • Stone Counters

    • Thermostat

    • Walk-In Closet(s)

    • Window Treatments

    卧室和浴室

    • 卧室: 4

    • 洗手间: 1

    • 完整的浴室: 3

  • 停车

    • Bath In Garage

    • Circular Driveway

    • Driveway

    • Garage Door Opener

    • Other

    • Oversized

    • Split Garage

    房屋

    • 等级: Two

    • 外观特征: Private Mailbox / Sidewalk / Sliding Doors

    地段

    • 地段: 0.22 英亩

    其他财产信息

    • 包裹编号: 303017755280050120

    • 分区: RES

  • 类型与风格

    • 财产种类: Residential

    • 属性子类型: Single Family Residence

  • 公益

    • Electricity Connected

    • Natural Gas Connected

    • Public

    • Sewer Connected

    • Street Lights

    • Water Connected

    绿色能源

    • Windows

  • 其他财政信息

    • 年税额: $6,420

  • 来源细节

    • MLS ID: TB8443624

    其他详情

    • 建筑材料: Block / Stucco / Vinyl Siding

    • 基金会详情: Concrete Perimeter / Crawlspace

    • 洗衣功能: Gas Dryer Hookup / Inside / Laundry Room / Washer Hookup

    • 地段特征: Flood Insurance Required / FloodZone / City Lot / Landscaped / Near Public Transit / Oversized Lot / Sidewalk

    • 天井和门廊特色: Deck / Front Porch

    • 窗户功能: ENERGY STAR Qualified Windows

    • 方向面: North

    • 其他结构: Storage

    • 建筑风格: Coastal / Other / Traditional

    • 车库空间: 2

    • 车库: 是

    • 生活区域: 2320

    • 水源: Public

    • 地块大小: 108 x 100

    • 细分名称: RIO VISTA

类似房屋

6001 19TH STREET NE placeholder 6001 19TH STREET NE
2 天
待售
房屋
$529,000
3 贝兹 2 浴室 1,432 平方英尺
6001 19TH STREET NE
8334 DIAGONAL ROAD N placeholder 8334 DIAGONAL ROAD N
2 天
待售
多户家庭
$880,000
4 贝兹 2,924 平方英尺
8334 DIAGONAL ROAD N
5116 VENETIAN BOULEVARD NE placeholder 5116 VENETIAN BOULEVARD NE
4 天
待售
房屋
$489,900
3 贝兹 2 浴室 1,703 平方英尺
5116 VENETIAN BOULEVARD NE
6072 15TH WAY N placeholder 6072 15TH WAY N
5 天
待售
房屋
$499,900
2 贝兹 2 浴室 1,190 平方英尺
6072 15TH WAY N
756 61ST AVENUE NE placeholder 756 61ST AVENUE NE
5 天
待售
房屋
$519,900
4 贝兹 2 浴室 2,454 平方英尺
756 61ST AVENUE NE
1132 76TH AVENUE N placeholder 1132 76TH AVENUE N
5 天
待售
房屋
$489,000
3 贝兹 2 浴室 1,272 平方英尺
1132 76TH AVENUE N
1667 N DAKOTA AVENUE NE placeholder 1667 N DAKOTA AVENUE NE
6 天
待售
房屋
$550,000
4 贝兹 3 浴室 1,788 平方英尺
1667 N DAKOTA AVENUE NE
1984 64TH AVENUE N placeholder 1984 64TH AVENUE N
9 天
待售
房屋
$549,000
4 贝兹 3 浴室 1,704 平方英尺
1984 64TH AVENUE N

The multiple listing information is provided by the Stellar MLS from a copyrighted compilation of listings. The compilation of listings and each individual listing are ©2026-present Stellar MLS. All Rights Reserved. The information provided is for consumers' personal, noncommercial use and may not be used for any purpose other than to identify prospective properties consumers may be interested in purchasing. All properties are subject to prior sale or withdrawal. All information provided is deemed reliable but is not guaranteed accurate, and should be independently verified. Listing courtesy of: COASTAL PROPERTIES GROUP INTERNATIONAL