特性
探索我们的清单
聯繫
告诉我们您的需求

1041 W Lakewood Rd, West Palm Beach FL 33405

房屋 待售
$799,000

BTC: 9.25303995

ETH: 273.06903623

+$9K (2025/10/22)
64 天
3 贝兹
2 浴室
1,857 平方英尺
Est. 预计销售范围: $0 - $0
$0

总览

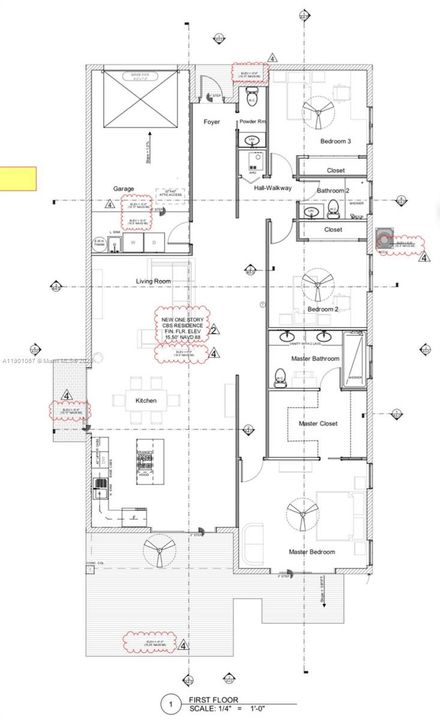
Attention Investors and Families! Stunning new 2023 home in West Palm Beach with 3 bedrooms, 2.5 baths, and 2,171 sq. ft. of elegant living. Perfect for short-term rentals with income potential up to $110,000/year at $400 per night. Features high ceilings, impact windows/doors, open kitchen with stainless steel appliances, and large tile floors. Enjoy a private fenced backyard ideal for relaxing or entertaining. Prime location next to the Palm Beach Zoo & Dreher Park, just 10 minutes to the beach. A rare opportunity. Ideal for both families and investors!

位置

佛罗里达 西棕榈滩 33405 房屋 待售

详情与特色

类型:
Residential
停车:
Driveway / On Street
建造年份:
2023
地段:
5125 平方英尺
暖气:
Central
价格/平方英尺:
$430
冷气:
Ceiling Fan(s) / Central Air
HOA:
没有数据
更多事实和特点
  • 地板

    • Tile

    暖气

    • Central

    冷气

    • Ceiling Fan(s)

    • Central Air

    设备

    • Dishwasher

    • Ice Maker

    • Microwave

    • Electric Range

    • Refrigerator

    其他室内特点

    • First Floor Entry

    • Cooking Island

    • 3 Bedroom Split

    • Walk-In Closet(s)

    • No Additional Rooms

    • Other

    卧室和浴室

    • 卧室: 3

    • 洗手间: 1

    • 完整的浴室: 2

  • 停车

    • Driveway

    • On Street

    地段

    • 地段: 5125 平方英尺

    其他财产信息

    • 包裹编号: 74434404080090551

    • 分区: SF7 (cit

  • 类型与风格

    • 财产种类: Residential

    • 属性子类型: Single Family Residence

  • 其他财政信息

    • 年税额: $9,101

  • 来源细节

    • MLS ID: A11901067

    其他详情

    • 建筑材料: Concrete Block Construction / CBS Construction

    • 地段特征: Less Than 1/4 Acre Lot

    • 天井和门廊特色: Patio

    • 方向面: South

    • 建筑风格: Detached / One Story / Modern/Contemporary

    • 车库空间: 1

    • 附属车库: 是

    • 车库: 是

    • 生活区域: 1857

    • 水源: Other

    • 细分名称: LAKE VIEW RIDGE

类似房屋

2077 Carambola, West Palm Beach, FL 33406 placeholder 2077 Carambola, West Palm Beach, FL 33406
2 天
待售
房屋
$949,999
4 贝兹 3 浴室 2,096 平方英尺
2077 Carambola, West Palm Beach, FL 33406
1801 Flagler, West Palm Beach, FL 33401 placeholder 1801 Flagler, West Palm Beach, FL 33401
4 天
待售
公寓/合作社
$799,000
2 贝兹 2 浴室 1,086 平方英尺
1801 Flagler, West Palm Beach, FL 33401
801 Olive, West Palm Beach, FL 33401 placeholder 801 Olive, West Palm Beach, FL 33401
4 天
待售
公寓/合作社
$599,000
1 贝兹 1 浴室 1,096 平方英尺
801 Olive, West Palm Beach, FL 33401
2747 Parker, West Palm Beach, FL 33405 placeholder 2747 Parker, West Palm Beach, FL 33405
9 天
待售
房屋
$649,000
4 贝兹 4 浴室 2,900 平方英尺
2747 Parker, West Palm Beach, FL 33405
1757 12th, Lake Worth Beach, FL 33460 placeholder 1757 12th, Lake Worth Beach, FL 33460
10 天
待售
房屋
$595,000
3 贝兹 2 浴室 1,440 平方英尺
1757 12th, Lake Worth Beach, FL 33460
356 Lanier, Palm Springs, FL 33461 placeholder 356 Lanier, Palm Springs, FL 33461
14 天
待售
房屋
$569,000
4 贝兹 2 浴室 1,344 平方英尺
356 Lanier, Palm Springs, FL 33461
1428 M, Lake Worth Beach, FL 33460 placeholder 1428 M, Lake Worth Beach, FL 33460
15 天
待售
房屋
$595,000
3 贝兹 2 浴室 1,410 平方英尺
1428 M, Lake Worth Beach, FL 33460
1733 22nd, Lake Worth Beach, FL 33460 placeholder 1733 22nd, Lake Worth Beach, FL 33460
15 天
待售
房屋
$725,000
4 贝兹 2 浴室 2,233 平方英尺
1733 22nd, Lake Worth Beach, FL 33460

The multiple listing information is provided by the Miami Association of REALTORS® from a copyrighted compilation of listings. The compilation of listings and each individual listing are ©2025-present Miami Association of REALTORS®. All Rights Reserved. The information provided is for consumers' personal, noncommercial use and may not be used for any purpose other than to identify prospective properties consumers may be interested in purchasing. All properties are subject to prior sale or withdrawal. All information provided is deemed reliable but is not guaranteed accurate, and should be independently verified. Listing courtesy of: London Foster Realty