特性
探索我们的清单
聯繫
告诉我们您的需求

12545 Palm Rd, North Miami FL 33181

房屋 待售
$2,799,000

BTC: 32.41459178

ETH: 956.59603554

32 天
滨水区
4 贝兹
4 浴室
2,552 平方英尺
Est. 预计销售范围: $0 - $0
$0

总览

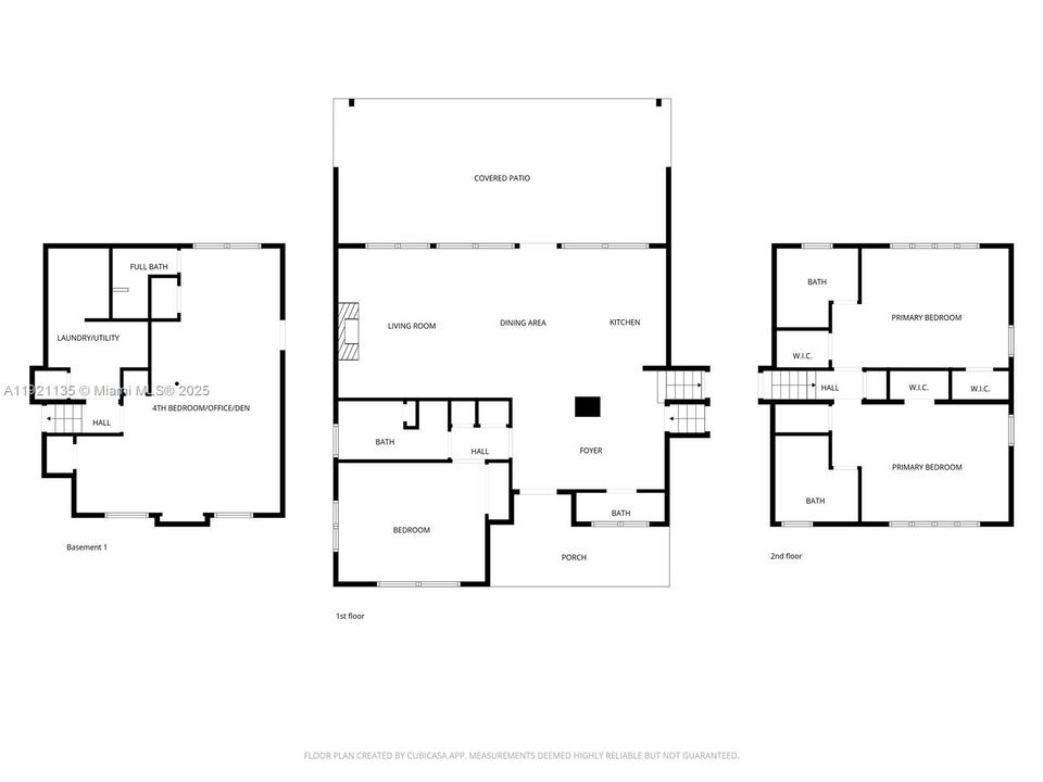
Discover waterfront elegance in prestigious Keystone Point! This multi-story home features an open floor plan with a lovely living room overlooking the water and an airy open kitchen. Filled with natural light, the home has 4 bedrooms and 4.5 bathrooms, including in-law quarters/office on the ground level with laundry room with a lot of storage, bathroom and private entry. Enjoy a new metal roof and stunning outdoor living with a covered patio, outdoor kitchen, and a pool overlooking 75 feet of waterfront on a wide canal. Nestled on a quiet street just minutes from Bal Harbour and the beach, this gem is perfect for refined waterfront living!

位置

详情与特色

类型:
Residential
停车:
Driveway
建造年份:
1953
地段:
9000 平方英尺
暖气:
Central / Electric
价格/平方英尺:
$1,097
冷气:
Central Air / Electric
HOA:
没有数据
更多事实和特点
  • 地板

    • Tile

    • Wood

    暖气

    • Central

    • Electric

    冷气

    • Central Air

    • Electric

    设备

    • Dishwasher

    • Dryer

    • Microwave

    • Refrigerator

    • Wall Oven

    其他室内特点

    • First Floor Entry

    • Family Room

    • Utility Room/Laundry

    卧室和浴室

    • 卧室: 4

    • 洗手间: 1

    • 完整的浴室: 4

  • 停车

    • Driveway

    房屋

    • 外观特征: Barbeque / Built-In Grill / Lighting

    地段

    • 地段: 9000 平方英尺

    其他财产信息

    • 包裹编号: 06-22-28-010-0570

    • 分区: 0900

  • 类型与风格

    • 财产种类: Residential

    • 属性子类型: Single Family Residence

  • 其他财政信息

    • 年税额: $43,229

  • 来源细节

    • MLS ID: A11921135

    其他详情

    • 建筑材料: CBS Construction

    • 洗衣功能: Utility Room/Laundry

    • 地段特征: Less Than 1/4 Acre Lot

    • 天井和门廊特色: Patio

    • 泳池特色: In Ground

    • 窗户功能: Clear Impact Glass / Complete Impact Glass / High Impact Windows / Impact Glass

    • 方向面: Southwest

    • 建筑风格: Detached / Two Story

    • 滨水区: 是

    • 生活区域: 2552

    • 水源: Municipal Water

    • 细分名称: KEYSTONE POINT SEC 3,KEYSTONE POINT

类似房屋

7945 Harding Ave, Miami Beach FL 33141 placeholder 7945 Harding Ave, Miami Beach FL 33141
待售
商业的
$2,050,000
0 room(s)
7945 Harding Ave, Miami Beach FL 33141
390 NE 103rd St, Miami Shores FL 33138 placeholder 390 NE 103rd St, Miami Shores FL 33138
1 天
待售
房屋
$2,000,000
5 贝兹 4 浴室 2,770 平方英尺
390 NE 103rd St, Miami Shores FL 33138
10155 Collins Ave # 1106, Bal Harbour FL 33154 placeholder 10155 Collins Ave # 1106, Bal Harbour FL 33154
1 天
待售
公寓/合作社
$2,800,000
3 贝兹 3 浴室 2,540 平方英尺
10155 Collins Ave # 1106, Bal Harbour FL 33154
12900 Ixora Cir, North Miami FL 33181 placeholder 12900 Ixora Cir, North Miami FL 33181
1 天
待售
房屋
$2,650,000
2 贝兹 3 浴室 2,472 平方英尺
12900 Ixora Cir, North Miami FL 33181
9148 Carlyle Ave, Surfside FL 33154 placeholder 9148 Carlyle Ave, Surfside FL 33154
3 天
待售
房屋
$2,295,000
5 贝兹 3 浴室 2,200 平方英尺
9148 Carlyle Ave, Surfside FL 33154
7124 Bay Dr, Miami Beach FL 33141 placeholder 7124 Bay Dr, Miami Beach FL 33141
4 天
待售
商业的
$2,390,000
0 room(s)
7124 Bay Dr, Miami Beach FL 33141
15811 Collins Ave # 3702, Sunny Isles Beach FL 33160 placeholder 15811 Collins Ave # 3702, Sunny Isles Beach FL 33160
7 天
待售
公寓/合作社
$1,995,000
3 贝兹 3 浴室 1,974 平方英尺
15811 Collins Ave # 3702, Sunny Isles Beach FL 33160
6899 Collins Ave # 1008, Miami Beach FL 33141 placeholder 6899 Collins Ave # 1008, Miami Beach FL 33141
8 天
待售
公寓/合作社
$2,300,000
2 贝兹 2 浴室 1,290 平方英尺
6899 Collins Ave # 1008, Miami Beach FL 33141

The multiple listing information is provided by the Miami Association of REALTORS® from a copyrighted compilation of listings. The compilation of listings and each individual listing are ©2025-present Miami Association of REALTORS®. All Rights Reserved. The information provided is for consumers' personal, noncommercial use and may not be used for any purpose other than to identify prospective properties consumers may be interested in purchasing. All properties are subject to prior sale or withdrawal. All information provided is deemed reliable but is not guaranteed accurate, and should be independently verified. Listing courtesy of: Montgomery & Koebel, Inc.