特性
探索我们的清单
聯繫
告诉我们您的需求

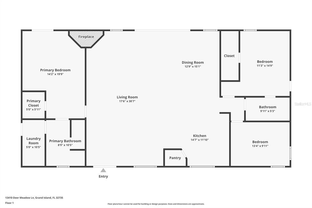
13410 DEER MEADOW LANE

房屋 待售
$1,300,000

BTC: 43.33333333

ETH: 650.00000000

52 天
3 贝兹
2 浴室
1,984 平方英尺
Est. 预计销售范围: $0 - $0
$0

总览

Discover the best of both worlds… country living in a suburban setting… on this beautifully landscaped 8.5 ACRE property surrounded by growth yet offering privacy, space, and versatility. The spacious 3BR/2BA open ranch features a charming wrap-around porch, dual fireplaces, and open living areas that blend comfort and style. Equestrian and hobby enthusiasts will appreciate the 8-stall center-aisle barn, fenced and cross-fenced pastures with run-in shelters, GARDENS, ENCLOSED Boat/RV Parking garage and a chicken coop. A garage apartment provides flexible living potential; multigenerational or guests, with 2 Bays for parking, it also features an air-conditioned workshop or studio for creative or business use. A great spot for a TRAINER or pet hobbyist with possible clients nearby. Conveniently located near lakes, groceries, and major routes, this property combines peaceful living with everyday accessibility. Builders take note! Check this out for possibilities… may also be divided! The approx. 5 acres with barn may be purchased separately for $525,000, MLS G5099912, and is currently included with this home and apartment on 3.5 acres… offering a rare opportunity and long-term potential. Hurry and call to schedule your appointment.

位置

佛罗里达 GRAND ISLAND 32735 房屋 待售

详情与特色

类型:
Residential
停车:
Boat / Circular Driveway / Driveway / Oversized / Parking Pad / Workshop in Garage
建造年份:
2006
地段:
8.50 英亩
暖气:
Central
价格/平方英尺:
$655
冷气:
Central Air
HOA:
没有数据
更多事实和特点
  • 地板

    • Ceramic Tile

    暖气

    • Central

    冷气

    • Central Air

    设备

    • Dishwasher

    • Disposal

    • Microwave

    • Range

    其他室内特点

    • Cathedral Ceiling(s)

    • Ceiling Fan(s)

    • Crown Molding

    • Eating Space In Kitchen

    • High Ceilings

    • Living Room/Dining Room Combo

    • Open Floorplan

    • Solid Surface Counters

    • Solid Wood Cabinets

    • Split Bedroom

    • Tray Ceiling(s)

    • Vaulted Ceiling(s)

    • Walk-In Closet(s)

    卧室和浴室

    • 卧室: 3

    • 完整的浴室: 2

  • 停车

    • Boat

    • Circular Driveway

    • Driveway

    • Oversized

    • Parking Pad

    • Workshop in Garage

    房屋

    • 等级: One

    • 外观特征: Balcony / Irrigation System / Storage

    地段

    • 地段: 8.50 英亩

    其他财产信息

    • 包裹编号: 321826000200008600

    • 分区: RES

  • 类型与风格

    • 财产种类: Residential

    • 属性子类型: Single Family Residence

  • 公益

    • Cable Connected

  • 其他财政信息

    • 年税额: $5,725

  • 来源细节

    • MLS ID: G5102391

    其他详情

    • 建筑材料: Block / Stucco

    • 基金会详情: Slab

    • 壁炉功能: Master Bedroom

    • 洗衣功能: Inside

    • 地段特征: Pasture / Zoned for Horses

    • 天井和门廊特色: Wrap Around

    • 窗户功能: Blinds

    • 方向面: East

    • 其他结构: Barn(s) / Shed(s) / Storage / Workshop

    • 建筑风格: Ranch

    • 壁炉: 是

    • 车库空间: 4

    • 车库: 是

    • 生活区域: 1984

    • 水源: Well

    • 地块大小: 328 x 1126

    • 细分名称: N/A

类似房屋

 placeholder
283 天
待售
多户家庭
$1,295,000
15 贝兹 7,339 平方英尺

The multiple listing information is provided by the Stellar MLS from a copyrighted compilation of listings. The compilation of listings and each individual listing are ©2025-present Stellar MLS. All Rights Reserved. The information provided is for consumers' personal, noncommercial use and may not be used for any purpose other than to identify prospective properties consumers may be interested in purchasing. All properties are subject to prior sale or withdrawal. All information provided is deemed reliable but is not guaranteed accurate, and should be independently verified. Listing courtesy of: BHHS FLORIDA REALTY