特性
探索我们的清单
聯繫
告诉我们您的需求

1393 ZESTY CITRUS LANE

房屋 待售
$899,000

BTC: 13.34481868

ETH: 468.22916667

42 天
4 贝兹
4 浴室
3,108 平方英尺
Est. 预计销售范围: $0 - $0
$0

总览

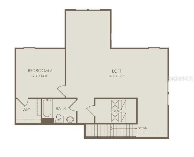
Del Webb at Minneola is a luxurious guard-gated 55+ active adult community offering new construction single-family homes in an unrivaled location on one of the highest peaks in Central Florida. Del Webb Minneola will offer an abundance of resort-style amenities with social events and activities planned by a full-time Lifestyle Director - centered in the stunning clubhouse which offers views of Sugarloaf Mountain. Planned community amenities include a zero-entry resort-style pool, in-ground heated spa, sports courts, on-site bar & grille with indoor and outdoor seating, a fitness center and walking/biking trails. Monthly HOA includes 1 GB high-speed internet, 75 streaming channels and your home's yard maintenance. Visit today to learn more and see for yourself why Del Webb Minneola is the absolute best place to call home! Experience the perfect blend of luxury and convenience with this brand-new, ready-to-move-in Mystique Grand home by Pulte. This two-story home offers a thoughtfully designed layout featuring 4 bedrooms, an enclosed flex room, 4 bathrooms, and a 2-car garage. The owner's suite is conveniently located on the first floor, offering a private retreat with a spa-inspired en suite bathroom. The heart of the home is the open-concept kitchen, café, and gathering room, where natural light floods the space, creating a welcoming and airy atmosphere. Tall ceilings, expansive windows, and a pocket sliding glass door leading to the screened-in extended covered lanai and outdoor kitchen seamlessly blend the indoor and outdoor living areas, ideal for effortless entertaining. The gourmet kitchen is a true highlight, featuring built-in Whirlpool appliances – including a natural gas cooktop, 42” soft-close cabinetry with clear glass uppers, quartz countertops, and a decorative tile backsplash. A spacious walk-in pantry, upgraded faucet, and stainless-steel single-bowl sink completes this culinary space, which is both stylish and functional. The owner's suite is designed for relaxation, with an en suite bathroom that includes a frameless glass enclosed shower, garden tub, dual vanity with quartz countertops, a linen closet, and an enclosed toilet for added privacy. On the first floor, you’ll also find 2 spare bedrooms and 2 bathrooms (one of which is an en suite) and an enclosed flex room that can easily serve as an office, hobby room, or guest retreat. Upstairs, the expansive loft provides additional space for leisure, and the third bedroom features its own walk-in closet and private bathroom. Throughout the home, designer-curated finishes enhance the sense of luxury, including comfort height toilets, brushed nickel hardware and plumbing fixtures, garage floor epoxy finish, crown molding in the main living areas, and under cabinet lighting in the kitchen. The entire home is outfitted with beautiful tile, with the exception of the loft, stairs, and upstairs bedroom, which are complemented by plush, stain-resistant Shaw brand carpet. This home is also equipped with the latest in-home technology, including a smart thermostat, video doorbell, LED downlights, digital IP camera pre-wire, electric car plug-in, retractable hose central vacuum package, surround sound speakers, and garage lighting package. Don’t miss the opportunity to own this beautifully designed home with unparalleled functionality and elegance. Schedule your tour today!

位置

佛罗里达 MINNEOLA 34715 房屋 待售

详情与特色

类型:
Residential
停车:
Driveway / Garage Door Opener
建造年份:
2025
地段:
0.14 英亩
暖气:
Central / Electric / Heat Pump
价格/平方英尺:
$289
冷气:
Central Air
HOA:
$384
更多事实和特点
  • 地板

    • Carpet

    • Tile

    暖气

    • Central

    • Electric

    • Heat Pump

    冷气

    • Central Air

    设备

    • Built-In Oven

    • Cooktop

    • Dishwasher

    • Disposal

    • Gas Water Heater

    • Microwave

    • Refrigerator

    • Tankless Water Heater

    其他室内特点

    • Eating Space In Kitchen

    • Kitchen/Family Room Combo

    • Open Floorplan

    • Pest Guard System

    • Split Bedroom

    • Stone Counters

    • Thermostat

    • Walk-In Closet(s)

    卧室和浴室

    • 卧室: 4

    • 完整的浴室: 4

  • 停车

    • Driveway

    • Garage Door Opener

    房屋

    • 等级: Two

    • 外观特征: Irrigation System / Lighting / Outdoor Kitchen / Rain Gutters / Sidewalk / Sliding Doors

    地段

    • 地段: 0.14 英亩

    其他财产信息

    • 包裹编号: 292126002100020100

    • 分区: P-D

  • 类型与风格

    • 财产种类: Residential

    • 属性子类型: Single Family Residence

  • 公益

    • BB/HS Internet Available

    • Electricity Connected

    • Natural Gas Connected

    • Phone Available

    • Public

    • Sewer Connected

    • Underground Utilities

    • Water Connected

    绿色能源

    • HVAC

    • Insulation

    • Lighting

    • Roof

    • Thermostat

    • Water Heater

    • Windows

  • 其他财政信息

    • HOA: $384

    • HOA频率: Monthly

    • 年税额: $3,138

  • 来源细节

    • MLS ID: O6362906

    其他详情

    • 建筑材料: Block / HardiPlank Type / Stucco / Wood Frame

    • 基金会详情: Slab

    • 洗衣功能: Inside / Laundry Room

    • 地段特征: Cleared / Landscaped / Sidewalk

    • 天井和门廊特色: Covered / Rear Porch

    • 窗户功能: Double Pane Windows / Insulated Windows / Low-Emissivity Windows

    • 方向面: Northwest

    • 其他结构: Outdoor Kitchen

    • 建筑风格: Florida / Mediterranean

    • 车库空间: 2

    • 附属车库: 是

    • 车库: 是

    • 生活区域: 3108

    • 水源: Public

    • 细分名称: DEL WEBB MINNEOLA

类似房屋

2352 BEAR PEAK ROAD placeholder 2352 BEAR PEAK ROAD
15 天
待售
房屋
$672,000
5 贝兹 4 浴室 3,532 平方英尺
2352 BEAR PEAK ROAD
2200 KEYSTONE PASS PASS placeholder 2200 KEYSTONE PASS PASS
21 天
待售
房屋
$839,990
6 贝兹 4 浴室 4,564 平方英尺
2200 KEYSTONE PASS PASS
1620 PYRAMID HILL STREET placeholder 1620 PYRAMID HILL STREET
-$5K (2026/01/05)
待售
房屋
$784,990
5 贝兹 4 浴室 3,446 平方英尺
1620 PYRAMID HILL STREET
2124 KEYSTONE PASS BOULEVARD placeholder 2124 KEYSTONE PASS BOULEVARD
27 天
待售
房屋
$770,000
4 贝兹 4 浴室 2,933 平方英尺
2124 KEYSTONE PASS BOULEVARD
2075 KEYSTONE PASS BOULEVARD placeholder 2075 KEYSTONE PASS BOULEVARD
35 天
待售
房屋
$779,990
6 贝兹 4 浴室 3,550 平方英尺
2075 KEYSTONE PASS BOULEVARD
2534 DEL WEBB DRIVE placeholder 2534 DEL WEBB DRIVE
42 天
待售
房屋
$731,840
3 贝兹 3 浴室 2,898 平方英尺
2534 DEL WEBB DRIVE
2100 KEYSTONE PASS BOULEVARD placeholder 2100 KEYSTONE PASS BOULEVARD
58 天
待售
房屋
$740,000
5 贝兹 3 浴室 3,167 平方英尺
2100 KEYSTONE PASS BOULEVARD
17660 COUNTY ROAD 455 placeholder 17660 COUNTY ROAD 455
-$70K (2026/01/02)
待售
房屋
$729,999
4 贝兹 2 浴室 3,593 平方英尺
17660 COUNTY ROAD 455

The multiple listing information is provided by the Stellar MLS from a copyrighted compilation of listings. The compilation of listings and each individual listing are ©2026-present Stellar MLS. All Rights Reserved. The information provided is for consumers' personal, noncommercial use and may not be used for any purpose other than to identify prospective properties consumers may be interested in purchasing. All properties are subject to prior sale or withdrawal. All information provided is deemed reliable but is not guaranteed accurate, and should be independently verified. Listing courtesy of: PULTE REALTY OF NORTH FLORIDA LLC