特性
探索我们的清单
聯繫
告诉我们您的需求

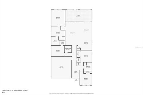
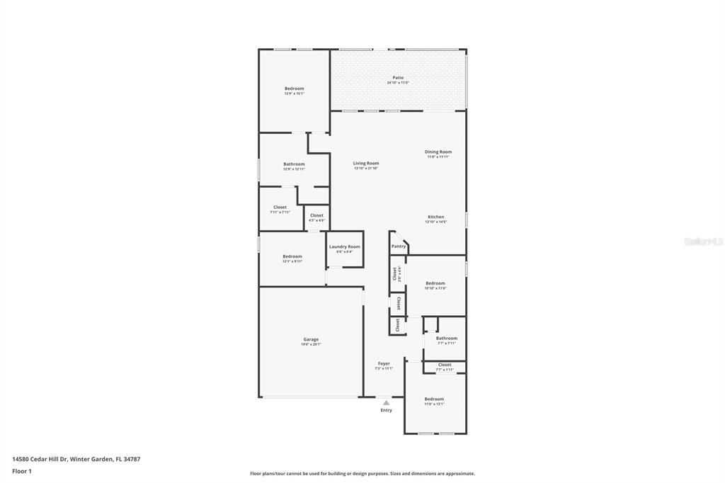
14580 CEDAR HILL DRIVE

房屋 合同活跃
$579,000

BTC: 6.48783111

ETH: 289.50000000

42 天
4 贝兹
2 浴室
2,019 平方英尺
Est. 预计销售范围: $0 - $0
$0

总览

Under contract-accepting backup offers. Welcome to this beautifully maintained single-story home in the sought-after Orchard Hills community of Winter Garden. Perfectly positioned on a larger corner lot with a park across the street, this 4-bedroom, 2-bath residence sits within Horizon West. A spacious front porch welcomes you with peaceful park views. Inside, durable wood-look tile flooring flows through the main living areas. The updated kitchen features modern cabinetry with quartz countertops, a beautiful backsplash, updated lighting, a large island for entertaining, and stainless steel appliances. A single-basin sink overlooks a picturesque window, and a beverage refrigerator is conveniently built into the island. You’ll appreciate the custom walk-in pantry designed to maximize storage. The kitchen opens to the spacious dining area and family room—ideal for easy entertaining. The family room provides abundant natural light with views of the private backyard. A thoughtful split floor plan separates the primary suite from the secondary bedrooms. The primary suite enjoys generous natural light and a custom walk-in closet. The en-suite bath includes a walk-in shower, garden tub, dual-sink vanity, and beautiful accent tile. At the front of the home, you’ll find two secondary bedrooms and a full bathroom with a large vanity and linen closet. The front bedroom offers custom shelving and functions perfectly as a home office. The third secondary bedroom includes a walk-in closet. The separate laundry room features cabinetry, along with the washer and dryer. Off the family room, an oversized screened lanai provides plenty of space for outdoor entertaining. The fully fenced backyard includes an additional paver patio—great for a fire pit—and is spacious enough to accommodate a future private pool. Additional thoughtful touches include storage cabinets in the utility room and gutters. Community amenities feature a resort-style zero-entry pool, fitness center, multiple playgrounds and green spaces, a dog park, and a clubhouse hosting regular events such as food truck nights and holiday activities. HOA includes lawn care. The home is conveniently close to Hamlin Shopping Center, Winter Garden Village, and major expressways including the 429, Florida Turnpike, and 408 for an easy commute to Downtown Orlando or the airport. Enjoy a quick drive to Downtown Winter Garden for weekly farmers markets and festivals, with convenient proximity to Disney. It’s also less than 1.5 miles from the under-construction Horizon West Regional Park and upcoming Horizon West Library. Zoned for A-rated schools—Keenes Crossing Elementary, Bridgewater Middle, and Windermere High. With no waiting for new construction, a premier lot, and numerous upgrades, this home is move-in ready and won’t last long!

位置

详情与特色

类型:
Residential
停车:
没有数据
建造年份:
2016
地段:
0.19 英亩
暖气:
Central
价格/平方英尺:
$287
冷气:
Central Air
HOA:
$172
更多事实和特点
  • 地板

    • Carpet

    • Tile

    暖气

    • Central

    冷气

    • Central Air

    设备

    • Dishwasher

    • Disposal

    • Dryer

    • Microwave

    • Washer

    其他室内特点

    • Ceiling Fan(s)

    • Eating Space In Kitchen

    • Kitchen/Family Room Combo

    • Open Floorplan

    • Primary Bedroom Main Floor

    • Solid Surface Counters

    • Solid Wood Cabinets

    • Split Bedroom

    • Walk-In Closet(s)

    卧室和浴室

    • 卧室: 4

    • 完整的浴室: 2

  • 房屋

    • 等级: One

    • 外观特征: Irrigation System / Rain Gutters / Sidewalk / Sliding Doors

    地段

    • 地段: 0.19 英亩

    其他财产信息

    • 包裹编号: 092327584401720

    • 分区: P-D

  • 类型与风格

    • 财产种类: Residential

    • 属性子类型: Single Family Residence

  • 公益

    • Cable Connected

    • Electricity Connected

    • Public

    • Sewer Connected

    • Water Connected

  • 其他财政信息

    • HOA: $172

    • HOA频率: Monthly

    • 年税额: $4,835

  • 来源细节

    • MLS ID: O6345779

    其他详情

    • 建筑材料: Block / Stucco

    • 基金会详情: Slab

    • 洗衣功能: Laundry Room

    • 地段特征: Corner Lot

    • 方向面: Northwest

    • 车库空间: 2

    • 附属车库: 是

    • 车库: 是

    • 生活区域: 2019

    • 水源: Public

    • 细分名称: ORCHARD HILLS

类似房屋

16114 LEYLAND CYPRESS LANE placeholder 16114 LEYLAND CYPRESS LANE
合同活跃
房屋
$656,630
4 贝兹 3 浴室 2,102 平方英尺
16114 LEYLAND CYPRESS LANE
6357 WILD PERSIMMON WAY placeholder 6357 WILD PERSIMMON WAY
合同活跃
房屋
$730,184
3 贝兹 3 浴室 2,515 平方英尺
6357 WILD PERSIMMON WAY
6309 WILD PERSIMMON WAY placeholder 6309 WILD PERSIMMON WAY
合同活跃
房屋
$709,990
4 贝兹 3 浴室 2,515 平方英尺
6309 WILD PERSIMMON WAY
6321 WILD PERSIMMON WAY placeholder 6321 WILD PERSIMMON WAY
合同活跃
房屋
$654,990
3 贝兹 2 浴室 1,772 平方英尺
6321 WILD PERSIMMON WAY
6315 WILD PERSIMMON WAY placeholder 6315 WILD PERSIMMON WAY
合同活跃
房屋
$668,990
4 贝兹 3 浴室 2,102 平方英尺
6315 WILD PERSIMMON WAY
2237 WINTERMERE POINTE DRIVE placeholder 2237 WINTERMERE POINTE DRIVE
1 天
合同活跃
房屋
$495,000
4 贝兹 2 浴室 1,950 平方英尺
2237 WINTERMERE POINTE DRIVE
13808 ANCILLA BOULEVARD placeholder 13808 ANCILLA BOULEVARD
2 天
合同活跃
联排别墅
$414,999
3 贝兹 2 浴室 1,461 平方英尺
13808 ANCILLA BOULEVARD
2472 BARONSMEDE COURT placeholder 2472 BARONSMEDE COURT
5 天
合同活跃
房屋
$723,500
5 贝兹 3 浴室 2,970 平方英尺
2472 BARONSMEDE COURT

The multiple listing information is provided by the Stellar MLS from a copyrighted compilation of listings. The compilation of listings and each individual listing are ©2025-present Stellar MLS. All Rights Reserved. The information provided is for consumers' personal, noncommercial use and may not be used for any purpose other than to identify prospective properties consumers may be interested in purchasing. All properties are subject to prior sale or withdrawal. All information provided is deemed reliable but is not guaranteed accurate, and should be independently verified. Listing courtesy of: INFINITY REALTY GROUP LLC