特性
探索我们的清单
聯繫
告诉我们您的需求

1500 S HOMESTEAD POINT

房屋 待售
$375,000

BTC: 4.20196316

ETH: 187.50000000

27 天
滨水区
3 贝兹
2 浴室
1,122 平方英尺
Est. 预计销售范围: $0 - $0
$0

总览

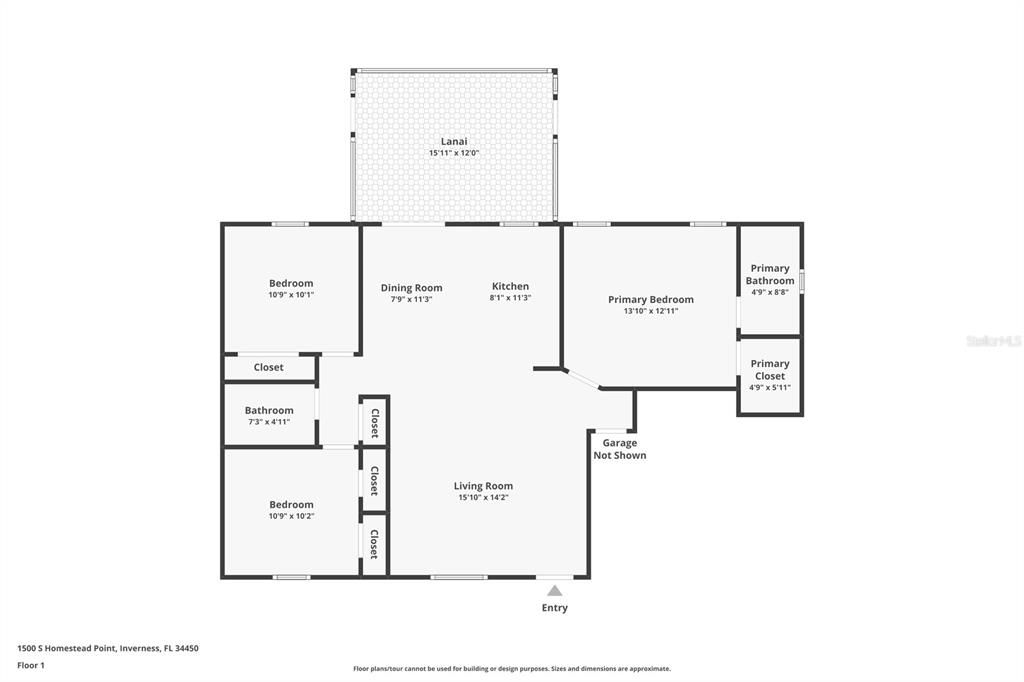
Welcome to rare lakefront living on Henderson Lake, one of Inverness’s signature lakes and part of the renowned Tsala Apopka Chain, offering miles of scenic waterways, wetlands, and abundant wildlife. This impeccably maintained newer 3-bedroom, 2-bath home sits on an expansive .44-acre lot—an uncommon find for true waterfront property. Inside, enjoy luxury vinyl flooring throughout, granite countertops in both the kitchen and bathrooms, and a thoughtfully designed floor plan that maximizes both comfort and views. The kitchen features black stainless steel appliances and overlooks the backyard and lake, making everyday living and entertaining a pleasure. Step outside to direct Henderson Lake frontage with a floating dock already in place, perfect for boating, fishing, kayaking, or simply soaking in the peaceful surroundings. With a 2-car garage, pristine condition, and an unbeatable lakefront lifestyle just minutes from downtown Inverness, this home offers the perfect blend of modern construction, natural beauty, and waterfront living. Opportunities like this on Henderson Lake are rare—don’t miss it. *Aerial photo property lines are an estimate and to be verified by buyer.

位置

详情与特色

类型:
Residential
停车:
没有数据
建造年份:
2020
地段:
0.45 英亩
暖气:
Central
价格/平方英尺:
$334
冷气:
Central Air
HOA:
没有数据
更多事实和特点
  • 地板

    • Luxury Vinyl

    暖气

    • Central

    冷气

    • Central Air

    设备

    • Dishwasher

    • Disposal

    • Dryer

    • Microwave

    • Range

    • Refrigerator

    • Washer

    其他室内特点

    • Ceiling Fan(s)

    • Kitchen/Family Room Combo

    • Solid Surface Counters

    • Split Bedroom

    • Walk-In Closet(s)

    卧室和浴室

    • 卧室: 3

    • 完整的浴室: 2

  • 房屋

    • 等级: One

    • 外观特征: Sliding Doors

    地段

    • 地段: 0.45 英亩

    其他财产信息

    • 包裹编号: 20E19S160000111000010

    • 分区: CLR

  • 类型与风格

    • 财产种类: Residential

    • 属性子类型: Single Family Residence

  • 公益

    • Electricity Connected

  • 其他财政信息

    • 年税额: $2,572

  • 来源细节

    • MLS ID: G5104939

    其他详情

    • 建筑材料: Block / Vinyl Siding

    • 基金会详情: Slab

    • 洗衣功能: In Garage

    • 天井和门廊特色: Patio / Screened

    • 窗户功能: Blinds

    • 方向面: East

    • 建筑风格: Traditional

    • 滨水区: 是

    • 水体名称: HENDERSON LAKE

    • 车库空间: 2

    • 附属车库: 是

    • 车库: 是

    • 生活区域: 1122

    • 水源: Well

    • 细分名称: THE HOMESTEAD UNREC SUB

类似房屋

625 BELL AVENUE placeholder 625 BELL AVENUE
5 天
待售
房屋
$327,900
3 贝兹 2 浴室 1,988 平方英尺
625 BELL AVENUE
6401 E HOLLY STREET placeholder 6401 E HOLLY STREET
21 天
待售
房屋
$279,995
2 贝兹 2 浴室 1,241 平方英尺
6401 E HOLLY STREET
3420 S FAIRWAY TERRACE placeholder 3420 S FAIRWAY TERRACE
21 天
待售
房屋
$450,000
3 贝兹 3 浴室 2,737 平方英尺
3420 S FAIRWAY TERRACE
620 WHITNEY AVENUE placeholder 620 WHITNEY AVENUE
45 天
待售
房屋
$289,000
2 贝兹 2 浴室 1,450 平方英尺
620 WHITNEY AVENUE
53 N ARCHWOOD DRIVE placeholder 53 N ARCHWOOD DRIVE
-$25K (2025/12/20)
待售
房屋
$400,000
3 贝兹 2 浴室 2,398 平方英尺
53 N ARCHWOOD DRIVE
2436 S ZELLNER DRIVE placeholder 2436 S ZELLNER DRIVE
50 天
待售
房屋
$349,000
3 贝兹 2 浴室 2,009 平方英尺
2436 S ZELLNER DRIVE
199 BITTERN LOOP placeholder 199 BITTERN LOOP
-$100 (2025/12/10)
待售
房屋
$309,900
4 贝兹 2 浴室 1,826 平方英尺
199 BITTERN LOOP
6046 E LORING LANE placeholder 6046 E LORING LANE
61 天
待售
房屋
$325,000
3 贝兹 2 浴室 2,023 平方英尺
6046 E LORING LANE

The multiple listing information is provided by the Stellar MLS from a copyrighted compilation of listings. The compilation of listings and each individual listing are ©2025-present Stellar MLS. All Rights Reserved. The information provided is for consumers' personal, noncommercial use and may not be used for any purpose other than to identify prospective properties consumers may be interested in purchasing. All properties are subject to prior sale or withdrawal. All information provided is deemed reliable but is not guaranteed accurate, and should be independently verified. Listing courtesy of: KELLER WILLIAMS ELITE PARTNERS III REALTY