特性
探索我们的清单
聯繫
告诉我们您的需求

15821 SW 49th St, Southwest Ranches FL 33331

房屋 待售
$2,599,000

BTC: 86.63333333

ETH: 1,299.50000000

-$249K (2025/11/25)
126 天
5 贝兹
4 浴室
4,713 平方英尺
Est. 预计销售范围: $0 - $0
$0

总览

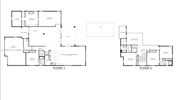
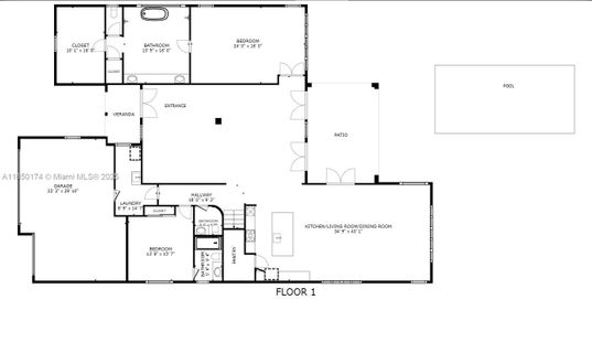
Exclusive Opportunity! Luxurious Southwest Ranches Estate at New Value Discover a rare opportunity to own a stunning 2023 estate in Southwest Ranches — now priced to maximize value. Set on a fully fenced 1-acre lot, this 5,917 SQFT home perfectly blends luxury, functionality, and lifestyle. Featuring a loft-style design, 3-car garage, chef’s kitchen with top-tier appliances, and resort-style backyard with pool, trampoline & kids’ playground. Hardwood floors throughout the bedrooms and second floor add elegance, while a full-home automatic generator ensures peace of mind. Enjoy equestrian living minutes from highways, shopping, dining, and entertainment — including Sawgrass Mills Mall and Amerant Bank Arena. With the recent price adjustment, this property presents an unmatched opportunity for buyers seeking luxury, convenience, and long-term value. Don’t miss the 3D virtual tour!

位置

佛罗里达 西南牧场 33331 房屋 待售

详情与特色

类型:
Residential
停车:
Driveway / Paver Block / Rv/Boat Parking
建造年份:
2023
地段:
43569 平方英尺
暖气:
Central / Electric
价格/平方英尺:
$551
冷气:
Central Air / Electric
HOA:
$252
更多事实和特点
  • 地板

    • Ceramic Floor

    • Concrete

    • Tile

    • Wood

    暖气

    • Central

    • Electric

    冷气

    • Central Air

    • Electric

    设备

    • Dishwasher

    • Disposal

    • Dryer

    • Ice Maker

    • Microwave

    • Water Purifier

    • Electric Range

    • Refrigerator

    • Wall Oven

    • Washer

    • Water Softener Owned

    其他室内特点

    • First Floor Entry

    • Closet Cabinetry

    • French Doors

    • Pantry

    • Roman Tub

    • Vaulted Ceiling(s)

    • Walk-In Closet(s)

    • Attic

    • Family Room

    • Loft

    • Maid/In-Law Quarters

    • Storage

    • Utility Room/Laundry

    卧室和浴室

    • 卧室: 5

    • 洗手间: 1

    • 完整的浴室: 4

  • 停车

    • Driveway

    • Paver Block

    • Rv/Boat Parking

    房屋

    • 外观特征: Lighting

    地段

    • 地段: 43569 平方英尺

    其他财产信息

    • 包裹编号: 504028080140

    • 分区: RE

  • 类型与风格

    • 财产种类: Residential

    • 属性子类型: Single Family Residence

  • 其他财政信息

    • HOA: $252

    • HOA频率: Monthly

    • 年税额: $19,533

  • 来源细节

    • MLS ID: A11850174

    其他详情

    • 建筑材料: Concrete Block Construction / CBS Construction

    • 洗衣功能: Utility Room/Laundry

    • 地段特征: 1 To Less Than 2 Acre Lot

    • 天井和门廊特色: Patio

    • 泳池特色: Auto Pool Clean / In Ground / Fenced / Concrete

    • 方向面: South

    • 建筑风格: Detached / Two Story / Ranch

    • 车库空间: 3

    • 附属车库: 是

    • 车库: 是

    • 生活区域: 4713

    • 水源: Well

    • 细分名称: CIRCLE S ESTATES

类似房屋

13785 SW 40th st, Davie FL 33330 placeholder 13785 SW 40th st, Davie FL 33330
13 天
待售
联排别墅
$2,285,000
6 贝兹 5 浴室
13785 SW 40th st, Davie FL 33330
14896 SW 38th St, Davie FL 33331 placeholder 14896 SW 38th St, Davie FL 33331
13 天
待售
房屋
$1,950,000
4 贝兹 4 浴室 3,502 平方英尺
14896 SW 38th St, Davie FL 33331
14820 Millstone Ranches Dr, Davie FL 33331 placeholder 14820 Millstone Ranches Dr, Davie FL 33331
14 天
待售
房屋
$2,990,000
5 贝兹 5 浴室 4,910 平方英尺
14820 Millstone Ranches Dr, Davie FL 33331
12995 SW 40th St, Davie FL 33330 placeholder 12995 SW 40th St, Davie FL 33330
17 天
待售
房屋
$2,500,000
5 贝兹 4 浴室 4,130 平方英尺
12995 SW 40th St, Davie FL 33330
2756 Meadowood Dr, Weston FL 33332 placeholder 2756 Meadowood Dr, Weston FL 33332
22 天
待售
房屋
$2,170,000
5 贝兹 5 浴室 3,857 平方英尺
2756 Meadowood Dr, Weston FL 33332
14431 Mustang Trl, Southwest Ranches FL 33330 placeholder 14431 Mustang Trl, Southwest Ranches FL 33330
+$100K (2025/11/12)
待售
房屋
$2,099,999
3 贝兹 2 浴室 2,532 平方英尺
14431 Mustang Trl, Southwest Ranches FL 33330
16541 SW 62nd St, Southwest Ranches FL 33331 placeholder 16541 SW 62nd St, Southwest Ranches FL 33331
35 天
待售
房屋
$2,100,000
4 贝兹 4 浴室 3,752 平方英尺
16541 SW 62nd St, Southwest Ranches FL 33331
15110 N Saxon Cir, Southwest Ranches FL 33331 placeholder 15110 N Saxon Cir, Southwest Ranches FL 33331
41 天
待售
房屋
$2,699,000
5 贝兹 5 浴室 2,901 平方英尺
15110 N Saxon Cir, Southwest Ranches FL 33331

The multiple listing information is provided by the Miami Association of REALTORS® from a copyrighted compilation of listings. The compilation of listings and each individual listing are ©2025-present Miami Association of REALTORS®. All Rights Reserved. The information provided is for consumers' personal, noncommercial use and may not be used for any purpose other than to identify prospective properties consumers may be interested in purchasing. All properties are subject to prior sale or withdrawal. All information provided is deemed reliable but is not guaranteed accurate, and should be independently verified. Listing courtesy of: One Stop Realty