特性
探索我们的清单
聯繫
告诉我们您的需求

15919 SE 101ST CIRCLE

房屋 待售
$270,070

BTC: 9.00233333

ETH: 135.03500000

14 天
3 贝兹
2 浴室
1,328 平方英尺
Est. 预计销售范围: $0 - $0
$0

总览

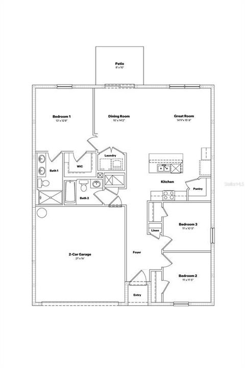
Under Construction. This single-story, all concrete block constructed 3 bedroom, 2 bathroom home features an open concept floorplan that optimizes living space. The spacious kitchen overlooks the great room, dining area, and outdoor patio. The kitchen comes full equipped with stainless-steel appliances including a built-in dishwasher, range, and microwave. The primary suite is located towards the back of the home, featuring a spacious walk-in closet and ensuite bathroom with double vanity sinks. Two additional bedrooms are located towards the front of the home and share a bathroom across the hall. Pictures, photographs, colors, features, and sizes are for illustration purposes only and will vary from the homes as built. Home and community information including pricing, included features, terms, availability and amenities are subjext to change and prior sale at any time without notice or obligation. CRC057592.

位置

佛罗里达 SUMMERFIELD 34491 房屋 待售

详情与特色

类型:
Residential
停车:
没有数据
建造年份:
2025
地段:
0.15 英亩
暖气:
Electric / Heat Pump
价格/平方英尺:
$203
冷气:
Central Air
HOA:
$69
更多事实和特点
  • 地板

    • Carpet

    • Luxury Vinyl

    暖气

    • Electric

    • Heat Pump

    冷气

    • Central Air

    设备

    • Dishwasher

    • Microwave

    • Range

    其他室内特点

    • Open Floorplan

    卧室和浴室

    • 卧室: 3

    • 完整的浴室: 2

  • 房屋

    • 等级: One

    • 外观特征: Irrigation System

    地段

    • 地段: 0.15 英亩

    其他财产信息

    • 包裹编号: 4820002158

    • 分区: PUD

  • 类型与风格

    • 财产种类: Residential

    • 属性子类型: Single Family Residence

  • 公益

    • Other

  • 其他财政信息

    • HOA: $69

    • HOA频率: Monthly

  • 来源细节

    • MLS ID: OM713910

    其他详情

    • 建筑材料: Block

    • 基金会详情: Slab

    • 洗衣功能: Laundry Room

    • 方向面: Northeast

    • 车库空间: 2

    • 附属车库: 是

    • 车库: 是

    • 生活区域: 1328

    • 水源: Public

    • 细分名称: SUNSET HILLS

类似房屋

16905 SE 81ST ELLERSLIE COURT placeholder 16905 SE 81ST ELLERSLIE COURT
待售
房屋
$245,000
2 贝兹 2 浴室 1,160 平方英尺
16905 SE 81ST ELLERSLIE COURT
17747 SE 97TH AVENUE placeholder 17747 SE 97TH AVENUE
1 天
待售
房屋
$289,900
3 贝兹 2 浴室 2,026 平方英尺
17747 SE 97TH AVENUE
SE 97TH COURT placeholder SE 97TH COURT
1 天
待售
地段/土地
$245,000
0 room(s)
SE 97TH COURT
2603 OLIVAREZ WAY placeholder 2603 OLIVAREZ WAY
2 天
待售
房屋
$309,000
2 贝兹 2 浴室 1,121 平方英尺
2603 OLIVAREZ WAY
928 OLEANDER STREET placeholder 928 OLEANDER STREET
2 天
待售
$220,000
2 贝兹 2 浴室 1,196 平方英尺
928 OLEANDER STREET
13875 SE 86TH TERRACE placeholder 13875 SE 86TH TERRACE
2 天
待售
房屋
$250,000
3 贝兹 2 浴室 1,760 平方英尺
13875 SE 86TH TERRACE
17520 SE 95TH COURT placeholder 17520 SE 95TH COURT
2 天
待售
房屋
$197,000
2 贝兹 2 浴室 1,008 平方英尺
17520 SE 95TH COURT
10046 SE 175TH STREET placeholder 10046 SE 175TH STREET
3 天
待售
房屋
$209,000
2 贝兹 2 浴室 1,240 平方英尺
10046 SE 175TH STREET

The multiple listing information is provided by the Stellar MLS from a copyrighted compilation of listings. The compilation of listings and each individual listing are ©2025-present Stellar MLS. All Rights Reserved. The information provided is for consumers' personal, noncommercial use and may not be used for any purpose other than to identify prospective properties consumers may be interested in purchasing. All properties are subject to prior sale or withdrawal. All information provided is deemed reliable but is not guaranteed accurate, and should be independently verified. Listing courtesy of: DR HORTON REALTY OF WEST CENTRAL FLORIDA