特性
探索我们的清单
聯繫
告诉我们您的需求

1615 MARTINSVILLE COURT

房屋 合同活跃
$360,000

BTC: 5.14285714

ETH: 175.18248175

-$10K (2025/12/08)
48 天
3 贝兹
2 浴室
1,580 平方英尺
Est. 预计销售范围: $0 - $0
$0

总览

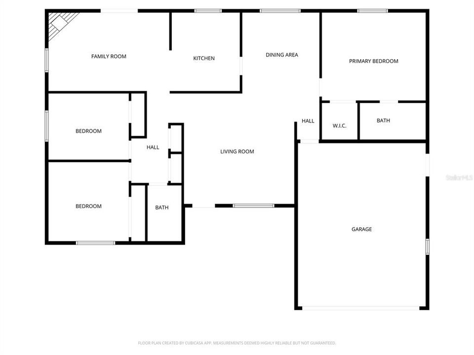
Under contract-accepting backup offers. This 3-bedroom, 2-bath home is located in a quiet, well-kept neighborhood with no HOA, offering the perfect opportunity for someone looking to make it their own. The property features a split floor plan that separates the primary suite from the other bedrooms, a spacious front and backyard with mature trees ideal for relaxing or entertaining, and a long driveway that can fit up to eight cars. The roof was replaced in 2021, and the home has been freshly painted inside and out, providing a solid foundation for any updates or personal touches. You’ll be just 20 minutes from Downtown Orlando, 25 minutes from Universal Studios, 30 minutes from Disney World, 15 minutes from Orlando International Airport (MCO), and about an hour from the beach. With no HOA, you have the freedom to park your RV, boat, or work vehicle and personalize your property without restrictions. Located just minutes from UCF, Waterford Lakes Town Center, AdventHealth East, Walmart, and major highways, this home offers unbeatable access to shopping, dining, schools, and more. Whether you're a first-time homebuyer, investor, or simply looking for a property with great potential in a prime location, this home is a must-see!

位置

佛罗里达 ORLANDO 32825 房屋 合同活跃

详情与特色

类型:
Residential
停车:
没有数据
建造年份:
1990
地段:
0.25 英亩
暖气:
Central
价格/平方英尺:
$228
冷气:
Central Air
HOA:
没有数据
更多事实和特点
  • 地板

    • Ceramic Tile

    • Laminate

    • Hardwood

    暖气

    • Central

    冷气

    • Central Air

    设备

    • Dishwasher

    • Microwave

    • Range

    • Refrigerator

    其他室内特点

    • Ceiling Fan(s)

    卧室和浴室

    • 卧室: 3

    • 完整的浴室: 2

  • 房屋

    • 等级: One

    • 外观特征: Sliding Doors / Storage

    地段

    • 地段: 0.25 英亩

    其他财产信息

    • 包裹编号: 202231016200240

    • 分区: R-1

  • 类型与风格

    • 财产种类: Residential

    • 属性子类型: Single Family Residence

  • 公益

    • Public

  • 其他财政信息

    • 年税额: $5,017

  • 来源细节

    • MLS ID: O6356522

    其他详情

    • 建筑材料: Block / Stucco

    • 基金会详情: Slab

    • 壁炉功能: Decorative

    • 洗衣功能: Electric Dryer Hookup / In Garage / Washer Hookup

    • 天井和门廊特色: Patio

    • 方向面: West

    • 壁炉: 是

    • 车库空间: 2

    • 附属车库: 是

    • 车库: 是

    • 生活区域: 1580

    • 水源: Public

    • 细分名称: ANDERSON VILLAGE

类似房屋

12452 CASTLEMAIN TRAIL placeholder 12452 CASTLEMAIN TRAIL
1 天
合同活跃
房屋
$370,000
3 贝兹 2 浴室 1,427 平方英尺
12452 CASTLEMAIN TRAIL
1506 BROOKEBRIDGE DRIVE placeholder 1506 BROOKEBRIDGE DRIVE
4 天
合同活跃
房屋
$295,000
2 贝兹 1 浴室 840 平方英尺
1506 BROOKEBRIDGE DRIVE
8877 BUTTERNUT BOULEVARD placeholder 8877 BUTTERNUT BOULEVARD
6 天
合同活跃
房屋
$460,000
3 贝兹 2 浴室 1,676 平方英尺
8877 BUTTERNUT BOULEVARD
10871 CABBAGE TREE LOOP placeholder 10871 CABBAGE TREE LOOP
6 天
合同活跃
房屋
$455,000
4 贝兹 3 浴室 1,944 平方英尺
10871 CABBAGE TREE LOOP
808 OLD BARN ROAD placeholder 808 OLD BARN ROAD
-$20K (2025/12/14)
合同活跃
房屋
$400,000
3 贝兹 2 浴室 1,460 平方英尺
808 OLD BARN ROAD
10016 BRIDLEWOOD AVENUE placeholder 10016 BRIDLEWOOD AVENUE
-$25K (2025/12/30)
合同活跃
房屋
$410,000
4 贝兹 2 浴室 1,815 平方英尺
10016 BRIDLEWOOD AVENUE
11252 CYPRESS LEAF DRIVE placeholder 11252 CYPRESS LEAF DRIVE
12 天
合同活跃
房屋
$359,900
3 贝兹 2 浴室 1,332 平方英尺
11252 CYPRESS LEAF DRIVE
10609 WYNDCLIFF DRIVE placeholder 10609 WYNDCLIFF DRIVE
12 天
合同活跃
房屋
$310,000
2 贝兹 2 浴室 1,120 平方英尺
10609 WYNDCLIFF DRIVE

The multiple listing information is provided by the Stellar MLS from a copyrighted compilation of listings. The compilation of listings and each individual listing are ©2026-present Stellar MLS. All Rights Reserved. The information provided is for consumers' personal, noncommercial use and may not be used for any purpose other than to identify prospective properties consumers may be interested in purchasing. All properties are subject to prior sale or withdrawal. All information provided is deemed reliable but is not guaranteed accurate, and should be independently verified. Listing courtesy of: EXP REALTY LLC