特性
探索我们的清单
聯繫
告诉我们您的需求

17 THE VIEWS RESERVE UNIT 17

房屋 待售
$775,550

BTC: 8.92976396

ETH: 387.77500000

164 天
3 贝兹
3 浴室
1,911 平方英尺
Est. 预计销售范围: $0 - $0
$0

总览

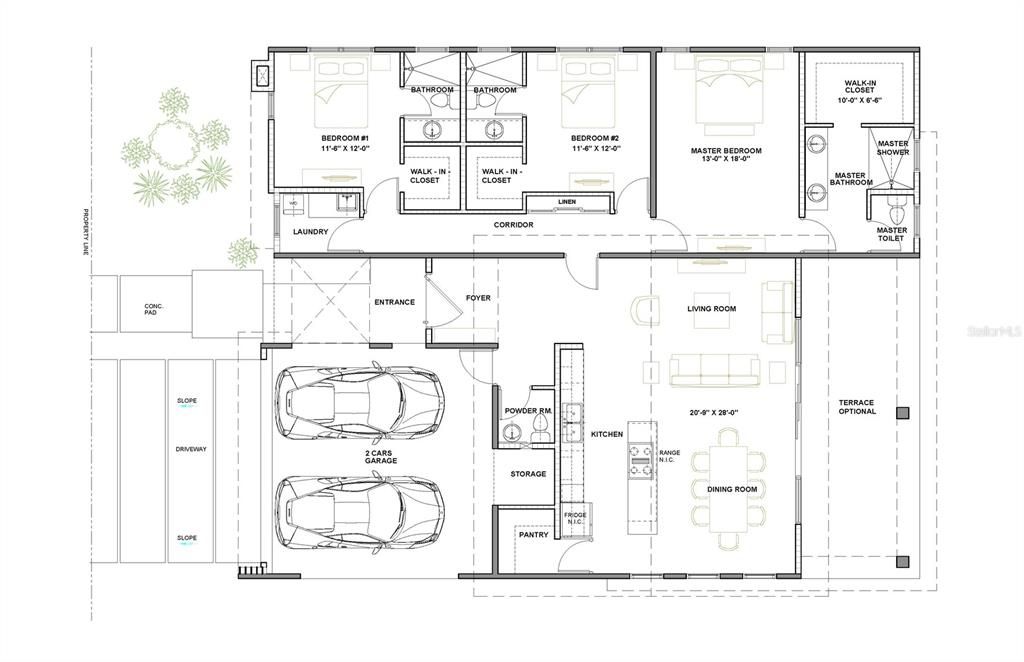
One or more photo(s) has been virtually staged. Pre-Construction. To be built. Discover luxury living in this stunning 3-bedroom, 3.5-bath pre-construction home located in The Views Reserve, a private gated community within Palmas del Mar. Offered at $775,550, this is a unique opportunity to secure pre-construction pricing on one of the development’s premier residences. Unit 17 sits on a generous 1,825.56 square meter lot and features 2,577 square feet of thoughtfully designed construction. Positioned as a corner unit in a tranquil cul-de-sac, the home offers added privacy and space. The open-concept layout boasts soaring 16-foot ceilings, a modern kitchen with quartz countertops and full backsplash, and a spacious great room ideal for entertaining. Each bedroom includes a walk-in closet, and the master suite offers a private bathroom with dual walk-ins. Additional features include a 2-car garage, laundry room, solar water heater, electric car charging outlet, and optional 370-square-foot terrace. Built with eco-friendly materials and impact-resistant windows, the home is also generator and solar panel-ready. Residents enjoy access to Palmas del Mar’s extensive resort amenities, including two championship golf courses, tennis and pickleball courts, an equestrian center, private beach club, marina, restaurants, and 24/7 security. The initiation fee for PAC Membership is included.

位置

佛罗里达 HUMACAO 00791 房屋 待售

详情与特色

类型:
Residential
停车:
没有数据
建造年份:
2026
地段:
0.45 英亩
暖气:
None
价格/平方英尺:
$406
冷气:
None
HOA:
没有数据
更多事实和特点
  • 地板

    • Ceramic Tile

    暖气

    • None

    冷气

    • None

    设备

    • Solar Hot Water Owned

    其他室内特点

    • Open Floorplan

    • Stone Counters

    • Walk-In Closet(s)

    卧室和浴室

    • 卧室: 3

    • 洗手间: 1

    • 完整的浴室: 3

  • 房屋

    • 等级: One

    • 外观特征: Other

    地段

    • 地段: 0.45 英亩

    其他财产信息

    • 包裹编号: UNAVAILABLE

    • 分区: RESI

  • 类型与风格

    • 财产种类: Residential

    • 属性子类型: Single Family Residence

  • 公益

    • Cable Available

    • Electricity Available

    • Sewer Connected

    • Water Available

    绿色能源

    • Water Heater

    • Windows

  • 来源细节

    • MLS ID: PR9114763

    其他详情

    • 建筑材料: Concrete

    • 基金会详情: Concrete Perimeter

    • 洗衣功能: Laundry Room

    • 窗户功能: Aluminum Frames

    • 方向面: North

    • 车库空间: 2

    • 附属车库: 是

    • 车库: 是

    • 生活区域: 1911

    • 水源: Private

    • 细分名称: PALMAS DEL MAR RESORT

类似房屋

959 HARBOURSIDE placeholder 959 HARBOURSIDE
8 天
待售
$550,000
3 贝兹 2 浴室 1,388 平方英尺
959 HARBOURSIDE
75 OCEAN DRIVE UNIT 336 placeholder 75 OCEAN DRIVE UNIT 336
9 天
待售
公寓/合作社
$624,000
3 贝兹 3 浴室 2,127 平方英尺
75 OCEAN DRIVE UNIT 336
177 WEDGE ST placeholder 177 WEDGE ST
12 天
待售
房屋
$725,000
4 贝兹 2 浴室 2,000 平方英尺
177 WEDGE ST
180 CRESCENT COVE COVE SE UNIT 97 placeholder 180 CRESCENT COVE COVE SE UNIT 97
20 天
待售
公寓/合作社
$565,000
3 贝兹 3 浴室 2,200 平方英尺
180 CRESCENT COVE COVE SE UNIT 97
5 N SHELL CASTLE CLUB placeholder 5 N SHELL CASTLE CLUB
28 天
待售
联排别墅
$799,000
3 贝兹 2 浴室 2,600 平方英尺
5 N SHELL CASTLE CLUB
200 OCEAN DRIVE THE MARBELLA CLUB UNIT 215 placeholder 200 OCEAN DRIVE THE MARBELLA CLUB UNIT 215
35 天
待售
公寓/合作社
$650,000
2 贝兹 1 浴室 1,140 平方英尺
200 OCEAN DRIVE THE MARBELLA CLUB UNIT 215
180 SE CANDELERO DRIVE STREET UNIT 66 placeholder 180 SE CANDELERO DRIVE STREET UNIT 66
+$10K (2025/11/14)
待售
公寓/合作社
$660,000
3 贝兹 3 浴室
180 SE CANDELERO DRIVE STREET UNIT 66
The Marbella Club Villas OCEAN DRIVE STEERT ANDALUCIA BLDG PALMAS DEL MAR placeholder The Marbella Club Villas OCEAN DRIVE STEERT ANDALUCIA BLDG PALMAS DEL MAR
38 天
待售
房屋
$850,000
2 贝兹 2 浴室 1,700 平方英尺
The Marbella Club Villas OCEAN DRIVE STEERT ANDALUCIA BLDG PALMAS DEL MAR

The multiple listing information is provided by the Stellar MLS from a copyrighted compilation of listings. The compilation of listings and each individual listing are ©2025-present Stellar MLS. All Rights Reserved. The information provided is for consumers' personal, noncommercial use and may not be used for any purpose other than to identify prospective properties consumers may be interested in purchasing. All properties are subject to prior sale or withdrawal. All information provided is deemed reliable but is not guaranteed accurate, and should be independently verified. Listing courtesy of: CASILLAS REALTY GROUP DBA