特性
探索我们的清单
聯繫
告诉我们您的需求

1718 WHITE HERON BAY CIRCLE

房屋 合同活跃
$550,000

BTC: 18.33333333

ETH: 275.00000000

12 天
4 贝兹
2 浴室
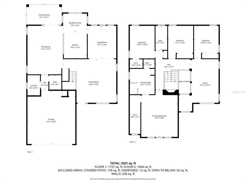
3,060 平方英尺
Est. 预计销售范围: $0 - $0
$0

总览

Under contract-accepting backup offers. This beautifully maintained home offers stylish updates and an inviting open layout filled with natural light. The kitchen features granite countertops, stainless steel appliances, and crisp white cabinetry that opens to the dining area, creating the perfect space for entertaining. The spacious living room flows seamlessly into the family room, providing multiple gathering areas. Updated LVP flooring throughout the home adds a modern touch and easy maintenance. The primary suite includes a large bathroom with dual vanities, a soaking tub, and a separate shower. Additional highlights include a movie projector in the upstairs loft, a covered lanai overlooking a generously sized backyard, and a new front door installed in 2025. Situated on an oversized lot with a roof only four years old, this home combines comfort, style, and peace of mind in a desirable location convenient to major roads, shopping, and dining.

位置

佛罗里达 ORLANDO 32824 房屋 合同活跃

详情与特色

类型:
Residential
停车:
没有数据
建造年份:
2000
地段:
0.19 英亩
暖气:
Central / Electric
价格/平方英尺:
$180
冷气:
Central Air
HOA:
$208
更多事实和特点
  • 地板

    • Luxury Vinyl

    暖气

    • Central

    • Electric

    冷气

    • Central Air

    设备

    • Range

    • Refrigerator

    其他室内特点

    • Ceiling Fan(s)

    • High Ceilings

    卧室和浴室

    • 卧室: 4

    • 洗手间: 1

    • 完整的浴室: 2

  • 房屋

    • 等级: Two

    • 外观特征: French Doors / Sidewalk

    地段

    • 地段: 0.19 英亩

    其他财产信息

    • 包裹编号: 312430351000410

    • 分区: P-D

  • 类型与风格

    • 财产种类: Residential

    • 属性子类型: Single Family Residence

  • 公益

    • Cable Available

  • 其他财政信息

    • HOA: $208

    • HOA频率: Quarterly

    • 年税额: $5,175

  • 来源细节

    • MLS ID: O6358641

    其他详情

    • 建筑材料: Block / Stucco

    • 基金会详情: Slab

    • 洗衣功能: Inside / Laundry Room

    • 方向面: East

    • 车库空间: 2

    • 附属车库: 是

    • 车库: 是

    • 生活区域: 3060

    • 水源: Private

    • 细分名称: HERON BAY AT MEADOW WOODS 44/54

类似房屋

12516 GRECO DRIVE placeholder 12516 GRECO DRIVE
4 天
合同活跃
房屋
$445,500
4 贝兹 3 浴室 2,317 平方英尺
12516 GRECO DRIVE
4714 CAMPSITE LOOP placeholder 4714 CAMPSITE LOOP
6 天
合同活跃
联排别墅
$444,990
3 贝兹 2 浴室 1,730 平方英尺
4714 CAMPSITE LOOP
3972 GREEN SABAL DRIVE placeholder 3972 GREEN SABAL DRIVE
6 天
合同活跃
房屋
$499,500
3 贝兹 2 浴室 1,872 平方英尺
3972 GREEN SABAL DRIVE
205 RED MAPLE DRIVE placeholder 205 RED MAPLE DRIVE
7 天
合同活跃
房屋
$389,900
3 贝兹 2 浴室 1,648 平方英尺
205 RED MAPLE DRIVE
869 ASPENWOOD CIRCLE placeholder 869 ASPENWOOD CIRCLE
8 天
合同活跃
房屋
$385,000
4 贝兹 2 浴室 1,775 平方英尺
869 ASPENWOOD CIRCLE
13563 TEXAS WOODS CIRCLE placeholder 13563 TEXAS WOODS CIRCLE
-$10K (2025/11/12)
合同活跃
房屋
$389,900
3 贝兹 2 浴室 1,623 平方英尺
13563 TEXAS WOODS CIRCLE
3135 TURRET DRIVE placeholder 3135 TURRET DRIVE
13 天
合同活跃
房屋
$435,000
4 贝兹 3 浴室 2,384 平方英尺
3135 TURRET DRIVE
13110 PHILADELPHIA WOODS LANE placeholder 13110 PHILADELPHIA WOODS LANE
14 天
合同活跃
房屋
$389,900
3 贝兹 2 浴室 1,648 平方英尺
13110 PHILADELPHIA WOODS LANE

The multiple listing information is provided by the Stellar MLS from a copyrighted compilation of listings. The compilation of listings and each individual listing are ©2025-present Stellar MLS. All Rights Reserved. The information provided is for consumers' personal, noncommercial use and may not be used for any purpose other than to identify prospective properties consumers may be interested in purchasing. All properties are subject to prior sale or withdrawal. All information provided is deemed reliable but is not guaranteed accurate, and should be independently verified. Listing courtesy of: SERHANT