特性
探索我们的清单
聯繫
告诉我们您的需求

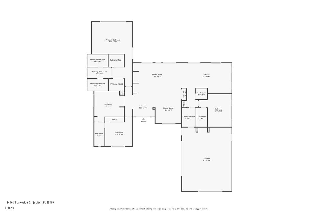
18440 Lakeside, Jupiter, FL 33469

房屋 待售
$1,499,000

BTC: 17.25964306

ETH: 749.50000000

52 天
滨水区
4 贝兹
3 浴室
2,665 平方英尺
Est. 预计销售范围: $0 - $0
$0

总览

Rarely available lakefront, one-story single-family home in River Ridge situated on the largest part of the lake with the most breathtaking and expansive views. The buyer will love the stunning picture window from the primary bedroom overlooking the water, as well as the serene views enjoyed while relaxing by the pool or in the living room and kitchen. This spacious pool home offers four bedrooms, three and a half baths, and a three and a half car garage. The kitchen has been updated and thoughtfully designed for both style and functionality. Additional features include two new HVAC systems installed in 2025, a roof and gutters replaced in 2021, and a new pool heater added in 2025. The property has a 500 gallon propane tank for a future generator.

位置

佛罗里达 木星 33469 房屋 待售 滨水区

详情与特色

类型:
Residential
停车:
2+ Spaces / Garage - Attached
建造年份:
1996
地段:
14487 平方英尺
暖气:
Central / Electric
价格/平方英尺:
$562
冷气:
Ceiling Fan / Central / Electric
HOA:
没有数据
更多事实和特点
  • 地板

    • Carpet

    • Ceramic Tile

    暖气

    • Central

    • Electric

    冷气

    • Ceiling Fan

    • Central

    • Electric

    设备

    • Auto Garage Open

    • Central Vacuum

    • Dishwasher

    • Disposal

    • Dryer

    • Fire Alarm

    • Gas Lease

    • Generator Whle House

    • Ice Maker

    • Microwave

    • Range - Gas

    • Refrigerator

    • Smoke Detector

    • Storm Shutters

    • Washer

    • Water Heater - Gas

    其他室内特点

    • Bar

    • Built-in Shelves

    • Closet Cabinets

    • Entry Lvl Lvng Area

    • Foyer

    • French Door

    • Laundry Tub

    • Roman Tub

    • Sky Light(s)

    • Split Bedroom

    • Volume Ceiling

    • Walk-in Closet

    • Wet Bar

    卧室和浴室

    • 卧室: 4

    • 洗手间: 1

    • 完整的浴室: 3

  • 停车

    • 2+ Spaces

    • Garage - Attached

    房屋

    • 私人泳池: 是

    • 外观特征: Auto Sprinkler / Covered Patio / Lake/Canal Sprinkler / Outdoor Shower / Screened Patio / Shutters / Zoned Sprinkler

    地段

    • 地段: 14487 平方英尺

    其他财产信息

    • 包裹编号: 234042002000004406

    • 分区: res

  • 类型与风格

    • 财产种类: Residential

    • 属性子类型: Single Family Residence

  • 公益

    • Cable

    • Electric

    • Public Sewer

    • Public Water

  • 其他财政信息

    • 年税额: $8,995

  • 来源细节

    • MLS ID: RX-11136603

    其他详情

    • 建筑材料: CBS / Fiber Cement Siding

    • 地段特征: 1/4 to 1/2 Acre / Paved Road / Treed Lot / West of US-1

    • 泳池特色: Concrete / Heated / Inground / Screened / Spa

    • 方向面: US #1 to County Line Rd - West to River Ridge

    • 滨水区: 是

    • 车库空间: 4

    • 车库: 是

    • 生活区域: 2665

    • 细分名称: RIVER RIDGE

类似房屋

348 River Drive, Tequesta, FL 33469 placeholder 348 River Drive, Tequesta, FL 33469
2 天
待售
房屋
$1,195,000
3 贝兹 2 浴室 2,278 平方英尺
348 River Drive, Tequesta, FL 33469
1000 Us Highway 1, Jupiter, FL 33477 placeholder 1000 Us Highway 1, Jupiter, FL 33477
2 天
待售
联排别墅
$1,150,000
2 贝兹 2 浴室 2,128 平方英尺
1000 Us Highway 1, Jupiter, FL 33477
19056 Coral Reef, Jupiter, FL 33458 placeholder 19056 Coral Reef, Jupiter, FL 33458
4 天
待售
房屋
$1,900,000
3 贝兹 3 浴室 2,680 平方英尺
19056 Coral Reef, Jupiter, FL 33458
50 Beach, Tequesta, FL 33469 placeholder 50 Beach, Tequesta, FL 33469
16 天
待售
公寓/合作社
$1,295,000
3 贝兹 2 浴室 2,275 平方英尺
50 Beach, Tequesta, FL 33469
10908 Hobart, Jupiter, FL 33469 placeholder 10908 Hobart, Jupiter, FL 33469
16 天
待售
商业的
$1,099,999
0 room(s)
10908 Hobart, Jupiter, FL 33469
6138 Wood Lake, Jupiter, FL 33458 placeholder 6138 Wood Lake, Jupiter, FL 33458
17 天
待售
房屋
$1,100,000
3 贝兹 3 浴室 2,577 平方英尺
6138 Wood Lake, Jupiter, FL 33458
11 Splitrail, Jupiter, FL 33469 placeholder 11 Splitrail, Jupiter, FL 33469
32 天
待售
房屋
$1,299,000
3 贝兹 2 浴室 1,633 平方英尺
11 Splitrail, Jupiter, FL 33469
19800 Sandpointe Bay Dr # 802, Tequesta FL 33469 placeholder 19800 Sandpointe Bay Dr # 802, Tequesta FL 33469
35 天
待售
公寓/合作社
$1,195,000
2 贝兹 2 浴室 1,639 平方英尺
19800 Sandpointe Bay Dr # 802, Tequesta FL 33469

The multiple listing information is provided by the Beaches MLS from a copyrighted compilation of listings. The compilation of listings and each individual listing are ©2025-present Beaches MLS. All Rights Reserved. The information provided is for consumers' personal, noncommercial use and may not be used for any purpose other than to identify prospective properties consumers may be interested in purchasing. All properties are subject to prior sale or withdrawal. All information provided is deemed reliable but is not guaranteed accurate, and should be independently verified. Listing courtesy of: One Sotheby's International Re